New Homes » Chugoku » Hiroshima » Minami-ku
 
| | Hiroshima, Hiroshima Prefecture, Minami-ku, 広島県広島市南区 |
| Bus "Yokodai housing complex entrance" walk 3 minutes バス「洋光台団地入口」歩3分 |
| Second floor living room Parking two Allowed Aosaki elementary school about 1130m Mukainadashin the town elementary school about 1050m Hiromitsu kindergarten about 650m Fujivesuta Yokodai about 960m Lot number 3747-4: position designated road (common areas) School change permission area 2階リビング 駐車2台可 青崎小学校約1130m 向洋新町小学校約1050m 洋光幼稚園約650m フジヴェスタ洋光台約960m 地番3747-4:位置指定道路(共用部分) 学校変更許可区域 |
Features pickup 特徴ピックアップ | | Parking two Allowed / Face-to-face kitchen / Toilet 2 places / 2-story / Walk-in closet 駐車2台可 /対面式キッチン /トイレ2ヶ所 /2階建 /ウォークインクロゼット | Price 価格 | | 32,800,000 yen 3280万円 | Floor plan 間取り | | 2LDK 2LDK | Units sold 販売戸数 | | 1 units 1戸 | Land area 土地面積 | | 148.71 sq m (44.98 tsubo) (Registration) 148.71m2(44.98坪)(登記) | Building area 建物面積 | | 105.99 sq m (32.06 tsubo) (Registration) 105.99m2(32.06坪)(登記) | Driveway burden-road 私道負担・道路 | | Nothing, North 4m width 無、北4m幅 | Completion date 完成時期(築年月) | | February 2014 2014年2月 | Address 住所 | | Hiroshima, Hiroshima Prefecture, Minami-ku, Mukainadaohara cho 広島県広島市南区向洋大原町 | Traffic 交通 | | Bus "Yokodai housing complex entrance" walk 3 minutes バス「洋光台団地入口」歩3分 | Person in charge 担当者より | | The person in charge (stock) Juken 担当者(株)住研 | Contact お問い合せ先 | | TEL: 0800-603-3432 [Toll free] mobile phone ・ Also available from PHS Caller ID is not notified Please contact the "saw SUUMO (Sumo)" If it does not lead, If the real estate company TEL:0800-603-3432【通話料無料】携帯電話・PHSからもご利用いただけます 発信者番号は通知されません 「SUUMO(スーモ)を見た」と問い合わせください つながらない方、不動産会社の方は
| Building coverage, floor area ratio 建ぺい率・容積率 | | 60% ・ 200% 60%・200% | Time residents 入居時期 | | Consultation 相談 | Land of the right form 土地の権利形態 | | Ownership 所有権 | Structure and method of construction 構造・工法 | | Wooden 2-story 木造2階建 | Use district 用途地域 | | One dwelling 1種住居 | Other limitations その他制限事項 | | Riverfront buildings such as aesthetic form consultation system area of interest Disaster danger zone (steep slope collapse danger zone) リバーフロント建築物等美観形成協議制度対象区域 災害危険区域(急傾斜地崩壊危険区域) | Overview and notices その他概要・特記事項 | | The person in charge :( stock) Juken, Building confirmation number: 5578, Parking: No 担当者:(株)住研、建築確認番号:5578、駐車場:無 | Company profile 会社概要 | | <Mediation> Governor of Hiroshima Prefecture (3) No. 008815 (Ltd.) Jukensha Yubinbango731-5136 Hiroshima, Hiroshima Prefecture Saeki-ku Rakurakuen 2-1-30 <仲介>広島県知事(3)第008815号(株)住研社〒731-5136 広島県広島市佐伯区楽々園2-1-30 |
Local appearance photo現地外観写真  December 15 shooting
12月15日撮影
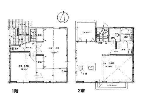
Floor plan間取り図  32,800,000 yen, 2LDK, Land area 148.71 sq m , Building area 105.99 sq m
3280万円、2LDK、土地面積148.71m2、建物面積105.99m2
 Local appearance photo
現地外観写真
 Local photos, including front road
前面道路含む現地写真
Primary school小学校  885m until Mukainadashin the town elementary school
向洋新町小学校まで885m
 Local photos, including front road
前面道路含む現地写真
 Aosaki until elementary school 1266m
青崎小学校まで1266m
Junior high school中学校  Ozu 3630m until junior high school
大州中学校まで3630m
Location
|