New Homes » Chugoku » Hiroshima » Naka-ku


Hiroshima, Hiroshima Prefecture, Naka-ku,
Hiroshima bus "Yoshijima" walk 4 minutes
◇ ◆ ◇ of Naka-ku, newly built single-family ◇ ◆ ◇ Elementary school just outside child-rearing environment enhancement
NanaMamoru Estate Recommended point south-facing house Living environment of hospitals is also very close to fulfilling small quiet residential area shopping facilities are also financial institutions of good cars as per yang
Event information
(Please be sure to ask in advance) tour is also can be accepted on the day! Mortgage free consultation even during the reception! ※ It is also possible guidance on weekdays and late time zone. Customers who visit hope not, please do not hesitate to contact me Contact [Toll free] 0120-238-754 Area of ​​real estate you would like'm Shichigo ・ It summarizes the properties in your budget we will propose.
Price
23,700,000 yen
Floor plan
3LDK
Units sold
1 units
Total units
1 units
Land area
50.26 sq m (15.20 square meters)
Building area
82.62 sq m (24.99 square meters)
Driveway burden-road
Nothing
Completion date
December 2013
Address
Hiroshima Prefecture medium Hiroshima District Yoshijimashin cho
Traffic
Hiroshima bus "Yoshijima" walk 4 minutes hiroden ujina line "Miyukibashi" walk 22 minutes
Hiroden ujina line "county hospital before" walk 34 minutes
Related links
[Related Sites of this company]
Person in charge
Person in charge of Matsumoto Koji Age: 40 Daigyokai Experience: 10 years spirited 40s of merit. Shy but is my, Thank you so my best my best. Holiday [Suites shop tour] It has a.
Contact
TEL: 0800-805-6299 [Toll free] mobile phone ・ Also available from PHS
Caller ID is not notified
Please contact the "saw SUUMO (Sumo)"
If it does not lead, If the real estate company
Expenses
Water contributions Housing performance guarantee fee: 200,000 yen / Bulk
Building coverage, floor area ratio
60% ・ 160%
Time residents
Immediate available
Land of the right form
Ownership
Structure and method of construction
Wooden three-story
Use district
One dwelling
Overview and notices
Contact: Matsumoto Koji, Facilities: Public Water Supply, This sewage, City gas, Parking: car space
Company profile
<Mediation> Governor of Hiroshima Prefecture (2) No. 009265 (Ltd.) NanaMamoru Estate Yubinbango730-0844 Hiroshima medium Hiroshima District Funairisaiwaicho 9-18


Local appearance photo
Local appearance photo

Entrance
Entrance

Parking lot
Parking lot

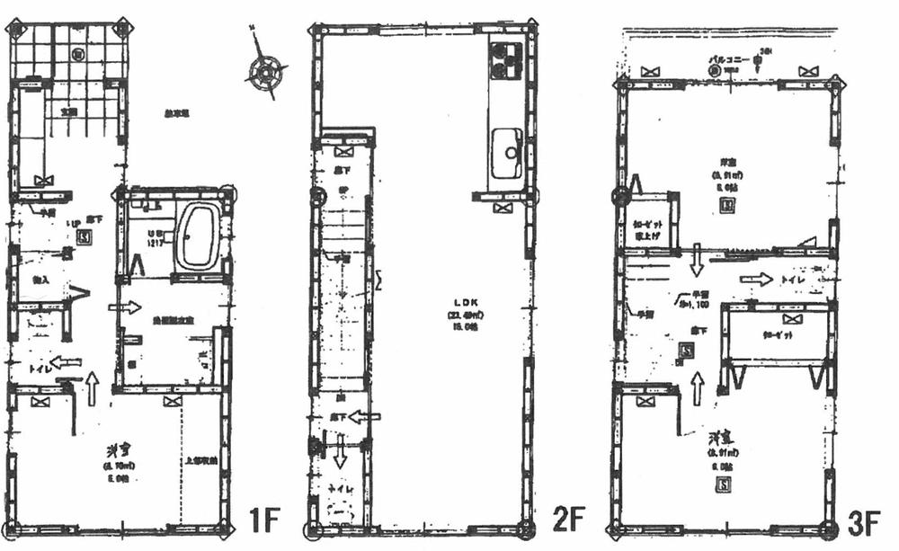
Floor plan

Floor plan. 23,700,000 yen, 3LDK, Land area 50.26 sq m , Building area 82.62 sq m current state priority
23,700,000 yen, 3LDK, Land area 50.26 sq m , Building area 82.62 sq m current state priority

Local photos, including front road
Local photos, including front road



Location