New Homes » Chugoku » Hiroshima » Minami-ku
 
| | Hiroshima, Hiroshima Prefecture, Minami-ku, 広島県広島市南区 |
| Bus "Tanna town" walk 4 minutes バス「丹那町」歩4分 |
| Flat 35S Specifications All-electric Solid foundation Pair glass Exterior construction is included in the room rate Pavilion is Yosu separately construction costs Set back partial-share (217-7 ・ 16.30 sq m ) Parking three Allowed 2.5 Pledge Walk-Klose Tsu フラット35S仕様 オール電化 ベタ基礎 ペアガラス 外構工事込 東屋は別途工事費要す セットバック部分共有(217-7・16.30m2) 駐車3台可 2.5帖ウォークインクローゼッ |
Features pickup 特徴ピックアップ | | Parking three or more possible / Land 50 square meters or more / 2-story / Walk-in closet / All-electric 駐車3台以上可 /土地50坪以上 /2階建 /ウォークインクロゼット /オール電化 | Price 価格 | | 34,800,000 yen 3480万円 | Floor plan 間取り | | 4LDK 4LDK | Units sold 販売戸数 | | 1 units 1戸 | Total units 総戸数 | | 1 units 1戸 | Land area 土地面積 | | 167.15 sq m (50.56 tsubo) (Registration) 167.15m2(50.56坪)(登記) | Building area 建物面積 | | 101.02 sq m (30.55 tsubo) (Registration) 101.02m2(30.55坪)(登記) | Driveway burden-road 私道負担・道路 | | Nothing 無 | Completion date 完成時期(築年月) | | May 2013 2013年5月 | Address 住所 | | Hiroshima, Hiroshima Prefecture, Minami-ku, Tanna-cho 広島県広島市南区丹那町 | Traffic 交通 | | Bus "Tanna town" walk 4 minutes バス「丹那町」歩4分 | Person in charge 担当者より | | The person in charge (stock) Juken 担当者(株)住研 | Contact お問い合せ先 | | TEL: 0800-603-3432 [Toll free] mobile phone ・ Also available from PHS Caller ID is not notified Please contact the "saw SUUMO (Sumo)" If it does not lead, If the real estate company TEL:0800-603-3432【通話料無料】携帯電話・PHSからもご利用いただけます 発信者番号は通知されません 「SUUMO(スーモ)を見た」と問い合わせください つながらない方、不動産会社の方は
| Building coverage, floor area ratio 建ぺい率・容積率 | | 60% ・ 200% 60%・200% | Time residents 入居時期 | | Consultation 相談 | Land of the right form 土地の権利形態 | | Ownership 所有権 | Structure and method of construction 構造・工法 | | Wooden 2-story 木造2階建 | Use district 用途地域 | | One dwelling 1種住居 | Other limitations その他制限事項 | | Steep slope collapse danger zone ※ Property information full of Minami-ku ☆ [Search for "Jukensha"!] 急傾斜地崩壊危険区域 ※南区の物件情報満載☆【『住研社』で検索!】 | Overview and notices その他概要・特記事項 | | The person in charge :( stock) Juken, Facilities: Public Water Supply, This sewage, Building confirmation number: 437, Parking: car space 担当者:(株)住研、設備:公営水道、本下水、建築確認番号:437、駐車場:カースペース | Company profile 会社概要 | | <Mediation> Governor of Hiroshima Prefecture (3) No. 008815 (Ltd.) Jukensha Yubinbango731-5136 Hiroshima, Hiroshima Prefecture Saeki-ku Rakurakuen 2-1-30 <仲介>広島県知事(3)第008815号(株)住研社〒731-5136 広島県広島市佐伯区楽々園2-1-30 |
 Local appearance photo
現地外観写真
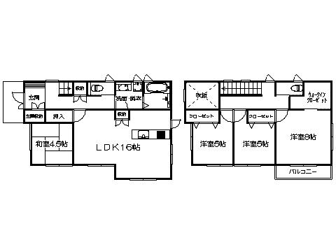
Floor plan間取り図  34,800,000 yen, 4LDK, Land area 167.15 sq m , Building area 101.02 sq m ※ Floor Plan current state priority
3480万円、4LDK、土地面積167.15m2、建物面積101.02m2 ※間取り図現況優先
 Local appearance photo
現地外観写真
 Local appearance photo
現地外観写真
 Entrance
玄関
Other Environmental Photoその他環境写真  661m to the south City Sports Center
南区スポーツセンターまで661m
Otherその他  well
井戸
 Local appearance photo
現地外観写真
Primary school小学校  Kusuna until elementary school 651m
楠那小学校まで651m
Otherその他  Frontal road
前面道路
Local appearance photo現地外観写真  Parking lot
駐車場
Junior high school中学校  Kusuna 804m until junior high school
楠那中学校まで804m
Otherその他  Frontal road
前面道路
Local appearance photo現地外観写真  Garden
庭
Location
|