|
|
Hiroshima, Hiroshima Prefecture, Minami-ku,
広島県広島市南区
|
|
Bus "Senda Temple Koenmae Prefecture hospital entrance" walk 2 minutes
バス「千田廟公園前県病院入口」歩2分
|
|
Ujinamiyuki 1-chome Living environment can feel the city center of convenience on a daily basis Cute IH heater adoption Ujina Elementary School Ujina Junior High School
宇品御幸1丁目 都心の利便性を日常的に感じられる住環境 エコキュート IHヒーター採用 宇品小学校 宇品中学校
|
|
■ Rare southeast corner lot ■ Senda Mausoleum Koenmae Prefecture hospital entrance bus stop 2-minute walk ■ Ujina Elementary School Ujina Junior High School
■希少東南角地■千田廟公園前県病院入口バス停 徒歩2分■宇品小学校 宇品中学校
|
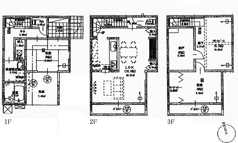
Features pickup 特徴ピックアップ | | LDK18 tatami mats or more / Energy-saving water heaters / Facing south / System kitchen / Yang per good / All room storage / Corner lot / Japanese-style room / Shaping land / Face-to-face kitchen / South balcony / All living room flooring / IH cooking heater / Built garage / Three-story or more / Living stairs / All-electric / Storeroom / Flat terrain LDK18畳以上 /省エネ給湯器 /南向き /システムキッチン /陽当り良好 /全居室収納 /角地 /和室 /整形地 /対面式キッチン /南面バルコニー /全居室フローリング /IHクッキングヒーター /ビルトガレージ /3階建以上 /リビング階段 /オール電化 /納戸 /平坦地 |
Price 価格 | | 37,300,000 yen 3730万円 |
Floor plan 間取り | | 2LDK + S (storeroom) 2LDK+S(納戸) |
Units sold 販売戸数 | | 1 units 1戸 |
Total units 総戸数 | | 4 units 4戸 |
Land area 土地面積 | | 78.34 sq m (23.69 square meters) 78.34m2(23.69坪) |
Building area 建物面積 | | 113.44 sq m (34.31 square meters) 113.44m2(34.31坪) |
Driveway burden-road 私道負担・道路 | | Nothing, South 4.9m width, East 3.2m width 無、南4.9m幅、東3.2m幅 |
Completion date 完成時期(築年月) | | June 2013 2013年6月 |
Address 住所 | | Hiroshima, Hiroshima Prefecture, Minami-ku, Ujinamiyuki 1 広島県広島市南区宇品御幸1 |
Traffic 交通 | | Bus "Senda Temple Koenmae Prefecture hospital entrance" walk 2 minutes hiroden ujina line "county hospital before" walk 4 minutes Hiroden ujina line "Ujinanichome" walk 5 minutes バス「千田廟公園前県病院入口」歩2分広島電鉄宇品線「県病院前」歩4分 広島電鉄宇品線「宇品二丁目」歩5分
|
Contact お問い合せ先 | | TEL: 0800-603-1469 [Toll free] mobile phone ・ Also available from PHS Caller ID is not notified Please contact the "saw SUUMO (Sumo)" If it does not lead, If the real estate company TEL:0800-603-1469【通話料無料】携帯電話・PHSからもご利用いただけます 発信者番号は通知されません 「SUUMO(スーモ)を見た」と問い合わせください つながらない方、不動産会社の方は
|
Building coverage, floor area ratio 建ぺい率・容積率 | | 60% ・ 200% 60%・200% |
Time residents 入居時期 | | Immediate available 即入居可 |
Land of the right form 土地の権利形態 | | Ownership 所有権 |
Structure and method of construction 構造・工法 | | Wooden three-story 木造3階建 |
Use district 用途地域 | | One dwelling 1種住居 |
Other limitations その他制限事項 | | Quasi-fire zones 準防火地域 |
Overview and notices その他概要・特記事項 | | Facilities: Public Water Supply, This sewage, All-electric, Building confirmation number: 0133, Parking: Garage 設備:公営水道、本下水、オール電化、建築確認番号:0133、駐車場:車庫 |
Company profile 会社概要 | | <Mediation> Minister of Land, Infrastructure and Transport (12) Article 001483 No. Toa Estate Co., Ltd. Real Estate Information Center Yubinbango730-0051 Hiroshima Prefecture medium Hiroshima-ku, Otemachi 3-1-1 <仲介>国土交通大臣(12)第001483号東亜地所(株)不動産情報センター〒730-0051 広島県広島市中区大手町3-1-1 |