New Homes » Hokkaido » Sapporo Kita-ku
 
| | Sapporo, Hokkaido, Kita-ku, 北海道札幌市北区 |
| JR Sasshō Line "Shinoro" walk 8 minutes JR札沼線「篠路」歩8分 |
| JR "Shinoro" walk about 7 minutes to the station! ! About walking up to Outlaw 4 minutes! ! LDK19 Pledge ・ 4LDK ・ All-electric ・ Cute specification! ! Document request ・ Preview of reservation, Feel free to contact the person in charge! JR『篠路』駅まで徒歩約7分!!アウトローまで徒歩約4分!!LDK19帖・4LDK・オール電化・エコキュート仕様!!資料請求・内覧の予約は、担当までお気軽に! |
| ■ Shinoro walk about 6 minutes to elementary school! ! Shinoro walk about 16 minutes until junior high school! ! ■ All-electric ・ Cute specification! ! About 8 pledge worth spacious balcony of! ! ■ Document request ・ Contact the, Responsible to direct-dial 090-5222-1797! ! ■篠路小学校まで徒歩約6分!!篠路中学校まで徒歩約16分!!■オール電化・エコキュート仕様!!約8帖分の広々バルコニー!!■資料請求・お問合わせは、担当直通090-5222-1797まで!! |
Features pickup 特徴ピックアップ | | Measures to conserve energy / Corresponding to the flat-35S / Pre-ground survey / Year Available / Parking two Allowed / LDK18 tatami mats or more / Energy-saving water heaters / Super close / System kitchen / Yang per good / All room storage / Flat to the station / A quiet residential area / Or more before road 6m / Washbasin with shower / Face-to-face kitchen / Wide balcony / Toilet 2 places / Bathroom 1 tsubo or more / 2-story / Double-glazing / Otobasu / Warm water washing toilet seat / The window in the bathroom / TV monitor interphone / Mu front building / All living room flooring / IH cooking heater / Southwestward / Dish washing dryer / Walk-in closet / All-electric / BS ・ CS ・ CATV 省エネルギー対策 /フラット35Sに対応 /地盤調査済 /年内入居可 /駐車2台可 /LDK18畳以上 /省エネ給湯器 /スーパーが近い /システムキッチン /陽当り良好 /全居室収納 /駅まで平坦 /閑静な住宅地 /前道6m以上 /シャワー付洗面台 /対面式キッチン /ワイドバルコニー /トイレ2ヶ所 /浴室1坪以上 /2階建 /複層ガラス /オートバス /温水洗浄便座 /浴室に窓 /TVモニタ付インターホン /前面棟無 /全居室フローリング /IHクッキングヒーター /南西向き /食器洗乾燥機 /ウォークインクロゼット /オール電化 /BS・CS・CATV | Price 価格 | | 20.8 million yen 2080万円 | Floor plan 間取り | | 4LDK 4LDK | Units sold 販売戸数 | | 1 units 1戸 | Total units 総戸数 | | 1 units 1戸 | Land area 土地面積 | | 108.48 sq m (registration) 108.48m2(登記) | Building area 建物面積 | | 112.62 sq m 112.62m2 | Driveway burden-road 私道負担・道路 | | Nothing, Southwest 8m width (contact the road width 8.2m) 無、南西8m幅(接道幅8.2m) | Completion date 完成時期(築年月) | | September 2013 2013年9月 | Address 住所 | | Of Sapporo, Hokkaido, Kita-ku, Shinororokujo 7-119 北海道札幌市北区篠路六条7-119の内 | Traffic 交通 | | JR Sasshō Line "Shinoro" walk 8 minutes Central bus "Shinoro elementary school" walk 2 minutes JR札沼線「篠路」歩8分 中央バス「篠路小学校」歩2分 | Person in charge 担当者より | | Rep Osanai 担当者小山内 | Contact お問い合せ先 | | Takamine Industry (Ltd.) TEL: 0800-602-6170 [Toll free] mobile phone ・ Also available from PHS Caller ID is not notified Please contact the "saw SUUMO (Sumo)" If it does not lead, If the real estate company タカネ工業(株)TEL:0800-602-6170【通話料無料】携帯電話・PHSからもご利用いただけます 発信者番号は通知されません 「SUUMO(スーモ)を見た」と問い合わせください つながらない方、不動産会社の方は
| Building coverage, floor area ratio 建ぺい率・容積率 | | 60% ・ 200% 60%・200% | Time residents 入居時期 | | Immediate available 即入居可 | Land of the right form 土地の権利形態 | | Ownership 所有権 | Structure and method of construction 構造・工法 | | Wooden 2-story (framing method) 木造2階建(軸組工法) | Use district 用途地域 | | One dwelling 1種住居 | Other limitations その他制限事項 | | Height district 高度地区 | Overview and notices その他概要・特記事項 | | Contact: Osanai, Facilities: Public Water Supply, This sewage, All-electric, Building confirmation number: I & amp; I131359, Parking: car space 担当者:小山内、設備:公営水道、本下水、オール電化、建築確認番号:I&I131359、駐車場:カースペース | Company profile 会社概要 | | <Mediation> Governor of Hokkaido Ishikari (1) No. 007715 Takamine Industrial Co., Yubinbango007-0843 Hokkaido, Sapporo Higashi-ku Kitayonjusanjohigashi 5-3-16 <仲介>北海道知事石狩(1)第007715号タカネ工業(株)〒007-0843 北海道札幌市東区北四十三条東5-3-16 |
Local appearance photo現地外観写真  Local (12 May 2013) Shooting
現地(2013年12月)撮影
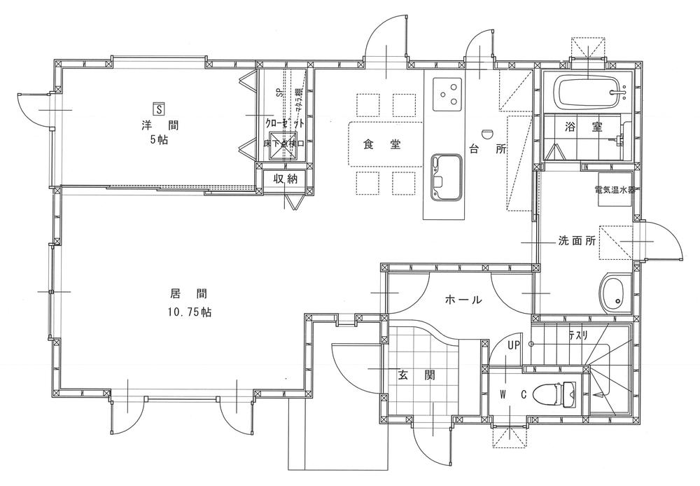
Floor plan間取り図  20.8 million yen, 4LDK, Land area 108.48 sq m , Building area 112.62 sq m 1F Floor plan
2080万円、4LDK、土地面積108.48m2、建物面積112.62m2 1F 間取図
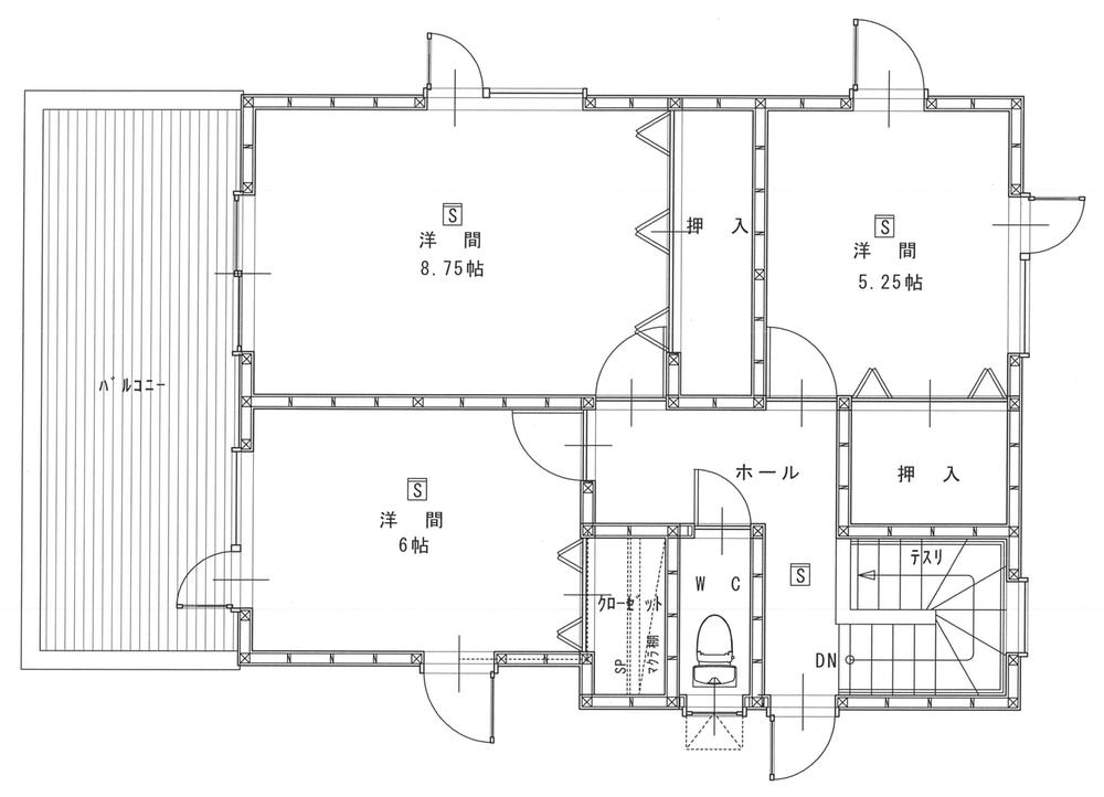
Otherその他  2F Floor plan
2F 間取図
Livingリビング  Local (September 2013) Shooting Living room seen from the kitchen LDK19.75 Pledge
現地(2013年9月)撮影 キッチンから見たリビング LDK19.75帖
Bathroom浴室  Local (September 2013) Shooting 1 pyeong type ・ With window
現地(2013年9月)撮影 1坪タイプ・窓付
Kitchenキッチン  Local (September 2013) Shooting
現地(2013年9月)撮影
Non-living roomリビング以外の居室  Local (September 2013) Shooting
現地(2013年9月)撮影
Entrance玄関  Local (September 2013) Shooting
現地(2013年9月)撮影
Wash basin, toilet洗面台・洗面所  Local (September 2013) Shooting
現地(2013年9月)撮影
Toiletトイレ  Indoor (September 2013) Shooting
室内(2013年9月)撮影
Other localその他現地  Local (August 2013) Shooting
現地(2013年8月)撮影
Otherその他  layout drawing
配置図
Kitchenキッチン  Indoor (September 2013) Shooting
室内(2013年9月)撮影
Non-living roomリビング以外の居室  Indoor (September 2013) Shooting
室内(2013年9月)撮影
Entrance玄関  Local (September 2013) Shooting
現地(2013年9月)撮影
Other localその他現地  Local (August 2013) Shooting
現地(2013年8月)撮影
Otherその他  Local (September 2013) Shooting
現地(2013年9月)撮影
Non-living roomリビング以外の居室  Indoor (September 2013) Shooting
室内(2013年9月)撮影
 Indoor (September 2013) Shooting
室内(2013年9月)撮影
Location
|