New Homes » Hokkaido » Sapporo Kita-ku
 
| | Sapporo, Hokkaido, Kita-ku, 北海道札幌市北区 |
| Subway Namboku "Aso" 15 minutes Shinoro Article 5 1-chome, walk 4 minutes by bus 地下鉄南北線「麻生」バス15分篠路5条1丁目歩4分 |
| Connection to the subway, "Aso" station from the nearest bus stop! "Charcoal House" model home is scheduled to be completed in mid-March 2014 of bright in the southeast corner lot sunshine is pleasant natural taste! 最寄りのバス停からは地下鉄「麻生」駅へ接続!南東角地に明るい陽射しが心地良いナチュラルテイストの「炭の家」モデルホームがH26年3月中旬完成予定! |
Local guide map 現地案内図 | | Local guide map 現地案内図 | Features pickup 特徴ピックアップ | | Measures to conserve energy / Airtight high insulated houses / Parking two Allowed / Land 50 square meters or more / Energy-saving water heaters / See the mountain / Super close / Facing south / System kitchen / Yang per good / All room storage / LDK15 tatami mats or more / Or more before road 6m / Starting station / Washbasin with shower / Face-to-face kitchen / Bathroom 1 tsubo or more / 2-story / South balcony / Double-glazing / Nantei / The window in the bathroom / TV monitor interphone / Ventilation good / All living room flooring / Dish washing dryer / Living stairs / Maintained sidewalk 省エネルギー対策 /高気密高断熱住宅 /駐車2台可 /土地50坪以上 /省エネ給湯器 /山が見える /スーパーが近い /南向き /システムキッチン /陽当り良好 /全居室収納 /LDK15畳以上 /前道6m以上 /始発駅 /シャワー付洗面台 /対面式キッチン /浴室1坪以上 /2階建 /南面バルコニー /複層ガラス /南庭 /浴室に窓 /TVモニタ付インターホン /通風良好 /全居室フローリング /食器洗乾燥機 /リビング階段 /整備された歩道 | Event information イベント情報 | | (Please be sure to ask in advance) (事前に必ずお問い合わせください) | Property name 物件名 | | Home Planning Center "Charcoal House" Lilac Home Town [KoCoL] Model in subdivision! ホーム企画センター「炭の家」ライラックホームタウン【KoCoL】モデル分譲中! | Price 価格 | | 24.5 million yen 2450万円 | Floor plan 間取り | | 4LDK 4LDK | Units sold 販売戸数 | | 1 units 1戸 | Land area 土地面積 | | 191.12 sq m (registration) 191.12m2(登記) | Building area 建物面積 | | 107.65 sq m (registration) 107.65m2(登記) | Driveway burden-road 私道負担・道路 | | Road width: 8m Sapporo road, Asphaltic pavement, Driveway burden: None 道路幅:8m 札幌市道、アスファルト舗装、私道負担:無し | Completion date 完成時期(築年月) | | March 2014 mid-scheduled 2014年3月中旬予定 | Address 住所 | | Hokkaido Sapporo Kita Ward Nishibaratonijo 1-547, No. 2 679 北海道札幌市北区西茨戸二条1-547、2番679 | Traffic 交通 | | Subway Namboku "Aso" 15 minutes Shinoro Article 5 1-chome, walk 4 minutes by bus 地下鉄南北線「麻生」バス15分篠路5条1丁目歩4分
| Related links 関連リンク | | [Related Sites of this company] 【この会社の関連サイト】 | Contact お問い合せ先 | | TEL: 0800-603-3122 [Toll free] mobile phone ・ Also available from PHS Caller ID is not notified Please contact the "saw SUUMO (Sumo)" If it does not lead, If the real estate company TEL:0800-603-3122【通話料無料】携帯電話・PHSからもご利用いただけます 発信者番号は通知されません 「SUUMO(スーモ)を見た」と問い合わせください つながらない方、不動産会社の方は
| Sale schedule 販売スケジュール | | place / (Ltd.) Home Planning Center time / 9:00AM ~ 6:00PM ※ At the time of application is required seal 場所/(株)ホーム企画センター時間/9:00AM ~ 6:00PM※申込の際には印鑑が必要です | Building coverage, floor area ratio 建ぺい率・容積率 | | Kenpei rate: 40%, Volume ratio: 80% 建ペい率:40%、容積率:80% | Time residents 入居時期 | | 2014 end of March plan 2014年3月末予定 | Land of the right form 土地の権利形態 | | Ownership 所有権 | Structure and method of construction 構造・工法 | | Wooden 2-story (framing method) 木造2階建(軸組工法) | Construction 施工 | | Construction company :( stock) Home Planning Center 施工会社:(株)ホーム企画センター | Use district 用途地域 | | One low-rise 1種低層 | Land category 地目 | | Residential land 宅地 | Overview and notices その他概要・特記事項 | | Building confirmation number: No. 5488 2013 September 20 建築確認番号:第5488号 平成25年9月20日 | Company profile 会社概要 | | <Seller> Governor of Hokkaido Ishikari (12) No. 001067 (Ltd.) Home planning center Yubinbango001-0038 Hokkaido Sapporo Kita 38 Nishi 2-1-26 <売主>北海道知事石狩(12)第001067号(株)ホーム企画センター〒001-0038 北海道札幌市北区北38条西2-1-26 |
Otherその他  Patented cleaning the air clean of air that has adopted the "charcoal one ton specification carbon air clean system," "coal house."
空気を清浄化する特許取得の「炭1トン仕様カーボンエアクリーンシステム」を採用した空気のキレイな「炭の家」
Rendering (introspection)完成予想図(内観)  Light is comfortable living from the south-facing window. Natural coordinated to match the bright and friendly Maple color white door on the floor of the.
南向きの窓からの光が心地よいリビング。明るく優しいメープル色の床に白いドアを合わせたナチュラルコーディネート。
Rendering (appearance)完成予想図(外観)  Scheduled to be completed "Charcoal House" in 2014 mid-March to the good per sun southeast corner lot! Purchase your application being accepted!
陽当たりの良い南東角地に「炭の家」H26年3月中旬完成予定!購入お申し込み受付中!
Construction ・ Construction method ・ specification構造・工法・仕様  1 ton of coal laid in house, Adopting the original ventilation system in combination with a second kind ventilation used, such as hospital operating rooms. It incorporates a fresh outside air for 24 hours, Clean air is spread in the house further passed through a layer of charcoal, Health house. Also prevents odor anxious in the live in-priming force of charcoal.
1トンの炭を住まいに敷設し、病院の手術室などに使用されている第二種換気と組み合わせたオリジナル換気システムを採用。 新鮮な外気を24時間取り入れて、さらに炭の層を通ったキレイな空気が家中に広がる、健康住宅です。また炭の吸能力で暮らしの中の気になるニオイも防げます。
Rendering (introspection)完成予想図(内観)  Equipped with a pantry and functionally use cupboard that can store plenty in the kitchen. The dining of the cabinet, A favorite of small decoration cute coordination
キッチンにはたっぷり収納できる食品庫と機能的に使える食器棚を装備。 ダイニングの飾り棚には、 お気に入りの小物を飾り可愛くコーディネート
Construction ・ Construction method ・ specification構造・工法・仕様  It is passed through the ventilation unit air, It will be supplied to the room through a layer of this coal. Countless holes in charcoal or sucking up moisture, It performs a humidity adjustment or release the moisture, It adsorbs toxic chemicals, Clean the air. 24 hours a day, every day, Keep a comfortable indoor environment.
換気ユニットを通った空気が、この炭の層を通過して室内に供給されます。炭にある無数の孔は湿気を吸い取ったり、水分を放出したり湿度調整を行うとともに、有害化学物質を吸着し、空気を清浄化。24時間365日、快適な室内環境を保ちます。
Rendering (introspection)完成予想図(内観)  Light is comfortable living from the south-facing window. Natural coordinated to match the bright and friendly Maple color white door on the floor of the.
南向きの窓からの光が心地よいリビング。明るく優しいメープル色の床に白いドアを合わせたナチュラルコーディネート。
Local guide map現地案内図  <Lilac Home Town> guide map.
<ライラックホームタウン>案内図。
Supermarketスーパー  Ito-Yokado colonization 1254m to shop
イトーヨーカドー屯田店まで1254m
Shopping centreショッピングセンター  1591m until the ion Ishikari Ryokuendai shopping center
イオン石狩緑苑台ショッピングセンターまで1591m
Junior high school中学校  1169m to Sapporo Municipal Shinoro West Junior High School
札幌市立篠路西中学校まで1169m
Primary school小学校  Sapporo City Shinoro to Nishi Elementary School 1223m
札幌市立篠路西小学校まで1223m
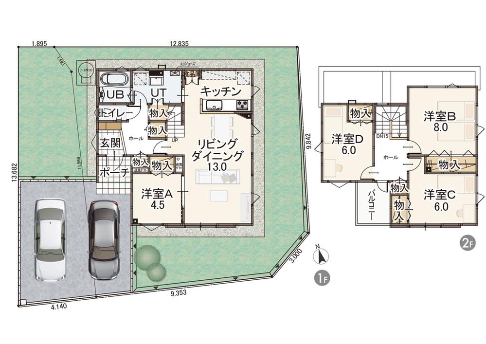
Floor plan間取り図  (C-3), Price 24.5 million yen, 4LDK, Land area 191.12 sq m , Building area 107.65 sq m
(C-3)、価格2450万円、4LDK、土地面積191.12m2、建物面積107.65m2
Home centerホームセンター  Joyful Eke colonization 1742m to shop
ジョイフルエーケー屯田店まで1742m
Local guide map現地案内図  <Lilac Home Town> guide map.
<ライラックホームタウン>案内図。
You will receive this brochureこんなパンフレットが届きます  This brochure will receive! JOIN NOW document request!
こちらのパンフレットが届きます!今すぐ資料請求しよう!
Construction ・ Construction method ・ specification構造・工法・仕様  Block the wind and rain, Than the outside air intake port to remove the insects or foreign objects to enter along with the outside air, Incorporating the fresh air, Ventilation unit to the (carbon air clean system). Pollen in the ventilation unit, The outside air has been removed until the emissions of dust and mites onto a layer of charcoal. Only you send out to the indoor clean air is further passed through a layer of charcoal.
風雨をさえぎり、外気と共に侵入する虫や異物などを除去する外気取り入れ口より、新鮮な空気を取り入れ、換気ユニット(カーボンエアクリーンシステム)へ。換気ユニットでは花粉、塵やダニの排出物まで取り除いた外気を炭の層へ。さらに炭の層を通ったキレイな空気だけを室内へ送り出します。
![Construction ・ Construction method ・ specification. [Air supply opening] From the first floor and the air supply port provided on the second floor of the floor, Clean air through a layer of charcoal, It will be circulated in the room. [Natural exhaust port] Established a pressure balance, Drain the interior of the dirty air.](/images/hokkaido_/sapporoshikita/343c3a0065.jpg) [Air supply opening] From the first floor and the air supply port provided on the second floor of the floor, Clean air through a layer of charcoal, It will be circulated in the room. [Natural exhaust port] Established a pressure balance, Drain the interior of the dirty air.
【給気口】1階と2階の床に設けられた給気口から、炭の層を通したクリーンな空気を、室内に循環させます。【自然排気口】気圧バランスを整え、室内の汚れた空気を排出します。
 By a third party organization before your delivery of the building, Carry out all building odor inspection. It was to zero as possible harmful substances in the room air, You have your delivery the only house that has been recognized as a refreshing air environment.
建物のお引き渡し前に第3者機関による、全棟臭気検査を実施。室内空気の有害物質を限りなくゼロにした、清涼な空気環境として認められた住まいだけをお引き渡ししています。
 Chemicals in indoor air that has been regulated by the Building Standards Law is only just two types. Low concentration confirmation is required of five or more chemicals at a minimum in order to ensure clean air as Sick measures. The Company, Setting much stringent reference value than the reference value of country-defined (all less than 0.01ppm).
建築基準法で規制されている室内空気の化学物質はわずか2種類のみ。シックハウス対策としてキレイな空気を確保するためには最低でも5種類以上の化学物質の低濃度確認が必要です。当社では、国が定めた基準値よりはるかに厳しい基準値(全て0.01ppm未満)を設定。
Location
|