|
|
Sapporo, Hokkaido, Nishi-ku,
北海道札幌市西区
|
|
JR bus "," Nishino 4 Article 9-chome "stop" walk 6 minutes
JRバス「「西野4条9丁目」停」歩6分
|
|
2012. August Built Not occupancy housing ・ Parking three Allowed ・ 2 toilets months ownership
平成24年8月築未入居住宅・駐車3台可・トイレ2ヶ所有
|
|
Parking three or more possible, Immediate Available, LDK18 tatami mats or more, A quiet residential area, Or more before road 6m, Toilet 2 places, Land 50 square meters or more, 2-story
駐車3台以上可、即入居可、LDK18畳以上、閑静な住宅地、前道6m以上、トイレ2ヶ所、土地50坪以上、2階建
|
Features pickup 特徴ピックアップ | | Parking three or more possible / Immediate Available / Land 50 square meters or more / LDK18 tatami mats or more / A quiet residential area / Or more before road 6m / Toilet 2 places / 2-story 駐車3台以上可 /即入居可 /土地50坪以上 /LDK18畳以上 /閑静な住宅地 /前道6m以上 /トイレ2ヶ所 /2階建 |
Price 価格 | | 31 million yen 3100万円 |
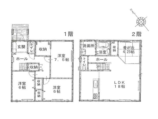
Floor plan 間取り | | 3LDK 3LDK |
Units sold 販売戸数 | | 1 units 1戸 |
Land area 土地面積 | | 196.09 sq m (59.31 tsubo) (Registration) 196.09m2(59.31坪)(登記) |
Building area 建物面積 | | 106 sq m (32.06 tsubo) (Registration) 106m2(32.06坪)(登記) |
Driveway burden-road 私道負担・道路 | | Nothing, Northwest 8m width (contact the road width 11m) 無、北西8m幅(接道幅11m) |
Completion date 完成時期(築年月) | | August 2012 2012年8月 |
Address 住所 | | Sapporo, Hokkaido, Nishi-ku, Nishinoyonjo 10 北海道札幌市西区西野四条10 |
Traffic 交通 | | JR bus "," Nishino 4 Article 9-chome "stop" walk 6 minutes JRバス「「西野4条9丁目」停」歩6分 |
Related links 関連リンク | | [Related Sites of this company] 【この会社の関連サイト】 |
Contact お問い合せ先 | | TEL: 0800-603-3040 [Toll free] mobile phone ・ Also available from PHS Caller ID is not notified Please contact the "saw SUUMO (Sumo)" If it does not lead, If the real estate company TEL:0800-603-3040【通話料無料】携帯電話・PHSからもご利用いただけます 発信者番号は通知されません 「SUUMO(スーモ)を見た」と問い合わせください つながらない方、不動産会社の方は
|
Building coverage, floor area ratio 建ぺい率・容積率 | | Fifty percent ・ 80% 50%・80% |
Time residents 入居時期 | | Immediate available 即入居可 |
Land of the right form 土地の権利形態 | | Ownership 所有権 |
Structure and method of construction 構造・工法 | | Wooden 2-story 木造2階建 |
Use district 用途地域 | | One low-rise 1種低層 |
Overview and notices その他概要・特記事項 | | Facilities: Public Water Supply, This sewage, Parking: car space 設備:公営水道、本下水、駐車場:カースペース |
Company profile 会社概要 | | <Mediation> Governor of Hokkaido Ishikari (5) No. 006,137 (one company) Hokkaido Real Estate Fair Trade Council member Trust Home Ltd. Yubinbango062-0004 Sapporo, Hokkaido Toyohira-ku Misonoyonjo 3-2-17 <仲介>北海道知事石狩(5)第006137号(一社)北海道不動産公正取引協議会会員 トラストホーム(株)〒062-0004 北海道札幌市豊平区美園四条3-2-17 |