New Homes » Hokkaido » Sapporo Shiroishi-ku
 
| | Hokkaido Sapporo Shiroishi-ku 北海道札幌市白石区 |
| Subway Tozai Line "Shiraishi" walk 7 minutes 地下鉄東西線「白石」歩7分 |
| 3-story (with a wide balcony) is reinforced concrete housing, Subway "Shiraishi" appeared in the prime location of the station 7-minute walk! Furnished sale! 3階建て(ワイドバルコニー付)鉄筋コンクリート住宅が、地下鉄「白石」駅徒歩7分の好立地に登場!家具付販売! |
| ● subway Shiraishi Station 7-minute walk, primary school, park, Nearby good location also cycling load. ● is a little quiet and peaceful environment of the car street. ● 2-floor living room and balcony of a feeling of opening, Please look at all means once local. ● all two buildings Two car space ● from face-to-face kitchen, Since it is possible to overlook the appearance of family finish the precursor poured concrete to ease insulation and FRP formwork so "integral wall structure with no air layer", Ya wall body condensation of the factors that damage the precursor, Prevent the occurrence of mold and mites that cause harm to health. ●地下鉄白石駅徒歩7分、小学校、公園、サイクリングロードも至近の好立地。●車通りの少ない静かな落ち着いた環境です。●2階リビング&バルコニーの開放感、ぜひ一度現地でご覧ください。●全2棟 カースペース2台●対面式キッチンから、家族の様子が見渡すことができるので安心断熱材とFRP型枠にコンクリートを流し込み躯体を仕上げる「空気層のない一体型壁構造」なので、躯体を痛める要因の壁体内結露や、健康に害を及ぼすカビやダニの発生を防ぐ。 |
Local guide map 現地案内図 | | Local guide map 現地案内図 | Features pickup 特徴ピックアップ | | Airtight high insulated houses / Vibration Control ・ Seismic isolation ・ Earthquake resistant / Parking two Allowed / 2 along the line more accessible / LDK18 tatami mats or more / Energy-saving water heaters / Super close / It is close to the city / System kitchen / All room storage / Flat to the station / Around traffic fewer / Or more before road 6m / Shaping land / Washbasin with shower / Wide balcony / Bathroom 1 tsubo or more / South balcony / Double-glazing / Warm water washing toilet seat / Leafy residential area / All living room flooring / IH cooking heater / Or more ceiling height 2.5m / Water filter / Three-story or more / Living stairs / All-electric 高気密高断熱住宅 /制震・免震・耐震 /駐車2台可 /2沿線以上利用可 /LDK18畳以上 /省エネ給湯器 /スーパーが近い /市街地が近い /システムキッチン /全居室収納 /駅まで平坦 /周辺交通量少なめ /前道6m以上 /整形地 /シャワー付洗面台 /ワイドバルコニー /浴室1坪以上 /南面バルコニー /複層ガラス /温水洗浄便座 /緑豊かな住宅地 /全居室フローリング /IHクッキングヒーター /天井高2.5m以上 /浄水器 /3階建以上 /リビング階段 /オール電化 | Event information イベント情報 | | Open House (Please make a reservation beforehand) schedule / Every Saturday and Sunday time / 10:00 ~ This is your chance to tour 18:00 completed reinforced concrete housing. Weekday But night (21:00), You can visit at any time if you can contact. Responsible for direct TEL 0120-418-906 オープンハウス(事前に必ず予約してください)日程/毎週土日時間/10:00 ~ 18:00完成した鉄筋コンクリート住宅を見学するチャンスです。平日夜(21:00まで)でも、連絡いただければいつでも見学可能です。担当直通TEL 0120-418-906 | Property name 物件名 | | RC Higashisapporo 1-5 Subway Shiraishi Station 7-minute walk RC東札幌1-5 地下鉄白石駅徒歩7分 | Price 価格 | | 27,800,000 yen ~ 28.8 million yen 2780万円 ~ 2880万円 | Floor plan 間取り | | 4LDK 4LDK | Units sold 販売戸数 | | 3 units 3戸 | Total units 総戸数 | | 3 units 3戸 | Land area 土地面積 | | 82.19 sq m ~ 84.01 sq m (24.86 tsubo ~ 25.41 square meters) 82.19m2 ~ 84.01m2(24.86坪 ~ 25.41坪) | Building area 建物面積 | | 117.82 sq m ・ 117.82 sq m (35.64 tsubo ・ 35.64 square meters) 117.82m2・117.82m2(35.64坪・35.64坪) | Driveway burden-road 私道負担・道路 | | 6m width asphalt paving 6m幅アスファルト舗装 | Completion date 完成時期(築年月) | | November 2013 2013年11月 | Address 住所 | | Sapporo, Hokkaido Shiroishi-ku Higashisapporoichijo 5 北海道札幌市白石区東札幌一条5 | Traffic 交通 | | Subway Tozai Line "Shiraishi" walk 7 minutes Subway Tozai Line "Higashisapporo" walk 14 minutes 地下鉄東西線「白石」歩7分 地下鉄東西線「東札幌」歩14分
| Related links 関連リンク | | [Related Sites of this company] 【この会社の関連サイト】 | Contact お問い合せ先 | | (Ltd.) Design Center TEL: 0800-603-6426 [Toll free] mobile phone ・ Also available from PHS Caller ID is not notified Please contact the "saw SUUMO (Sumo)" If it does not lead, If the real estate company (株)デザインセンターTEL:0800-603-6426【通話料無料】携帯電話・PHSからもご利用いただけます 発信者番号は通知されません 「SUUMO(スーモ)を見た」と問い合わせください つながらない方、不動産会社の方は
| Building coverage, floor area ratio 建ぺい率・容積率 | | Building coverage: 60%, Volume ratio: 200% 建ぺい率:60%、容積率:200% | Time residents 入居時期 | | Immediate available 即入居可 | Land of the right form 土地の権利形態 | | Ownership 所有権 | Structure and method of construction 構造・工法 | | Reinforced concrete wall type construction method 鉄筋コンクリート壁式工法 | Construction 施工 | | Toyosaka Construction Co., Ltd. 豊栄建設株式会社 | Use district 用途地域 | | Quasi-residence 準住居 | Land category 地目 | | Residential land 宅地 | Company profile 会社概要 | | <Marketing alliance (agency)> Governor of Hokkaido Ishikari (2) Article 007 142 issue (Ltd.) Design Center Yubinbango062-0903 Sapporo, Hokkaido Toyohira-ku Toyohirasanjo 2-4-8 DC building <販売提携(代理)>北海道知事石狩(2)第007142号(株)デザインセンター〒062-0903 北海道札幌市豊平区豊平三条2-4-8 DCビル |
Livingリビング  Produce a soothing space interior of natural taste.
ナチュラルテイストのインテリアが心休まる空間を演出。
Local appearance photo現地外観写真  Full of profound feeling of concrete housing unique appearance design.
コンクリート住宅ならではの重厚感あふれる外観デザイン。
 Tile finish front is drifting luxury.
前面は高級感漂うタイル仕上げ。
Balconyバルコニー  Privacy comfortable balcony that was also guarded the, It leads to open from the living room.
プライバシーも守られた快適なバルコニーは、リビングから開放的につながります。
Livingリビング  Because there is a window to the kitchen side, Bright and open space.
キッチン側にも窓があるため、明るく開放的な空間です。
 By made a living on the second floor, Increased lighting force, It won the brightness and airy.
リビングを2階にしたことで、採光力が高まり、明るさと開放感を獲得。
Parking lot駐車場  Parking space of the front of the entrance is, Ensure a 2 car. For visitors, Or it can be used as a second car.
玄関前のの駐車スペースは、2台分を確保。来客用、あるいはセカンドカー用として利用できます。
Entrance玄関  Upon entering the front door, Large shoe box in space with a space.
玄関を入ると、ゆとりのあるスペースに大きなシューズボックス。
Bathroom浴室  Bathroom to settle in chic shades
シックな色合いで落ち着くバスルーム
Kitchenキッチン  Face-to-face kitchen that can be overlooking the living. It increases the family of communication.
リビングを見渡すことのできる対面キッチン。家族のコミュニケーションが高まります。
Construction ・ Construction method ・ specification構造・工法・仕様  Because of the rugged concrete structure, Excellent durability, Also it suppressed the cost of the repair costs. Since the long life housing asset value can be maintained over a long period of time, It allows you to take advantage of future assets.
頑丈なコンクリート構造の為、耐久性にも優れ、修繕費のコストも抑えられる。長寿命住宅は資産価値が長期にわたって維持できるので、将来の資産活用が可能になります。
 Sound insulation performance, It is an important factor for a comfortable life. The wall thickness of the reinforced concrete housing 150 ~ 180. Because of the specific gravity of greater substance, Provides excellent sound insulation.
遮音性能は、快適な生活のために重要な要素です。鉄筋コンクリート住宅の壁厚は150 ~ 180。比重の大きい物質の為、優れた遮音性を発揮します。
 Japan typhoon, tornado, And earthquakes, It is a variety of natural disasters in many countries. Typhoon for reinforced concrete has been integrated into the weight is heavy precursor six-sided, To demonstrate strength against wind pressure, such as a tornado.
日本は台風、竜巻、地震と、さまざまな自然災害が多い国です。鉄筋コンクリートは重量が重く躯体6面が一体化されているため台風、竜巻などの風圧に対しても強さを発揮します。
 Wall reinforced concrete structure, Because it has been configured with integral hexahedral, Absorb the external force in the face ・ Excellent dispersion and earthquake resistance, In addition the main structure itself because of noncombustible material, Also it has excellent fire resistance.
壁式鉄筋コンクリート構造は、一体化した六面体で構成されているため、外力を面で吸収・分散し耐震性に優れ、また主要構造部そのものが不燃材料の為、耐火性にも優れています。
Local guide map現地案内図  Subway "Shiraishi" station 7-minute walk. Around the station has been enhanced living convenience facilities.
地下鉄「白石」駅徒歩7分。駅周辺は生活利便施設が充実しています。
Local appearance photo現地外観写真  Local (May 2013) Shooting
現地(2013年5月)撮影
Balconyバルコニー  Balcony surrounded by a concrete wall, You can enjoy as a private space
コンクリート壁に囲まれたバルコニーは、プライベートスペースとして楽しめます
 Other Equipment
その他設備
Receipt収納  The entrance, Another storage and blind space to put around to not to take off my shoes. It is possible to fit even strollers and children's play equipment
玄関には、靴を脱がずに廻り込めるもう一つの収納とブラインドスペース。ベビーカーや子供の遊び道具も収める事が可能です
Other Equipmentその他設備  Durable wash bowl is a high-quality enamel ・ Excellent acid resistance, Keep the cleanliness in the easy to clean.
洗面ボウルは高品位ホーローで耐久性・耐酸性に優れ、簡単お手入れで清潔さを保ちます。
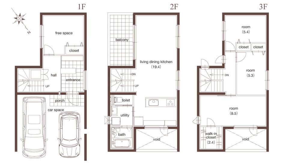
Floor plan間取り図  (C section), Price 28.8 million yen, 4LDK, Land area 84.01 sq m , Building area 117.82 sq m
(C区画)、価格2880万円、4LDK、土地面積84.01m2、建物面積117.82m2
 The entire compartment Figure
全体区画図
 Produce a soothing space interior of natural taste.
ナチュラルテイストのインテリアが心休まる空間を演出。
Station駅  Subway Tozai Line to Shiraishi 550m
地下鉄東西線白石まで550m
Supermarketスーパー  788m to Sapporo Food Center Shiraishi shop
札幌フードセンター白石店まで788m
Drug storeドラッグストア  To drag Seimusu annular passage Misono shop 221m
ドラッグセイムス環状通美園店まで221m
Other Equipmentその他設備  Face-to-face kitchen overlooking the living room. Sink the static sound function.
リビングを見渡せる対面型キッチン。シンクは静音機能。
Local guide map現地案内図  "Toyoen elementary school," a 3-minute walk, park, Cycling is a load near a good environment.
「豊園小学校」徒歩3分、公園、サイクリングロード至近の良好な環境です。
You will receive this brochureこんなパンフレットが届きます  You will receive a listing of the concept and a detailed floor plan plan. Now Request!
物件のコンセプトや詳細な間取りプランが届きます。今すぐ資料請求!
Other Equipmentその他設備  And of clean easy flat design of the range hood. Made of enamel that does not soak into the dirt, Persistent dirt wipe quick and people. (Same specifications)
お掃除のしやすいフラット設計のレンジフード。汚れの染み込まないホーロー製なので、しつこい汚れもサッとひと拭き。(同仕様)
 Water purification function shower faucet. Since the water purification machine is built-in location also taken without, Simple, easy-to-use styling.
浄水機能付シャワー水栓。浄水機が内蔵型なので場所もとらず、使いやすいシンプルなスタイリング。
Junior high school中学校  563m to Sapporo City NichiAkira junior high school
札幌市立日章中学校まで563m
Primary school小学校  219m up to elementary school Sapporo TatsuYutaka Garden
札幌市立豊園小学校まで219m
Location
|