New Homes » Kansai » Hyogo Prefecture » Akashi
 
| | Akashi, Hyogo Prefecture 兵庫県明石市 |
| Sanyo Electric Railway Main Line "Fujie" walk 8 minutes 山陽電鉄本線「藤江」歩8分 |
| This is a new subdivision in the popular seaside area Fujie. The nearest station, The sea is within walking distance, Shopping facilities are located near. 人気の藤江シーサイドエリアに新規分譲です。最寄駅、海が徒歩圏内にあり、買い物施設も近くにあります。 |
| This is a new subdivision in the popular seaside area Fujie. The nearest station, The sea is within walking distance, Shopping facilities are located near. 人気の藤江シーサイドエリアに新規分譲です。最寄駅、海が徒歩圏内にあり、買い物施設も近くにあります。 |
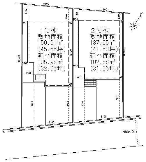
Features pickup 特徴ピックアップ | | Measures to conserve energy / Corresponding to the flat-35S / Year Available / Parking two Allowed / 2 along the line more accessible / Super close / It is close to the city / Within 2km to the sea / System kitchen / Bathroom Dryer / Yang per good / A quiet residential area / LDK15 tatami mats or more / Around traffic fewer / Japanese-style room / Shaping land / garden / Washbasin with shower / Face-to-face kitchen / Barrier-free / Toilet 2 places / Bathroom 1 tsubo or more / 2-story / Double-glazing / Warm water washing toilet seat / The window in the bathroom / TV monitor interphone / Ventilation good / All room 6 tatami mats or more / Water filter / City gas / A large gap between the neighboring house / Development subdivision in 省エネルギー対策 /フラット35Sに対応 /年内入居可 /駐車2台可 /2沿線以上利用可 /スーパーが近い /市街地が近い /海まで2km以内 /システムキッチン /浴室乾燥機 /陽当り良好 /閑静な住宅地 /LDK15畳以上 /周辺交通量少なめ /和室 /整形地 /庭 /シャワー付洗面台 /対面式キッチン /バリアフリー /トイレ2ヶ所 /浴室1坪以上 /2階建 /複層ガラス /温水洗浄便座 /浴室に窓 /TVモニタ付インターホン /通風良好 /全居室6畳以上 /浄水器 /都市ガス /隣家との間隔が大きい /開発分譲地内 | Event information イベント情報 | | Local tours (please make a reservation beforehand) schedule / Every Saturday, Sunday and public holidays time / 10:00 ~ 17:00 to complete I would like to see the structure of the building that does not look at the. Sales on site will have to wait, but please join us feel free to so you can visit your freely. 現地見学会(事前に必ず予約してください)日程/毎週土日祝時間/10:00 ~ 17:00完成してからは見れない建物の構造体を見て頂きたいと思います。現地にて営業が待機しておりますがご自由に見学出来ますのでお気軽にお越しください。 | Property name 物件名 | | Libre Garden Akashi ・ Fujie third term リーブルガーデン 明石・藤江3期 | Price 価格 | | 30,800,000 yen ~ 31,800,000 yen 3080万円 ~ 3180万円 | Floor plan 間取り | | 4LDK 4LDK | Units sold 販売戸数 | | 2 units 2戸 | Total units 総戸数 | | 2 units 2戸 | Land area 土地面積 | | 137.65 sq m ~ 150.95 sq m (41.63 tsubo ~ 45.66 square meters) 137.65m2 ~ 150.95m2(41.63坪 ~ 45.66坪) | Building area 建物面積 | | 102.68 sq m ~ 105.95 sq m (31.06 tsubo ~ 32.04 square meters) 102.68m2 ~ 105.95m2(31.06坪 ~ 32.04坪) | Driveway burden-road 私道負担・道路 | | Road width: 4.0m, Concrete pavement 道路幅:4.0m、コンクリート舗装 | Completion date 完成時期(築年月) | | October 2013 2013年10月 | Address 住所 | | Akashi, Hyogo Prefecture Fujie 兵庫県明石市藤江 | Traffic 交通 | | Sanyo Electric Railway Main Line "Fujie" walk 8 minutes JR Sanyo Line "Nishi Akashi" walk 22 minutes 山陽電鉄本線「藤江」歩8分 JR山陽本線「西明石」歩22分
| Person in charge 担当者より | | [Regarding this property.] Popular Fujie seaside area properties, It is one section of a quiet residential area of the station near. 【この物件について】人気の藤江シーサイドエリア物件、駅近の閑静な住宅街の一画です。 | Contact お問い合せ先 | | Sakura Kentaku (Ltd.) TEL: 0800-805-5782 [Toll free] mobile phone ・ Also available from PHS Caller ID is not notified Please contact the "saw SUUMO (Sumo)" If it does not lead, If the real estate company さくら建宅(株)TEL:0800-805-5782【通話料無料】携帯電話・PHSからもご利用いただけます 発信者番号は通知されません 「SUUMO(スーモ)を見た」と問い合わせください つながらない方、不動産会社の方は
| Building coverage, floor area ratio 建ぺい率・容積率 | | Kenpei rate: 60%, Volume ratio: 200% 建ペい率:60%、容積率:200% | Time residents 入居時期 | | Consultation 相談 | Land of the right form 土地の権利形態 | | Ownership 所有権 | Structure and method of construction 構造・工法 | | Wooden 2-story (framing method) 木造2階建(軸組工法) | Use district 用途地域 | | One dwelling 1種住居 | Land category 地目 | | Residential land 宅地 | Overview and notices その他概要・特記事項 | | Building confirmation number: No. Trust 13-1244 (1 Building), The Trust No. 13-1245 (2 Building) 建築確認番号:第トラスト13-1244号(1号棟)、第トラスト13-1245号(2号棟) | Company profile 会社概要 | | <Marketing alliance (agency)> Governor of Hyogo Prefecture (2) No. 401317 Sakura Kentaku Co. Yubinbango673-0044 Akashi, Hyogo Prefecture Fujie 1849-1 <販売提携(代理)>兵庫県知事(2)第401317号さくら建宅(株)〒673-0044 兵庫県明石市藤江1849-1 |
Local appearance photo現地外観写真  Local entire photo, 2013 October 27, shooting
現地全体写真2013年10月27日撮影
 1 Building 2013 October 27, shooting
1号棟 2013年10月27日撮影
 Building 2 2013 October 27, shooting
2号棟 2013年10月27日撮影
Floor plan間取り図  (1 Building), Price 31,800,000 yen, 4LDK, Land area 150.61 sq m , Building area 105.95 sq m
(1号棟)、価格3180万円、4LDK、土地面積150.61m2、建物面積105.95m2
Kindergarten ・ Nursery幼稚園・保育園  932m until the Akashi Municipal Fujie kindergarten
明石市立藤江幼稚園まで932m
The entire compartment Figure全体区画図  Compartment figure
区画図
Floor plan間取り図  (Building 2), Price 30,800,000 yen, 4LDK, Land area 137.65 sq m , Building area 102.68 sq m
(2号棟)、価格3080万円、4LDK、土地面積137.65m2、建物面積102.68m2
Primary school小学校  984m until the Akashi Municipal Fujie Elementary School
明石市立藤江小学校まで984m
Junior high school中学校  1998m to Akashi Municipal Bokai junior high school
明石市立望海中学校まで1998m
Location
|