New Homes » Kansai » Hyogo Prefecture » Akashi
 
| | Akashi, Hyogo Prefecture 兵庫県明石市 |
| JR Sanyo Line "Okubo" walk 22 minutes JR山陽本線「大久保」歩22分 |
| 18 tatami mats spacious living super close to the commercial facilities a large number in the life convenient human feeling porch light with sensor ・ Entrance door intercom with picking measures with a TV monitor ☆ Exterior wall siding Dairaito method ☆ 18畳のゆったりリビングスーパーが近く商業施設多数で生活至便人感センサー付玄関灯・TVモニター付インターホンピッキング対策付玄関ドア☆外壁サイディングダイライト工法☆ |
| Pre-ground survey, LDK18 tatami mats or more, Super close, System kitchen, Bathroom Dryer, Yang per good, All room storage, A quiet residential area, Or more before road 6m, Corner lotese-style room, garden, Home garden, Washbasin with shower, Face-to-face kitchen, Barrier-free, Toilet 2 places, Bathroom 1 tsubo or more, 2-story, Double-glazing, Otobasu, Warm water washing toilet seat, Underfloor Storage, The window in the bathroom, TV monitor interphone, Leafy residential area, Ventilation good, Water filter, City gas 地盤調査済、LDK18畳以上、スーパーが近い、システムキッチン、浴室乾燥機、陽当り良好、全居室収納、閑静な住宅地、前道6m以上、角地、和室、庭、家庭菜園、シャワー付洗面台、対面式キッチン、バリアフリー、トイレ2ヶ所、浴室1坪以上、2階建、複層ガラス、オートバス、温水洗浄便座、床下収納、浴室に窓、TVモニタ付インターホン、緑豊かな住宅地、通風良好、浄水器、都市ガス |
Features pickup 特徴ピックアップ | | Pre-ground survey / LDK18 tatami mats or more / Super close / System kitchen / Bathroom Dryer / Yang per good / All room storage / A quiet residential area / Or more before road 6m / Corner lot / Japanese-style room / garden / Home garden / Washbasin with shower / Face-to-face kitchen / Barrier-free / Toilet 2 places / Bathroom 1 tsubo or more / 2-story / Double-glazing / Otobasu / Warm water washing toilet seat / Underfloor Storage / The window in the bathroom / TV monitor interphone / Leafy residential area / Ventilation good / Water filter / City gas 地盤調査済 /LDK18畳以上 /スーパーが近い /システムキッチン /浴室乾燥機 /陽当り良好 /全居室収納 /閑静な住宅地 /前道6m以上 /角地 /和室 /庭 /家庭菜園 /シャワー付洗面台 /対面式キッチン /バリアフリー /トイレ2ヶ所 /浴室1坪以上 /2階建 /複層ガラス /オートバス /温水洗浄便座 /床下収納 /浴室に窓 /TVモニタ付インターホン /緑豊かな住宅地 /通風良好 /浄水器 /都市ガス | Price 価格 | | 27,800,000 yen 2780万円 | Floor plan 間取り | | 4LDK 4LDK | Units sold 販売戸数 | | 1 units 1戸 | Total units 総戸数 | | 1 units 1戸 | Land area 土地面積 | | 130.97 sq m (39.61 tsubo) (Registration) 130.97m2(39.61坪)(登記) | Building area 建物面積 | | 99.63 sq m (30.13 tsubo) (measured) 99.63m2(30.13坪)(実測) | Driveway burden-road 私道負担・道路 | | Nothing, Southwest 6.3m width, Northeast 6.5m width, Northwest 5.5m width 無、南西6.3m幅、北東6.5m幅、北西5.5m幅 | Completion date 完成時期(築年月) | | January 2014 2014年1月 | Address 住所 | | Akashi, Hyogo Prefecture Okubo MachiOkubo 兵庫県明石市大久保町大窪 | Traffic 交通 | | JR Sanyo Line "Okubo" walk 22 minutes JR山陽本線「大久保」歩22分
| Related links 関連リンク | | [Related Sites of this company] 【この会社の関連サイト】 | Person in charge 担当者より | | Personnel Matsubara KenKiyoshi Age: 40 Daigyokai experience: splendid-turned from a three-year master BAR. Immature part will be covered by the own human force polished in brightness and Kyakushobai of inborn. Not a dream, We will consider the reality of my home purchase to help with full force. 担当者松原 憲清年齢:40代業界経験:3年BARのマスターからの華麗なる転身。未熟な部分は持前の明るさと客商売で磨き上げた独自の人間力でカバー致します。 夢ではなく、現実のマイホームご購入を全力でお手伝いさせて頂きます。 | Contact お問い合せ先 | | TEL: 0800-603-3475 [Toll free] mobile phone ・ Also available from PHS Caller ID is not notified Please contact the "saw SUUMO (Sumo)" If it does not lead, If the real estate company TEL:0800-603-3475【通話料無料】携帯電話・PHSからもご利用いただけます 発信者番号は通知されません 「SUUMO(スーモ)を見た」と問い合わせください つながらない方、不動産会社の方は
| Building coverage, floor area ratio 建ぺい率・容積率 | | 60% ・ 200% 60%・200% | Time residents 入居時期 | | 4 months after the contract 契約後4ヶ月 | Land of the right form 土地の権利形態 | | Ownership 所有権 | Structure and method of construction 構造・工法 | | Wooden 2-story (framing method) 木造2階建(軸組工法) | Use district 用途地域 | | One middle and high 1種中高 | Overview and notices その他概要・特記事項 | | The person in charge: Matsubara KenKiyoshi, Facilities: Public Water Supply, This sewage, City gas, Building confirmation number: No. H25SHC115130, Parking: car space 担当者:松原 憲清、設備:公営水道、本下水、都市ガス、建築確認番号:第H25SHC115130号、駐車場:カースペース | Company profile 会社概要 | | <Mediation> Governor of Hyogo Prefecture (2) No. 010887 (with) good house Yubinbango673-0041 Akashi, Hyogo Prefecture Nishiakashiminami cho 2-18-16 <仲介>兵庫県知事(2)第010887号(有)よしはうす〒673-0041 兵庫県明石市西明石南町2-18-16 |
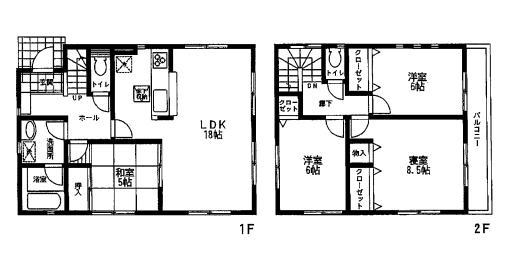
Floor plan間取り図  27,800,000 yen, 4LDK, Land area 130.97 sq m , Building area 99.63 sq m 4LDK
2780万円、4LDK、土地面積130.97m2、建物面積99.63m2 4LDK
Rendering (appearance)完成予想図(外観)  Local elevational view
現地立面図
Local photos, including front road前面道路含む現地写真  Local (12 May 2013) Shooting
現地(2013年12月)撮影
Same specifications photos (living)同仕様写真(リビング)  Other issue areas
他号地
Same specifications photo (bathroom)同仕様写真(浴室)  Other issue areas
他号地
Same specifications photo (kitchen)同仕様写真(キッチン)  Other issue areas
他号地
Primary school小学校  1508m to Okubo Elementary School
大久保小学校まで1508m
Junior high school中学校  Okubokita 1298m until junior high school
大久保北中学校まで1298m
Location
|