New Homes » Kansai » Hyogo Prefecture » Akashi
 
| | Akashi, Hyogo Prefecture 兵庫県明石市 |
| JR Sanyo Line "Tsuchiyama" walk 19 minutes JR山陽本線「土山」歩19分 |
| JR "Tsuchiyama" station walk 19 minutes Sanyo "east Futami" education to the station 12 minutes' walk walking distance ・ shopping ・ Medical facilities. JR「土山」駅徒歩19分山陽「東二見」駅徒歩12分徒歩圏内に教育・買物・医療施設。 |
Price 価格 | | 36,900,000 yen ~ 42,800,000 yen 3690万円 ~ 4280万円 | Floor plan 間取り | | 3LDK ~ 4LDK 3LDK ~ 4LDK | Units sold 販売戸数 | | 5 units 5戸 | Total units 総戸数 | | 5 units 5戸 | Land area 土地面積 | | 124.15 sq m ~ 152.86 sq m 124.15m2 ~ 152.86m2 | Building area 建物面積 | | 98.74 sq m ~ 111.16 sq m 98.74m2 ~ 111.16m2 | Completion date 完成時期(築年月) | | February 2014 late schedule 2014年2月下旬予定 | Address 住所 | | Akashi, Hyogo Prefecture Futami AzumaFutami shaped mountains 695-1 兵庫県明石市二見町東二見字山中695-1他 | Traffic 交通 | | JR Sanyo Line "Tsuchiyama" walk 19 minutes Sanyo Electric Railway Main Line "east Futami" walk 12 minutes JR山陽本線「土山」歩19分 山陽電鉄本線「東二見」歩12分
| Related links 関連リンク | | [Related Sites of this company] 【この会社の関連サイト】 | Person in charge 担当者より | | Rep Isao Onoto 担当者小野島功 | Contact お問い合せ先 | | Daiwa House Industry Kobe branch Akashi Kaigandori exhibition hall TEL: 0120-507-260 [Toll free] Please contact the "saw SUUMO (Sumo)" 大和ハウス工業 神戸支社 明石海岸通展示場TEL:0120-507-260【通話料無料】「SUUMO(スーモ)を見た」と問い合わせください | Most price range 最多価格帯 | | 38 million yen (2 units) 3800万円台(2戸) | Expenses 諸費用 | | Other expenses: - その他諸費用:- | Building coverage, floor area ratio 建ぺい率・容積率 | | 60% ・ 200% 60%・200% | Time residents 入居時期 | | February 2014 late schedule 2014年2月下旬予定 | Land of the right form 土地の権利形態 | | Ownership 所有権 | Structure and method of construction 構造・工法 | | Light-gauge steel 2-story (5 units) 軽量鉄骨2階建(5戸) | Use district 用途地域 | | One dwelling 1種住居 | Land category 地目 | | Residential land 宅地 | Overview and notices その他概要・特記事項 | | Contact: Isao Onoto, Building confirmation number: H25 confirmation Ken'nishi Review soldiers 01384 No. other 担当者:小野島功、建築確認番号:H25確認建西評兵01384号他 | Company profile 会社概要 | | [Advertiser] <Seller> Minister of Land, Infrastructure and Transport (14) No. 245 (company) Osaka realty business Association (Company) Real Estate Association Daiwa House Industry Co., Ltd. Yubinbango530-8241 Osaka Umeda 3-chome No. 3 No. 5 [Seller] Daiwa House Industry Co., Ltd. [Sale] Seller 【広告主】<売主>国土交通大臣(14)第245号(社)大阪府宅地建物取引業協会会員(社)不動産協会会員大和ハウス工業株式会社〒530-8241 大阪府大阪市梅田3丁目3番5号【売主】大和ハウス工業株式会社【販売】売主 |
Compartment figure区画図  Price - ※ Compartment Figure
価格 - ※区画図
Rendering (appearance)完成予想図(外観) ![Rendering (appearance). [No. 1 destination] [Rendering] ※ Rendering and the outer structure because it drew on the basis of the drawings ・ For planting, There is the actual and somewhat different. Also, The car is not included in the price.](/images/hyogo/akashi/7100340002.jpg) [No. 1 destination] [Rendering] ※ Rendering and the outer structure because it drew on the basis of the drawings ・ For planting, There is the actual and somewhat different. Also, The car is not included in the price.
【1号地】[完成予想図]※図面に基づいて描いているので完成予想図及び外構・植栽については、実際とは多少異なる場合あります。また、車は価格に含まれません。
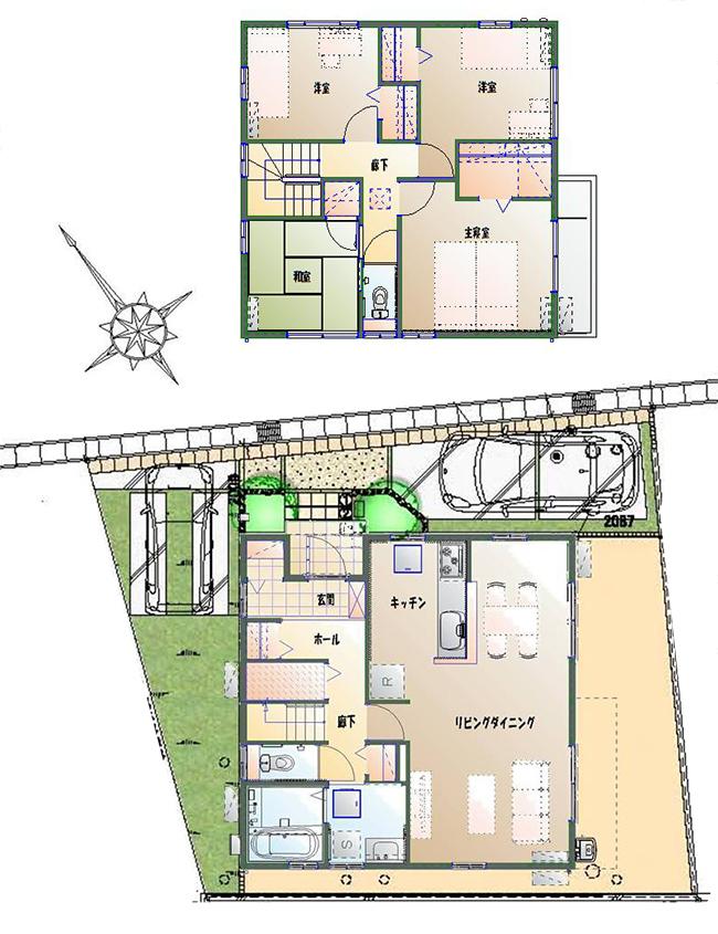
Floor plan間取り図 ![Floor plan. [No. 1 destination] So we have drawn on the basis of the Plan view] drawings, Plan and the outer structure ・ Planting, such as might actually differ slightly from. Also, furniture ・ Car, etc. are not included in the price.](/images/hyogo/akashi/7100340003.jpg) [No. 1 destination] So we have drawn on the basis of the Plan view] drawings, Plan and the outer structure ・ Planting, such as might actually differ slightly from. Also, furniture ・ Car, etc. are not included in the price.
【1号地】[プラン図] 図面を基に描いておりますので、プラン及び外構・植栽などは実際と多少異なる場合があります。 また、家具・車などは価格に含まれません。
![Floor plan. [No. 2 place] So we have drawn on the basis of the Plan view] drawings, Plan and the outer structure ・ Planting, such as might actually differ slightly from. Also, furniture ・ Car, etc. are not included in the price.](/images/hyogo/akashi/7100340005.jpg) [No. 2 place] So we have drawn on the basis of the Plan view] drawings, Plan and the outer structure ・ Planting, such as might actually differ slightly from. Also, furniture ・ Car, etc. are not included in the price.
【2号地】[プラン図] 図面を基に描いておりますので、プラン及び外構・植栽などは実際と多少異なる場合があります。 また、家具・車などは価格に含まれません。
Rendering (appearance)完成予想図(外観) ![Rendering (appearance). [No. 2 place] [Rendering] ※ Rendering and the outer structure because it drew on the basis of the drawings ・ For planting, There is the actual and somewhat different. Also, The car is not included in the price.](/images/hyogo/akashi/7100340004.jpg) [No. 2 place] [Rendering] ※ Rendering and the outer structure because it drew on the basis of the drawings ・ For planting, There is the actual and somewhat different. Also, The car is not included in the price.
【2号地】[完成予想図]※図面に基づいて描いているので完成予想図及び外構・植栽については、実際とは多少異なる場合あります。また、車は価格に含まれません。
Local guide map現地案内図  ※ Traffic guide map
※交通案内図
Floor plan間取り図 ![Floor plan. [No. 3 place] So we have drawn on the basis of the Plan view] drawings, Plan and the outer structure ・ Planting, such as might actually differ slightly from. Also, furniture ・ Car, etc. are not included in the price.](/images/hyogo/akashi/7100340007.jpg) [No. 3 place] So we have drawn on the basis of the Plan view] drawings, Plan and the outer structure ・ Planting, such as might actually differ slightly from. Also, furniture ・ Car, etc. are not included in the price.
【3号地】[プラン図] 図面を基に描いておりますので、プラン及び外構・植栽などは実際と多少異なる場合があります。 また、家具・車などは価格に含まれません。
Rendering (appearance)完成予想図(外観) ![Rendering (appearance). [No. 3 place] [Rendering] ※ Rendering and the outer structure because it drew on the basis of the drawings ・ For planting, There is the actual and somewhat different. Also, The car is not included in the price.](/images/hyogo/akashi/7100340006.jpg) [No. 3 place] [Rendering] ※ Rendering and the outer structure because it drew on the basis of the drawings ・ For planting, There is the actual and somewhat different. Also, The car is not included in the price.
【3号地】[完成予想図]※図面に基づいて描いているので完成予想図及び外構・植栽については、実際とは多少異なる場合あります。また、車は価格に含まれません。
Floor plan間取り図 ![Floor plan. [No. 4 place] So we have drawn on the basis of the Plan view] drawings, Plan and the outer structure ・ Planting, such as might actually differ slightly from. Also, furniture ・ Car, etc. are not included in the price.](/images/hyogo/akashi/7100340009.jpg) [No. 4 place] So we have drawn on the basis of the Plan view] drawings, Plan and the outer structure ・ Planting, such as might actually differ slightly from. Also, furniture ・ Car, etc. are not included in the price.
【4号地】[プラン図] 図面を基に描いておりますので、プラン及び外構・植栽などは実際と多少異なる場合があります。 また、家具・車などは価格に含まれません。
Rendering (appearance)完成予想図(外観) ![Rendering (appearance). [No. 4 place] [Rendering] ※ Rendering and the outer structure because it drew on the basis of the drawings ・ For planting, There is the actual and somewhat different. Also, car ・ Etc. kennel not included in the price.](/images/hyogo/akashi/7100340008.jpg) [No. 4 place] [Rendering] ※ Rendering and the outer structure because it drew on the basis of the drawings ・ For planting, There is the actual and somewhat different. Also, car ・ Etc. kennel not included in the price.
【4号地】[完成予想図]※図面に基づいて描いているので完成予想図及び外構・植栽については、実際とは多少異なる場合あります。また、車・犬小屋などは価格に含まれません。
Floor plan間取り図 ![Floor plan. [No. 5 areas] So we have drawn on the basis of the Plan view] drawings, Plan and the outer structure ・ Planting, such as might actually differ slightly from. Also, furniture ・ Car, etc. are not included in the price.](/images/hyogo/akashi/7100340011.jpg) [No. 5 areas] So we have drawn on the basis of the Plan view] drawings, Plan and the outer structure ・ Planting, such as might actually differ slightly from. Also, furniture ・ Car, etc. are not included in the price.
【5号地】[プラン図] 図面を基に描いておりますので、プラン及び外構・植栽などは実際と多少異なる場合があります。 また、家具・車などは価格に含まれません。
Rendering (appearance)完成予想図(外観) ![Rendering (appearance). [No. 5 areas] [Rendering] ※ Rendering and the outer structure because it drew on the basis of the drawings ・ For planting, There is the actual and somewhat different. Also, The car is not included in the price.](/images/hyogo/akashi/7100340010.jpg) [No. 5 areas] [Rendering] ※ Rendering and the outer structure because it drew on the basis of the drawings ・ For planting, There is the actual and somewhat different. Also, The car is not included in the price.
【5号地】[完成予想図]※図面に基づいて描いているので完成予想図及び外構・植栽については、実際とは多少異なる場合あります。また、車は価格に含まれません。
Location
|