|
|
Hyogo Prefecture Ashiya
兵庫県芦屋市
|
|
JR Tokaido Line "Ashiya" walk 15 minutes
JR東海道本線「芦屋」歩15分
|
|
Facing south, Or more before road 6m, Yang per good, Parking two Allowed, 2 along the line more accessible, A quiet residential area, System kitchen, Bathroom Dryer, Flat to the station, Siemens south road, LDK15 tatami mats or more, Shaping land, shower
南向き、前道6m以上、陽当り良好、駐車2台可、2沿線以上利用可、閑静な住宅地、システムキッチン、浴室乾燥機、駅まで平坦、南側道路面す、LDK15畳以上、整形地、シャワー
|
|
■ JR Kobe Line "Ashiya" station, Hanshin "Ashiya" two-wire Available station ■ Front road is 6m in the south-facing. Day good ■ now, Equipment change ・ The color can be selected
■JR神戸線「芦屋」駅、阪神本線「芦屋」駅の二線利用可■南向きで前面道路は6m。日当り良好■今なら、設備変更・カラー選択可能です
|
Features pickup 特徴ピックアップ | | Parking two Allowed / 2 along the line more accessible / Facing south / System kitchen / Bathroom Dryer / Yang per good / Flat to the station / Siemens south road / A quiet residential area / LDK15 tatami mats or more / Or more before road 6m / Shaping land / Washbasin with shower / Face-to-face kitchen / Toilet 2 places / 2-story / South balcony / Double-glazing / All living room flooring / Walk-in closet / All rooms are two-sided lighting / Flat terrain 駐車2台可 /2沿線以上利用可 /南向き /システムキッチン /浴室乾燥機 /陽当り良好 /駅まで平坦 /南側道路面す /閑静な住宅地 /LDK15畳以上 /前道6m以上 /整形地 /シャワー付洗面台 /対面式キッチン /トイレ2ヶ所 /2階建 /南面バルコニー /複層ガラス /全居室フローリング /ウォークインクロゼット /全室2面採光 /平坦地 |
Price 価格 | | 56,800,000 yen 5680万円 |
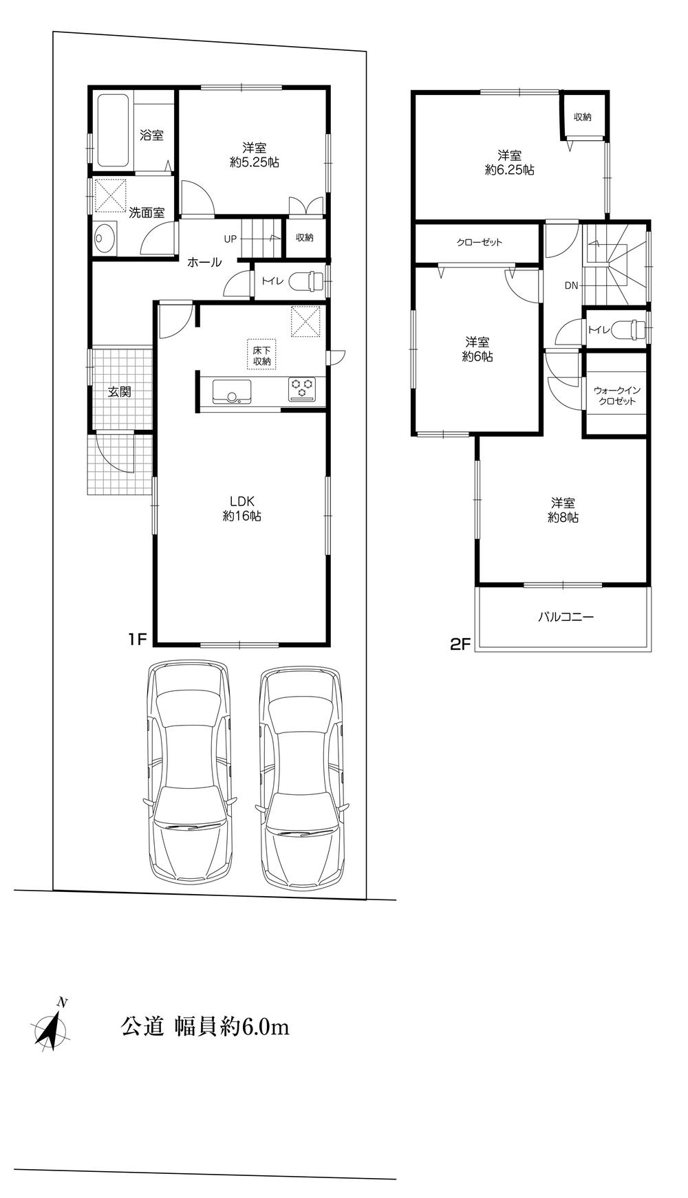
Floor plan 間取り | | 4LDK 4LDK |
Units sold 販売戸数 | | 1 units 1戸 |
Total units 総戸数 | | 2 units 2戸 |
Land area 土地面積 | | 121.54 sq m (36.76 tsubo) (measured) 121.54m2(36.76坪)(実測) |
Building area 建物面積 | | 98.53 sq m (29.80 square meters) 98.53m2(29.80坪) |
Driveway burden-road 私道負担・道路 | | Nothing, South 6m width 無、南6m幅 |
Completion date 完成時期(築年月) | | Three months after the contract 契約後3ヶ月 |
Address 住所 | | Hyogo Prefecture Ashiya Kuregawa cho 8-16 兵庫県芦屋市呉川町8-16 |
Traffic 交通 | | JR Tokaido Line "Ashiya" walk 15 minutes Hanshin "Ashiya" walk 14 minutes JR東海道本線「芦屋」歩15分 阪神本線「芦屋」歩14分
|
Contact お問い合せ先 | | Shukugawa real estate (Ltd.) TEL: 0798-73-9393 Please inquire as "saw SUUMO (Sumo)" 夙川不動産(株)TEL:0798-73-9393「SUUMO(スーモ)を見た」と問い合わせください |
Building coverage, floor area ratio 建ぺい率・容積率 | | 60% ・ 200% 60%・200% |
Time residents 入居時期 | | Three months after the contract 契約後3ヶ月 |
Land of the right form 土地の権利形態 | | Ownership 所有権 |
Structure and method of construction 構造・工法 | | Wooden 2-story 木造2階建 |
Use district 用途地域 | | One middle and high 1種中高 |
Other limitations その他制限事項 | | Regulations have by the Landscape Act, Height district 景観法による規制有、高度地区 |
Overview and notices その他概要・特記事項 | | Facilities: Public Water Supply, This sewage, City gas, Building confirmation number: No. Trust 13-0702, Parking: car space 設備:公営水道、本下水、都市ガス、建築確認番号:第トラスト13-0702、駐車場:カースペース |
Company profile 会社概要 | | <Mediation> Governor of Hyogo Prefecture (2) the first 203,862 No. Shukugawa Real Estate Co., Ltd. Yubinbango662-0061 Nishinomiya, Hyogo Prefecture Matsugaoka-cho, 10-18-302 <仲介>兵庫県知事(2)第203862号夙川不動産(株)〒662-0061 兵庫県西宮市松ケ丘町10-18-302 |