New Homes » Kansai » Hyogo Prefecture » Kawabe District
 
| | Hyogo Prefecture Kawabe District Inagawa-cho 兵庫県川辺郡猪名川町 |
| Nose Electric Railway Nisseisen "Nissei central" bus 10 minutes Ohara Koenmae step 2 minutes 能勢電鉄日生線「日生中央」バス10分大原公園前歩2分 |
| Hokusetsu one of the three large new town center of "Inagawa Parktown" [platinum] Detached subdivision appeared to! ! Please feel the splendor to live in the center of this New Town. 北摂3大ニュータウンの1つ「猪名川パークタウン」の中心地【白金】に戸建分譲地が登場!!このニュータウンの中心地で暮らす素晴らしさを感じてください。 |
| ■ Land 50 square meters or more of breadth! ■ Get the "Housing Performance Evaluation" whole mansion "long-term high-quality housing."! ■ In the house of peace of mind, Earthquake resistant, Wind, Measures to conserve energy, Degradation measures, Get the best grades, respectively, such as maintenance measures! ! ■ Before Aeon Mall Inagawa is eye! Other commercial facility ・ Educational institutions ・ Also enhance public facilities! ■ kindergarten ・ Walk to the elementary school 1 minute! Walk up to junior high school 6 minutes! Quite happy to child-rearing! ■ Surrounded by green Kokoro癒 and is being surrounding environment. ■ "Koenmae Ohara" around, "Parktown center", Bus stop, such as "platinum 3-chome" enhancement! ☆ Want to live in the land is wide properties! ☆ We want a child-rearing friendly environment! ☆ I want to live in a place surrounded by nature! ■土地50坪以上の広さ!■全邸「長期優良住宅」「住宅性能評価」を取得!■安心の住まいで、耐震、耐風、省エネルギー対策、劣化対策、維持管理対策などそれぞれが最高等級を取得!!■イオンモール猪名川が目の前!その他商業施設・教育施設・公共施設も充実!■幼稚園・小学校まで徒歩1分!中学校まで徒歩6分!子育てにはかなりうれしい! ■緑に囲まれた心癒やされる周辺環境。■周辺に「大原公園前」、「パークタウン中央」、「白金3丁目」などバス停が充実!☆土地が広い物件に住みたい!☆子育てしやすい環境が欲しい!☆自然に囲まれた場所で暮らしたい! |
物件の特徴 物件の特徴 | | We have adapted to the flat 35 criteria in the following item. <Compatibility condition> ● energy savings 以下の項目でフラット35基準に適合しております。<適合条件>●省エネルギー性 | Local guide map 現地案内図 | | Local guide map 現地案内図 | Property name 物件名 | | Forest Ha peer platinum [Hanshin Electric Railway] Second stage フォレストハピア白金【阪神電鉄】第2期 | Price 価格 | | 28,900,000 yen ~ 33,900,000 yen 2890万円 ~ 3390万円 | Floor plan 間取り | | 4LDK 4LDK | Units sold 販売戸数 | | 5 units 5戸 | Total units 総戸数 | | 23 units 23戸 | Land area 土地面積 | | 180.6 sq m ~ 185.77 sq m (54.63 tsubo ~ 56.19 tsubo) (Registration) 180.6m2 ~ 185.77m2(54.63坪 ~ 56.19坪)(登記) | Building area 建物面積 | | 106.33 sq m ~ 126.53 sq m (32.16 tsubo ~ 38.27 tsubo) (Registration) 106.33m2 ~ 126.53m2(32.16坪 ~ 38.27坪)(登記) | Driveway burden-road 私道負担・道路 | | About 6 ~ 13 meters (Asphalt pavement) 約6 ~ 13メートル (アスファルト舗装) | Completion date 完成時期(築年月) | | Mid-September 2013 2013年9月中旬 | Address 住所 | | Hyogo Prefecture Kawabe District Inagawa-cho, platinum 2-5 No., 兵庫県川辺郡猪名川町白金2-5番、他 | Traffic 交通 | | Nose Electric Railway Nisseisen "Nissei central" bus 10 minutes Ohara Koenmae step 2 minutes Hankyu Takarazuka Line "Kawanishinoseguchi" 35 minutes Parktown walk 4 minutes by bus Nose Electric Railway Nisseisen "Nissei central" bus 11 minutes Parktown center walk 4 minutes 能勢電鉄日生線「日生中央」バス10分大原公園前歩2分 阪急宝塚線「川西能勢口」バス35分パークタウン歩4分 能勢電鉄日生線「日生中央」バス11分パークタウン中央歩4分
| Related links 関連リンク | | [Related Sites of this company] 【この会社の関連サイト】 | Contact お問い合せ先 | | Forest Ha peer platinum sales center TEL: 0120-656-282 [Toll free] (mobile phone ・ Also available from PHS. ) Please contact the "saw SUUMO (Sumo)" フォレストハピア白金販売センターTEL:0120-656-282【通話料無料】(携帯電話・PHSからもご利用いただけます。)「SUUMO(スーモ)を見た」と問い合わせください | Sale schedule 販売スケジュール | | Finally Please see this property the second phase is in the open their eyes. [Contact Us] Forest Ha peer platinum sales center TEL: 0120-656-282 いよいよ 第2期がオープンその目で当物件をご覧ください。【お問い合わせ】フォレストハピア白金販売センターTEL:0120-656-282 | Event information イベント情報 | | Model house (please make a reservation beforehand) schedule / Now open ※ Contact Us ・ Reservation destination TEL: toll-free ※ There is a limited seats. Each schedule, Time zone will be happy to end as soon become a full house. モデルハウス(事前に必ず予約してください)日程/公開中※お問い合わせ・ご予約先TEL:フリーダイヤル 0120-656-282メールアドレス:shirogane@lifestage.co.jp※お席に限りがございます。各日程、時間帯が満席になり次第終了とさせていただきます。 | Expenses 諸費用 | | Other expenses: Inagawa Parktown TV community reception facility management union dues 50,000 yen, 300 yen autonomy fee / Month (half a year every collectively collection) その他諸費用:猪名川パークタウンTV共同受信施設管理組合費 50000円、自治会費300円/月(半年毎まとめて徴収) | Building coverage, floor area ratio 建ぺい率・容積率 | | Building coverage 60% → 50% Volume rate of 200% → 80% (By Schedule district plan) 建ぺい率60%→50% 容積率200%→80% (予定地区計画による) | Time residents 入居時期 | | Immediate available 即入居可 | Land of the right form 土地の権利形態 | | Ownership 所有権 | Structure and method of construction 構造・工法 | | Wooden 2-story, Frame construction (2 × 4 construction method) 木造2階建、枠組壁工法(2×4工法) | Construction 施工 | | Akitsu industry アキツ工業 | Use district 用途地域 | | One middle and high 1種中高 | Land category 地目 | | Residential land 宅地 | Other limitations その他制限事項 | | Height ceiling Yes, Setback Yes 高さ最高限度有、壁面後退有 | Overview and notices その他概要・特記事項 | | Building confirmation number: the first BVJ-G12-10-1534 建築確認番号:第BVJ-G12-10-1534 | Company profile 会社概要 | | <Seller> Minister of Land, Infrastructure and Transport (14) No. 03/000265 (company) Osaka Building Lots and Buildings Transaction Business Association (Corporation) Kinki district Real Estate Fair Trade Council member Hanshin Electric Railway Co., Ltd. headquarters Yubinbango553-0001 Osaka-shi, Osaka, Fukushima-ku, Ebie 1-1-24 <marketing alliance (agency)> Minister of Land, Infrastructure and Transport (5) No. 005164 <売主>国土交通大臣(14)第000265号(社)大阪府宅地建物取引業協会会員 (公社)近畿地区不動産公正取引協議会加盟阪神電気鉄道(株)本社〒553-0001 大阪府大阪市福島区海老江1-1-24<販売提携(代理)>国土交通大臣(5)第005164号(株)ライフステージ本社〒532-0011 大阪府大阪市淀川区西中島5-5-15 新大阪セントラルタワー |
Local appearance photo現地外観写真  Forest Ha peer platinum Hanshin Electric Railway to sale
阪神電鉄が分譲するフォレストハピア白金
Model house photoモデルハウス写真  Living
リビング
Kitchenキッチン  Dining where you can spend an elegant time ・ kitchen.
優雅な時間をお過ごしいただけるダイニング・キッチン。
 Kitchen stuck to the functionality and sense of quality.
機能性と上質感にこだわったキッチン。
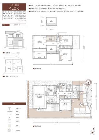
Floor plan間取り図  (No. 12 locations), Price 28,900,000 yen, 4LDK, Land area 182.31 sq m , Building area 109.56 sq m
(12号地)、価格2890万円、4LDK、土地面積182.31m2、建物面積109.56m2
Local appearance photo現地外観写真  local
現地
Livingリビング  Model house
モデルハウス
Bathroom浴室  Achieve a water-saving in the air-in shower.
エアインシャワーで節水を実現。
 Construction ・ Construction method ・ specification
構造・工法・仕様
 Other Equipment
その他設備
Garden庭  Vast garden holiday can also barbecue.
休日にバーベキューもできる広大な庭。
Shopping centreショッピングセンター  Before large-scale commercial facility that specializes city of more than 80m ion Inagawa shops and 80 to the Inagawa ion mall gather "Inagawa Aeon Mall" is the eye!
イオンモール猪名川まで80m イオン猪名川店と80を超える専門店街が集まる大型商業施設「イオンモール猪名川」が目の前!
Model house photoモデルハウス写真  Japanese style room
和室
 The entire compartment Figure
全体区画図
Local guide map現地案内図 ![Local guide map. The center of the comfortable and well-equipped convenient living infrastructure Inagawa Parktown [platinum]](/images/hyogo/kawabegun/4c2f280011.jpg) The center of the comfortable and well-equipped convenient living infrastructure Inagawa Parktown [platinum]
快適で便利生活インフラの整った猪名川パークタウンの中心【白金】
Aerial photograph航空写真  It is seen from the sky site (April 2012) shooting
上空から見た現地(2012年4月)撮影
Access view交通アクセス図  1 hour distance to Osaka
大阪まで1時間圏内
 route map
路線図
Other localその他現地  Platinum elementary school
白金小学校
Floor plan間取り図  (No. 16 locations), Price 30,900,000 yen, 4LDK, Land area 180.99 sq m , Building area 121.78 sq m
(16号地)、価格3090万円、4LDK、土地面積180.99m2、建物面積121.78m2
Livingリビング  Living where you can spend moments of rest.
憩いのひとときをお過ごしいただけるリビング。
Floor plan間取り図  Forest Ha peer platinum Hanshin Electric Railway to sale
阪神電鉄が分譲するフォレストハピア白金
 Forest Ha peer platinum Hanshin Electric Railway to sale
阪神電鉄が分譲するフォレストハピア白金
 (No. 21 locations), Price 33,900,000 yen, 4LDK, Land area 185.63 sq m , Building area 123.63 sq m
(21号地)、価格3390万円、4LDK、土地面積185.63m2、建物面積123.63m2
Primary school小学校  Easy to child-rearing in the distance the reach of 40m th to platinum elementary school!
白金小学校まで40m 目の届く距離で子育てしやすい!
Junior high school中学校  470m traffic even less peace of mind until the Inagawa junior high school!
猪名川中学校まで470m 交通量も少なく安心!
 Other Equipment
その他設備
 Other Equipment
その他設備
Presentプレゼント  "New life support campaign" Holding. ! ! Heisei only to your delivery of customers to 25 December, Arrival to 5 persons 500,000 yen worth of furniture ・ The consumer electronics or expenses Service. ~ For more details, sales center (0120-656-282)
『新生活応援キャンペーン』 開催。!! 平成25年12月にお引渡のお客様に限り、先着5名様に50万円分の家具・家電もしくは諸費用サービスを。 ~ 詳しくは販売センター(0120-656-282)
 Other Equipment
その他設備
 Security equipment
防犯設備
 Security equipment
防犯設備
Kindergarten ・ Nursery幼稚園・保育園  150m your home on the back is the kindergarten to YMCA kindergarten.
YMCA幼稚園まで150m ご自宅の裏が幼稚園です。
Park公園  Park There are a number in 290m walking distance to Sakura Pond Nature Park.
さくら池自然公園まで290m 徒歩圏内に公園がいくつもあります。
Location
|