New Homes » Kansai » Hyogo Prefecture » Kobe Higashinada
 
| | Kobe, Hyogo Prefecture Higashi-Nada Ward 兵庫県神戸市東灘区 |
| Hankyu Kobe Line "Mikage" walk 10 minutes 阪急神戸線「御影」歩10分 |
| Long-term high-quality housing, Parking two Allowed, LDK15 tatami mats or more, Floor heating, Good view, Leafy residential area, A quiet residential area! 長期優良住宅、駐車2台可、LDK15畳以上、床暖房、眺望良好、緑豊かな住宅地、閑静な住宅地! |
Features pickup 特徴ピックアップ | | Long-term high-quality housing / Corresponding to the flat-35S / Pre-ground survey / Year Available / Parking two Allowed / Facing south / System kitchen / Bathroom Dryer / Yang per good / All room storage / A quiet residential area / LDK15 tatami mats or more / Japanese-style room / Washbasin with shower / Face-to-face kitchen / Barrier-free / Toilet 2 places / Bathroom 1 tsubo or more / 2-story / South balcony / Double-glazing / Warm water washing toilet seat / Nantei / Underfloor Storage / The window in the bathroom / TV monitor interphone / Leafy residential area / Ventilation good / All living room flooring / Good view / Southwestward / Dish washing dryer / Walk-in closet / City gas / Storeroom / Located on a hill / Floor heating 長期優良住宅 /フラット35Sに対応 /地盤調査済 /年内入居可 /駐車2台可 /南向き /システムキッチン /浴室乾燥機 /陽当り良好 /全居室収納 /閑静な住宅地 /LDK15畳以上 /和室 /シャワー付洗面台 /対面式キッチン /バリアフリー /トイレ2ヶ所 /浴室1坪以上 /2階建 /南面バルコニー /複層ガラス /温水洗浄便座 /南庭 /床下収納 /浴室に窓 /TVモニタ付インターホン /緑豊かな住宅地 /通風良好 /全居室フローリング /眺望良好 /南西向き /食器洗乾燥機 /ウォークインクロゼット /都市ガス /納戸 /高台に立地 /床暖房 | Event information イベント情報 | | Local guide Board (Please be sure to ask in advance) schedule / Every Saturday, Sunday and public holidays time / 10:00 ~ 16:00 completed tours held! The building was completed. Current, Outer groove construction (garden, Parking Lot, It does planting maintenance such as). Long-term high-quality housing, Please check the quality of seismic grade up to 3. Also view from the local, Like can check the day. We look forward to your visit family a matching. 現地案内会(事前に必ずお問い合わせください)日程/毎週土日祝時間/10:00 ~ 16:00完成見学会開催! 建物は完成しました。現在、外溝工事(庭、駐車場、植栽などの整備)を行っております。長期優良住宅、耐震等級最高3の品質をご確認下さい。また現地からの眺望、日当たりなどをご確認できます。ご家族お揃いでのご来場をお待ち申し上げます。 | Price 価格 | | 57,800,000 yen ~ 59,800,000 yen 5780万円 ~ 5980万円 | Floor plan 間取り | | 4LDK ~ 4LDK + S (storeroom) 4LDK ~ 4LDK+S(納戸) | Units sold 販売戸数 | | 2 units 2戸 | Total units 総戸数 | | 4 units 4戸 | Land area 土地面積 | | 142.23 sq m ~ 177.11 sq m (measured) 142.23m2 ~ 177.11m2(実測) | Building area 建物面積 | | 110.96 sq m ~ 107.02 sq m (measured) 110.96m2 ~ 107.02m2(実測) | Completion date 完成時期(築年月) | | Mid-January 2014 2014年1月中旬予定 | Address 住所 | | Kobe, Hyogo Prefecture Higashi-Nada Ward Kamokogahara 1-11-10 兵庫県神戸市東灘区鴨子ケ原1-11-10 | Traffic 交通 | | Hankyu Kobe Line "Mikage" walk 10 minutes JR Tokaido Line "Sumiyoshi" walk 25 minutes Hanshin "Mikage" walk 25 minutes 阪急神戸線「御影」歩10分 JR東海道本線「住吉」歩25分 阪神本線「御影」歩25分
| Contact お問い合せ先 | | Alex Kobe (Ltd.) TEL: 0800-808-7193 [Toll free] mobile phone ・ Also available from PHS Caller ID is not notified Please contact the "saw SUUMO (Sumo)" If it does not lead, If the real estate company アレックス神戸(株)TEL:0800-808-7193【通話料無料】携帯電話・PHSからもご利用いただけます 発信者番号は通知されません 「SUUMO(スーモ)を見た」と問い合わせください つながらない方、不動産会社の方は
| Most price range 最多価格帯 | | 57,800,000 yen 5780万円台 | Building coverage, floor area ratio 建ぺい率・容積率 | | Building coverage: 40%, Volume ratio: 80% 建ぺい率:40%、容積率:80% | Time residents 入居時期 | | January 2014 late schedule 2014年1月下旬予定 | Land of the right form 土地の権利形態 | | Ownership 所有権 | Structure and method of construction 構造・工法 | | Two-story wooden (2 × 4 construction method) 木造2階建て(2×4工法) | Use district 用途地域 | | One low-rise 1種低層 | Land category 地目 | | Residential land 宅地 | Other limitations その他制限事項 | | Residential land development construction regulation area, Height district, Scenic zone 宅地造成工事規制区域、高度地区、風致地区 | Overview and notices その他概要・特記事項 | | Building confirmation number: No. H25-00851, No. H25-00853, 2013 September 3 建築確認番号:第H25-00851、第H25-00853、 平成25年9月3日 | Company profile 会社概要 | | <Mediation> Governor of Hyogo Prefecture (1) No. 011635 Alex Kobe Co. Yubinbango658-0001 Kobe City, Hyogo Prefecture Higashinada Morikita cho 2-3-16-104 <仲介>兵庫県知事(1)第011635号アレックス神戸(株)〒658-0001 兵庫県神戸市東灘区森北町2-3-16-104 |
Rendering (appearance)完成予想図(外観)  (A Building) Rendering
(A号棟)完成予想図
 (A Building) Rendering
(A号棟)完成予想図
Local photos, including front road前面道路含む現地写真  A No. land Local (November 23, 2013) Shooting
A号地 現地(2013年11月23日)撮影
Rendering (appearance)完成予想図(外観)  (C Building) Rendering
(C号棟)完成予想図
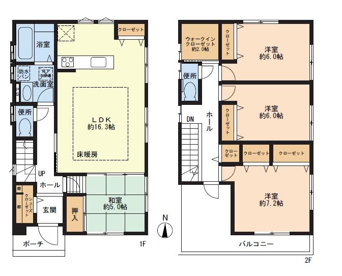
Floor plan間取り図  (A No. land), Price 61,800,000 yen, 4LDK, Land area 142.23 sq m , Building area 110.96 sq m
(A号地)、価格6180万円、4LDK、土地面積142.23m2、建物面積110.96m2
Local appearance photo現地外観写真  C No. land Local (December 3, 2013) Shooting
C号地 現地(2013年12月3日)撮影
Livingリビング  Indoor (12 May 2013) Shooting
室内(2013年12月)撮影
Bathroom浴室  Indoor (12 May 2013) Shooting
室内(2013年12月)撮影
Kitchenキッチン  Indoor (12 May 2013) Shooting
室内(2013年12月)撮影
Entrance玄関  Local (12 May 2013) Shooting
現地(2013年12月)撮影
Receipt収納  Indoor (12 May 2013) Shooting
室内(2013年12月)撮影
Toiletトイレ  Indoor (12 May 2013) Shooting
室内(2013年12月)撮影
 Construction ・ Construction method ・ specification
構造・工法・仕様
 Other Equipment
その他設備
Primary school小学校  1099m to Kobe Municipal Mikage North Elementary School
神戸市立御影北小学校まで1099m
Rendering (introspection)完成予想図(内観)  C No. map surface
C号地図面
Route map路線図  Hankyu Kobe Line Mikage Sta.
阪急神戸線 御影駅下車
Other localその他現地  Fukada pond
深田池
Otherその他  View from A No. place (October 28, 2013) Shooting
A号地からの眺望(2013年10月28日)撮影
Local appearance photo現地外観写真  C No. land Under construction (December 3, 2013) Shooting
C号地 建築中(2013年12月3日)撮影
Other Equipmentその他設備  Emergency trouble support
緊急トラブルサポート
Hospital病院  General Foundation Konan Board Konan 342m to the hospital
一般財団法人甲南会甲南病院まで342m
View photos from the dwelling unit住戸からの眺望写真  View from A Gochi balcony
A号地バルコニーからの眺望
Otherその他  C No. land Western style room
C号地 洋室
 C No. land Japanese-style room
C号地 和室
Location
|