New Homes » Kansai » Hyogo Prefecture » Kobe Kita-ku
 
| | Kobe, Hyogo Prefecture, Kita-ku, 兵庫県神戸市北区 |
| JR Fukuchiyama Line "Shinmita" 20 minutes Jozu Koenmae step 8 minutes by bus JR福知山線「新三田」バス20分上津公園前歩8分 |
| [Land 50 square meters or more] [Year Available] [Parking two Allowed] Direct design ・ Construction ・ Of Land, Infrastructure and construction from the sale of the integrated system house. Next-generation energy-saving of condominiums that ensures plenty of daylight, 31,900,000 yen sale from 【土地50坪以上】【年内入居可】【駐車2台可】直接設計・施工・販売の一貫体制による国土建設の家。たっぷりの採光を確保した次世代省エネの分譲住宅が、3190万円から販売中 |
| ■ Aeon Mall Kobe north and elementary schools, Adjacent to the park Jozu, Happy urban New Town in the child-rearing households. ■ Condominiums 6 Mansion, Turnkey! From 31.9 million yen ■ New Cafe model house appearance! The theme of the Cafe model, Family Cafe. Waiwai dating of the whole family is also included children, Buzz-buzz. It will spread the fun conversation. ■ It provides a residence on the order of sensation in the high-performance 2x4 housing. ■イオンモール神戸北や小学校、上津公園に隣接する、子育て世帯にはうれしい都市型ニュータウン。■分譲住宅 6 邸、即入居可能! 3190万円より■新Cafeモデルハウス登場! 今回の Cafe モデルのテーマは、ファミリーCafe。 家族ぐるみのお付き合いは子供も入ってワイワイ、ガヤガヤ。楽しい会話が広がって行きます。 ■高性能な2x4住宅でオーダー感覚の住まいを提供します。 |
Seller comments 売主コメント | | 221 No. land 221号地 | Local guide map 現地案内図 | | Local guide map 現地案内図 | Features pickup 特徴ピックアップ | | Eco-point target housing / Corresponding to the flat-35S / Airtight high insulated houses / Pre-ground survey / Year Available / Parking two Allowed / Immediate Available / 2 along the line more accessible / Land 50 square meters or more / LDK18 tatami mats or more / See the mountain / Super close / Facing south / System kitchen / Bathroom Dryer / Yang per good / All room storage / Siemens south road / A quiet residential area / Or more before road 6m / Corner lot / Japanese-style room / Shaping land / Mist sauna / garden / Washbasin with shower / Face-to-face kitchen / Wide balcony / 3 face lighting / Barrier-free / Toilet 2 places / Bathroom 1 tsubo or more / 2-story / 2 or more sides balcony / South balcony / Double-glazing / Warm water washing toilet seat / loft / Nantei / Underfloor Storage / The window in the bathroom / Atrium / TV monitor interphone / Leafy residential area / All living room flooring / Wood deck / Good view / IH cooking heater / Dish washing dryer / Walk-in closet / All room 6 tatami mats or more / Water filter / Living stairs / All-electric / City gas / Storeroom / All rooms are two-sided lighting / Maintained sidewalk / In a large town / roof balcony / Flat terrain / Floor heating / Development subdivision in / Movable partition エコポイント対象住宅 /フラット35Sに対応 /高気密高断熱住宅 /地盤調査済 /年内入居可 /駐車2台可 /即入居可 /2沿線以上利用可 /土地50坪以上 /LDK18畳以上 /山が見える /スーパーが近い /南向き /システムキッチン /浴室乾燥機 /陽当り良好 /全居室収納 /南側道路面す /閑静な住宅地 /前道6m以上 /角地 /和室 /整形地 /ミストサウナ /庭 /シャワー付洗面台 /対面式キッチン /ワイドバルコニー /3面採光 /バリアフリー /トイレ2ヶ所 /浴室1坪以上 /2階建 /2面以上バルコニー /南面バルコニー /複層ガラス /温水洗浄便座 /ロフト /南庭 /床下収納 /浴室に窓 /吹抜け /TVモニタ付インターホン /緑豊かな住宅地 /全居室フローリング /ウッドデッキ /眺望良好 /IHクッキングヒーター /食器洗乾燥機 /ウォークインクロゼット /全居室6畳以上 /浄水器 /リビング階段 /オール電化 /都市ガス /納戸 /全室2面採光 /整備された歩道 /大型タウン内 /ルーフバルコニー /平坦地 /床暖房 /開発分譲地内 /可動間仕切り | Event information イベント情報 | | Local tour dates / During the public time / 10:00 ~ 18:00 ■ In Kozudai Mita outlets close, We sell high-airtight high-insulated houses from 31.9 million yen. Which one the same house is not, Please check the planning power of the P-con L.D.Labo Come on local. 現地見学会日程/公開中時間/10:00 ~ 18:00■三田アウトレットが近い上津台で、高気密高断熱の住宅を3190万円から販売しております。どれ一つ同じ住宅は無い、P-con L.D.Laboのプランニング力を是非現地でご確認ください。 | Property name 物件名 | | P-CON Kozudai 2-chome "TEAM CHATTY STYLE " P-CON 上津台2丁目 「TEAM CHATTY STYLE」 | Price 価格 | | 31,900,000 yen ~ 34,800,000 yen 3190万円 ~ 3480万円 | Floor plan 間取り | | 3LDK + S (storeroom) ・ 4LDK + S (storeroom) 3LDK+S(納戸)・4LDK+S(納戸) | Units sold 販売戸数 | | 6 units 6戸 | Total units 総戸数 | | 451 units 451戸 | Land area 土地面積 | | 174.12 sq m ~ 191.78 sq m (52.67 tsubo ~ 58.01 square meters) 174.12m2 ~ 191.78m2(52.67坪 ~ 58.01坪) | Building area 建物面積 | | 110.3 sq m ~ 115.1 sq m (33.36 tsubo ~ 34.81 square meters) 110.3m2 ~ 115.1m2(33.36坪 ~ 34.81坪) | Driveway burden-road 私道負担・道路 | | Road: 6m ~ 12m width asphalt paving, Driveway burden: No 道路:6m ~ 12m幅アスファルト舗装、私道負担:無 | Completion date 完成時期(築年月) | | September 2012 2012年9月 | Address 住所 | | Kobe City, Hyogo Prefecture, Kita-ku, Kozudai 2-16-486 兵庫県神戸市北区上津台2-16-486他(地番) | Traffic 交通 | | JR Fukuchiyama Line "Shinmita" 20 minutes Jozu Koenmae step 8 minutes by bus Kobe Electric Railway Mita "God railway field" bus 7 minutes Kozudai 1-chome NishiAyumi 8 minutes JR Fukuchiyama Line "Mita" 15 minutes Aeon Mall Kobe KitaAyumi 4 minutes by bus JR福知山線「新三田」バス20分上津公園前歩8分 神戸電鉄三田線「神鉄道場」バス7分上津台1丁目西歩8分 JR福知山線「三田」バス15分イオンモール神戸北歩4分
| Related links 関連リンク | | [Related Sites of this company] 【この会社の関連サイト】 | Contact お問い合せ先 | | Land, construction Kozudai Information Center TEL: 078-986-0772 Please inquire as "saw SUUMO (Sumo)" 国土建設上津台インフォメーションセンターTEL:078-986-0772「SUUMO(スーモ)を見た」と問い合わせください | Sale schedule 販売スケジュール | | ■ New Cafe model house Appearance theme of the Cafe model, Family Cafe. Waiwai dating of the whole family is also included children, Buzz-buzz. It will spread the fun conversation. ■ Condominiums 6 House All mansion possible tour! First-come-first-served basis application accepted in the reception location / Kozudai Information Center Hours / 10 am ~ 5:00 pm ※ At the time of application is, Seal and the application money 100,000 yen (appropriated to the part of the deposit), Do you have a thing to prove the previous year worth of income (withholding, etc.). ■新Cafe モデルハウス 登場今回の Cafe モデルのテーマは、ファミリーCafe。 家族ぐるみのお付き合いは子供も入ってワイワイ、ガヤガヤ。楽しい会話が広がって行きます。■分譲住宅6邸 全邸見学可能! 先着順申込受付中受付場所/上津台インフォメーションセンター受付時間/午前10時 ~ 午後5時※申込の際には、印鑑と申込証拠金10万円(手付金の一部に充当)、前年分の収入を証明するもの(源泉徴収票など)をお持ち下さい。 | Most price range 最多価格帯 | | 33 million yen ・ 32 million yen (each 2 units) 3300万円台・3200万円台(各2戸) | Building coverage, floor area ratio 建ぺい率・容積率 | | Building coverage: 40%, Volume ratio: 80% 建ぺい率:40%、容積率:80% | Time residents 入居時期 | | Immediate available 即入居可 | Land of the right form 土地の権利形態 | | Ownership 所有権 | Structure and method of construction 構造・工法 | | Wooden 2-story (2 × 4 construction method) 木造2階建(2×4工法) | Construction 施工 | | Construction company: Land, Infrastructure and Construction Co., Ltd. 施工会社:国土建設(株) | Use district 用途地域 | | One low-rise 1種低層 | Land category 地目 | | Residential land 宅地 | Other limitations その他制限事項 | | Residential land development construction regulation area, Height ceiling Yes 宅地造成工事規制区域、高さ最高限度有 | Overview and notices その他概要・特記事項 | | Building confirmation number: Building Products Kobe No. 24016 (221 No. land), Selling door (compartment) Number: 1 units, Completion date, October 2012 (1 units), April 2013 (2 units), August 2013 (3 units), Total units Note: Among the company equity 67 units, Development total area: 120175.71 sq m , Car space (two all households minute), Kansai Electric Power Co., Inc., Public Water Supply, This sewage, City gas, Kobe Research Park Kozudai overview / Development total area: about 173ha, Plan number of houses: about 3300 units, Planned population: about 12,000 建築確認番号:住建神戸第24016号(221号地)、販売戸(区画)数:1戸、完成時期:、2012年10月(1戸)、2013年4月(2戸)、2013年8月(3戸)、総戸数補足:うち同社持分67戸、開発総面積:120175.71m2、カースペース(全戸2台分)、関西電力、公営水道、本下水、都市ガス、神戸リサーチパーク上津台全体概要/開発総面積:約173ha、計画戸数:約3300戸、計画人口:約12000人 | Company profile 会社概要 | | <Employer ・ Seller> Minister of Land, Infrastructure and Transport (11) No. 2093 Minister of Land, Infrastructure and Transport (JP -23) No. 6301 Osaka governor registration (j) No. 4304 (one company) Japan two-by-four construction Association of Land Construction Co., Ltd. Yubinbango534-0024 Osaka-shi, Osaka Miyakojima-ku Higashinoda cho 2-9-7 <事業主・売主>国土交通大臣(11)第2093号 国土交通大臣(特-23)第6301号 大阪府知事登録(ヌ)第4304号(一社)日本ツーバイフォー建築協会会員国土建設株式会社〒534-0024 大阪府大阪市都島区東野田町2-9-7 |
Local photos, including front road前面道路含む現地写真  Pounding ・ Exciting. Time also will propose a housing that can live and enjoy without getting tired until.
どきどき・わくわく。いつまでも飽きることなく楽しんで住むことのできる住宅をご提案いたします。
Local appearance photo現地外観写真 ![Local appearance photo. In the blue sky, such as exit, Ya calm residential to set up To stout, Playful dwelling such as, Which one the same thing with no P-con housing. Come, please visit. [145 No. land]](/images/hyogo/kobeshikita/982ab80245.jpg) In the blue sky, such as exit, Ya calm residential to set up To stout, Playful dwelling such as, Which one the same thing with no P-con housing. Come, please visit. [145 No. land]
抜けるような青空に、どっしりと構える落ち着きある住宅や、遊び心あふれる住まいなど、どれ一つ同じものは無いP-conの住宅。是非ご見学ください。[145号地]
Model house photoモデルハウス写真 ![Model house photo. 243 Gochi that can two parking of margin, There is a large garden on the south side, It brings the warmth of natural light in the living-dining. [243 No. land]](/images/hyogo/kobeshikita/982ab80271.jpg) 243 Gochi that can two parking of margin, There is a large garden on the south side, It brings the warmth of natural light in the living-dining. [243 No. land]
余裕の2台駐車ができる243号地は、南面に広い庭があり、リビングダイニングに暖かな自然光をもたらしてくれます。[243号地]
Local appearance photo現地外観写真 ![Local appearance photo. It is wide open to the south, It was planned to residential land of 210 sq m in this house, You can enjoy the rich environment as a private space. [232 No. land]](/images/hyogo/kobeshikita/982ab80222.jpg) It is wide open to the south, It was planned to residential land of 210 sq m in this house, You can enjoy the rich environment as a private space. [232 No. land]
南に大きく開いている、210m2の宅地に計画されたこの住宅では、その恵まれた環境をプライベート空間として満喫することができます。[232号地]
![Local appearance photo. living ・ dining ・ kitchen ・ Western-style 2 room is bright house facing south. By increasing from the front road, We consider the privacy ensure. [No. 138 land]](/images/hyogo/kobeshikita/982ab80241.jpg) living ・ dining ・ kitchen ・ Western-style 2 room is bright house facing south. By increasing from the front road, We consider the privacy ensure. [No. 138 land]
リビング・ダイニング・キッチン・洋室2部屋が南に面した明るい住まいです。前面道路から高くして、プライバシー確保に配慮しています。[138号地]
![Local appearance photo. So that the life of the first floor is to enhance, I plan to have a clear. In preparation for the time of returning home, The entrance next to you will find a shoe cloak and hand washing. [No. 140 land]](/images/hyogo/kobeshikita/982ab80257.jpg) So that the life of the first floor is to enhance, I plan to have a clear. In preparation for the time of returning home, The entrance next to you will find a shoe cloak and hand washing. [No. 140 land]
1 階での生活が充実するよう、ゆとりを持たせて計画しました。帰宅時に備えて、玄関横にはシューズクロークや手洗いを設けています。 [140号地]
Model house photoモデルハウス写真  The theme of the Cafe model, Family Cafe. Waiwai dating of the whole family is also included children, Buzz-buzz. It will spread the fun conversation.
今回の Cafe モデルのテーマは、ファミリーCafe。 家族ぐるみのお付き合いは子供も入ってワイワイ、ガヤガヤ。楽しい会話が広がって行きます。
Livingリビング ![Living. Around the living room, Scene of life to the dining and work space will continue to be led. [243 No. land model house] (December 2013) Shooting](/images/hyogo/kobeshikita/982ab80267.jpg) Around the living room, Scene of life to the dining and work space will continue to be led. [243 No. land model house] (December 2013) Shooting
リビングを中心に、ダイニングやワークスペースへと生活のシーンがつながっていきます。 [243号地モデルハウス](2013年12月)撮影
Kitchenキッチン ![Kitchen. While joined the topic of the dining and living room, Preparation of tea and eating in the kitchen. [243 No. land model house] (December 2013) Shooting](/images/hyogo/kobeshikita/982ab80268.jpg) While joined the topic of the dining and living room, Preparation of tea and eating in the kitchen. [243 No. land model house] (December 2013) Shooting
ダイニングやリビングの話題に加わりながら、キッチンでお茶や食事の準備。 [243号地モデルハウス](2013年12月)撮影
Non-living roomリビング以外の居室 ![Non-living room. Model in the, Workspace of mom. You can use it to, such as den or playroom. [243 No. land model house] (December 2013) Shooting](/images/hyogo/kobeshikita/982ab80269.jpg) Model in the, Workspace of mom. You can use it to, such as den or playroom. [243 No. land model house] (December 2013) Shooting
モデルでは、ママのワークスペース。書斎やプレイルームなどにもお使いいただけます。 [243号地モデルハウス](2013年12月)撮影
Kitchenキッチン ![Kitchen. It was established directly out possible back door from the garage. We are planning a smooth flow line to the water around from the kitchen. [243 No. land model house] (December 2013) Shooting](/images/hyogo/kobeshikita/982ab80270.jpg) It was established directly out possible back door from the garage. We are planning a smooth flow line to the water around from the kitchen. [243 No. land model house] (December 2013) Shooting
ガレージから直接出入り可能な勝手口を設置しました。キッチンから水廻りへとスムーズな動線を計画しています。 [243号地モデルハウス](2013年12月)撮影
Construction ・ Construction method ・ specification構造・工法・仕様  Widely forces from the building to the ground, Tell dispersed
建物からの力を地盤に広く、分散して伝える
 Improved breathability to strengthen the floor
床を強化し通気性も向上
 Excellent foundation to gently durability to the environment
環境に優しく耐久性に優れた土台
 Raise the floor of breathability
床下の通気性を高める
Entrance玄関  The place went up the entrance, Installed hand-washing. Without the customer enters the family of the washroom, You can wash your hands.
玄関を上がったところに、手洗いを設置。家族の洗面所へお客様が入ることなく、手を洗うことができます。
Local photos, including front road前面道路含む現地写真  139 ・ No. 140 land of streets (October 2013) Shooting
139・140号地の街並み(2013年10月)撮影
Kitchenキッチン  The wide-open LDK south, Light from the atrium was also planning to come firmly down.
南に大きく開いたLDKには、吹抜けからの光もしっかり落ちてくるように計画しました。
Bathroom浴室 ![Bathroom. [243 No. land model house] (December 2013) Shooting](/images/hyogo/kobeshikita/982ab80274.jpg) [243 No. land model house] (December 2013) Shooting
[243号地モデルハウス](2013年12月)撮影
Primary school小学校  Because from the 180m field to Kobe Municipal Nagao Elementary School proximity of a 3-minute walk, Small children can also happy to commute likely
神戸市立長尾小学校まで180m 現地から徒歩3分の近さなので、小さな子どももラクラク通学ができそう
Hospital病院  7100m until Saiseikai Hyogo Prefecture hospital (about 15 minutes by car)
済生会兵庫県病院(車で約15分)まで7100m
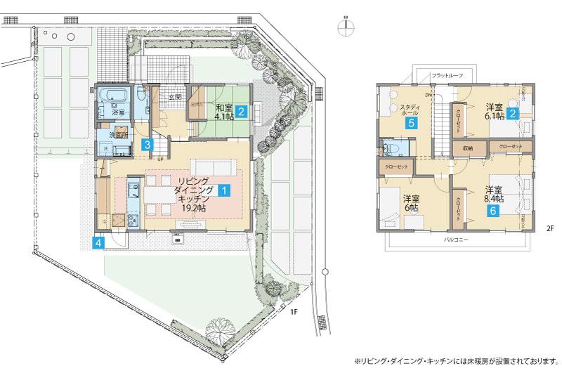
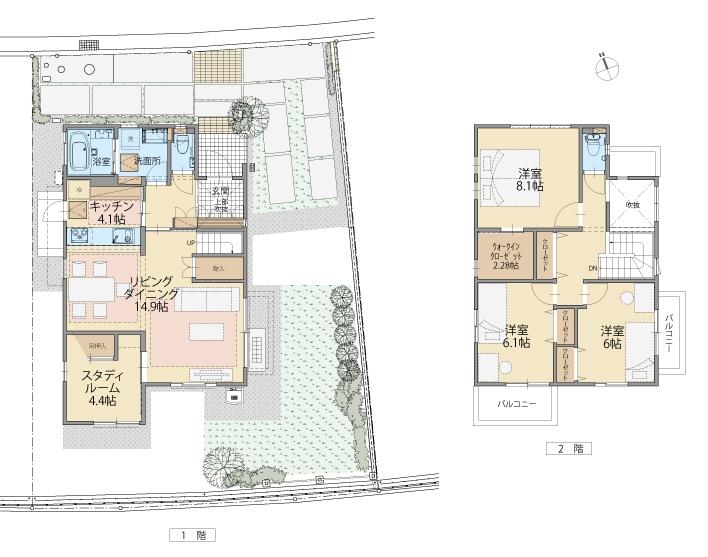
Floor plan間取り図  (221 No. land), Price 32,800,000 yen, 4LDK, Land area 191.78 sq m , Building area 112.62 sq m
(221号地)、価格3280万円、4LDK、土地面積191.78m2、建物面積112.62m2
Otherその他  House building of Pikon of design and construction in-house. Also to deliver the thought in everyone, Of course, it is local staff of its own. As well as the attention to detail to the house building, We support everyone. Please check all means in the field. «Sales Department»
自社で設計施工のピーコンの住まいづくり。その思いを皆様にお届けするのも、もちろん自社の現地スタッフです。住まいづくりへの細やかな配慮と同様に、皆様をサポート致します。是非現地でご確認下さい。≪営業部≫
 House building of Pikon, which proceeds in the slogan "Let's make a house like their own will want to live.". Taking advantage of superior tenderness to the structure system and the wooden house life that 2x4 construction method has designed Building 1 1 buildings cherish. «Design section»
「自分たちが住みたくなるような家を作ろう」というかけ声で進められるピーコンの住まい造り。2x4工法という優れた構造システムと木造住宅の生活への優しさをを生かして1棟1棟大切に設計しています。≪設計部≫
 By performing the field control and in-house inspection directly in-house, It is the construction work that satisfies the demand for high quality and economic efficiency. Also after delivery, In cooperation with the responsible group companies have to deliver the peace of mind in the after-sales and inspection of up to 20 years. «Construction section»
現場管理と社内検査を直接自社で行うことで、高品質と経済性を両立させた建築工事を行っています。また引き渡し後は、担当のグループ会社と連携し20年後までのアフターや点検で安心をお届けしています。≪工事部≫
Floor plan間取り図  (243 No. land), Price 34,800,000 yen, 4LDK+S, Land area 183.58 sq m , Building area 110.3 sq m
(243号地)、価格3480万円、4LDK+S、土地面積183.58m2、建物面積110.3m2
Shopping centreショッピングセンター  Located in the proximity of a 4-minute walk from the 280m field to Aeon Mall Kobe north. In the nucleus of the Jusco, which is open from 9 am until 10 pm, In addition to specialty shops and eateries, Is also aligned ATM of the bank
イオンモール神戸北まで280m 現地から徒歩4分の近さにある。朝9時から夜10時まで営業しているジャスコを核に、専門店や飲食店のほか、銀行のATMも揃っている
 Kobe Sanda Premium ・ 5-minute walk from the 380m field to outlet. Buy brand-name goods in deals to choose carefully. When a friend came to play in the house, Than you think envy and guide here ...
神戸三田プレミアム・アウトレットまで380m 現地からは徒歩5分。じっくりと選んでブランド品をお得に購入。友達が家に遊びに来た時に、ここを案内するとうらやましく思うのでは…
Cooling and heating ・ Air conditioning冷暖房・空調設備  The ventilation system that uses a duct, Ensure a stable ventilation throughout the building. Once in 2 hours, Whole will be replaced by the fresh air house.
ダクトを使った換気システムにより、建物全体に安定した換気を確保。2時間に1回、家全体が新鮮な空気に入れ替わります。
Power generation ・ Hot water equipment発電・温水設備  Smarter well power-saving measures
賢く上手に節電対策
Security equipment防犯設備  Outdoor side is aluminum, Indoor side adopts a hybrid sash using a resin. Weatherability ・ Excellent aluminum in water-tightness in outdoor, High-performance thermal insulation sash thermal conductivity using the condensation difficult resin low in the room, In high-performance glass that combines Low-E function to pair glass of the air layer 12mm, It has extended thermal insulation performance of the building.
室外側はアルミ、室内側は樹脂を使用したハイブリッドサッシを採用。耐候性・水密性に優れたアルミを屋外に、熱伝導率が低く結露しにくい樹脂を室内に使用した高性能断熱サッシに、空気層12mm のペアガラスにLow-E 機能を併せ持つ高機能なガラスで、建物の断熱性能を高めています。
Local guide map現地案内図  Local guide map (for more information, such as a sales center compartment ・ Please refer to the floor plan page)
現地案内図(販売センター等の詳細は区画・間取りページをご参照下さい)
Other Equipmentその他設備  Easy to clean with borderless toilet. Also standard adopted slim tankless toilet looks.
ふちなしトイレでお手入れ簡単。見た目もスリムなタンクレストイレを標準採用。
 Numerical sought criteria 5cm2 / m2 is below, but, In Pikon residential 0.5 ~ 1.0cm2 / m2 and, Ensure high airtightness. It enhances the cooling and heating efficiency. ※ C value (corresponding gap area), Floor area of the building (sq m) per, At what number representing whether there is a gap (c sq m) of, Numeric has excellent airtightness The smaller.
基準で求められる数値は5cm2/m2以下ですが、ピーコンの住宅では0.5 ~ 1.0cm2/m2と、高い気密性を確保。冷暖房効率を高めます。 ※C値(相当隙間面積)とは、建物の床面積(m2)当たり、どの程度の隙間(cm2)があるかを表す数値で、数値が小さいほど気密性に優れています。
 In the next-generation energy-saving standards, Q value indicating the overall thermal insulation performance building: There is indication that the (heat loss coefficient smaller is better). Of IV area which is located in the Kansai criteria (2.7) less than the Q-value = 1.98W / m2K( ※ ) And it has secured the excellent thermal insulation properties. ( ※ ) Is a calculated value in our typical plan. Depending on your plan differs from figures.
次世代省エネ基準では、建物全体の断熱性能を示すQ値(熱損失係数:小さいほど優れている)という目安があります。関西の位置するIV地域の基準(2.7)より小さいQ値=1.98W/m2K(※)と優れた断熱性を確保しています。(※)弊社の代表的なプランでの計算値です。お客様のプランによっては数値は異なります。
The entire compartment Figure全体区画図  The entire section view and selling compartment detailed view.
全体区画図及び販売区画詳細図。
Primary school小学校  2200m to Kobe Municipal Nagao kindergarten (about 5 minutes by car)
神戸市立長尾幼稚園(車で約5分)まで2200m
Other Environmental Photoその他環境写真  Sugo 200m to the park (in the town)
菅生公園(タウン内)まで200m
 230m until Jozu park
上津公園まで230m
 3000m to God railway field station (about 7 minutes by car)
神鉄道場駅(車で約7分)まで3000m
Government office役所  2400m to the north ward office north God business trip Nagao contact office (about 5 minutes by car)
北区役所北神出張長尾連絡所(車で約5分)まで2400m
Location
|