New Homes » Kansai » Hyogo Prefecture » Kobe Kita-ku


Kobe, Hyogo Prefecture, Kita-ku,
Shintetsu Arima Line "Yamanomachi" walk 25 minutes
◆ In a quiet residential area, Do not you get a comfortable living space in your favorite floor plan!
Features pickup
Long-term high-quality housing / Vibration Control ・ Seismic isolation ・ Earthquake resistant / Land 50 square meters or more / LDK18 tatami mats or more / Summer resort / System kitchen / Yang per good / All room storage / A quiet residential area / Or more before road 6m / Shaping land / Garden more than 10 square meters / 2-story / Underfloor Storage / Urban neighborhood / Living stairs
Price
33,800,000 yen
Floor plan
4LDK + S (storeroom)
Units sold
1 units
Total units
1 units
Land area
229.04 sq m (registration)
Building area
109.71 sq m
Driveway burden-road
Nothing, North 6m width (contact the road width 14m)
Completion date
7 months after the contract
Address
Kobe City, Hyogo Prefecture, Kita-ku, Tsukushigaoka 9
Traffic
Shintetsu Arima Line "Yamanomachi" walk 25 minutes
Related links
[Related Sites of this company]
Person in charge
Rep Nishiguchi
Contact
Kobe Urban Development (Corporation) TEL: 0120-143100 [Toll free] Please contact the "saw SUUMO (Sumo)"
Building coverage, floor area ratio
40% ・ 80%
Time residents
7 months after the contract
Land of the right form
Ownership
Structure and method of construction
Wooden 2-story (2 × 4 construction method)
Construction
Kobe City Development Co., Ltd.
Use district
One low-rise
Overview and notices
Contact: Nishiguchi, Facilities: Public Water Supply, This sewage, City gas, Building confirmation number: No. Trust 13-0566
Company profile
<Building seller> Governor of Hyogo Prefecture (1) the first 011,420 No. Kobe Urban Development Co., Ltd. Yubinbango650-0044, Chuo-ku Kobe, Hyogo Prefecture Higashikawasaki cho 1-3-3 Kobe Harborland Center Building 20th floor


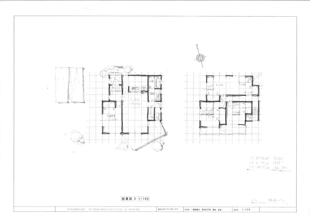
Floor plan

Floor plan. 33,800,000 yen, 4LDK + S (storeroom), Land area 229.04 sq m , Building area 109.71 sq m reference floor plan
33,800,000 yen, 4LDK + S (storeroom), Land area 229.04 sq m , Building area 109.71 sq m reference floor plan

Living

Living. Our construction cases
Our construction cases

Living. Our construction cases
Our construction cases

Living. Our construction cases
Our construction cases

Other introspection

Other introspection. Japanese-style room ・ Our construction cases
Japanese-style room ・ Our construction cases

Other introspection. Our construction cases
Our construction cases

Living

Living. Our construction cases
Our construction cases

Other introspection

Other introspection. Our construction cases
Our construction cases

Other introspection. Our construction cases
Our construction cases



Location