New Homes » Kansai » Hyogo Prefecture » Kobe Kita-ku
 
| | Kobe, Hyogo Prefecture, Kita-ku, 兵庫県神戸市北区 |
| Kobe Electric Railway Mita "Okaba" walk 6 minutes 神戸電鉄三田線「岡場」歩6分 |
| Also remaining just three compartment quickly out of the 6-minute walk of the good location all 10 compartments than okaba station that commercial facilities are substantial. 商業施設が充実している岡場駅より徒歩6分の好立地全10区画のうち早くも残りわずか3区画です。 |
| ■ No. 5 place 24,800,000 yen ・ No. 10 place 23,300,000 yen is with a solar power generation system. ■ Okaba The Station Daiei ・ Cope ・ Administrative agency ・ Various clinics there is very convenient. ■ 11 end of the month your conclusion of a contract customers in air conditioning two or LED lighting of up to (8 places) gift ■5号地2480万円・10号地2330万円は太陽光発電システム付きです。■岡場駅にはダイエー・コープ・行政機関・各種診療所があり大変便利です。■11月末までにご成約のお客様にエアコン2台もしくはLED照明(8か所)をプレゼント |
Features pickup 特徴ピックアップ | | Corresponding to the flat-35S / Parking two Allowed / It is close to golf course / Super close / System kitchen / Bathroom Dryer / All room storage / A quiet residential area / LDK15 tatami mats or more / Around traffic fewer / Japanese-style room / garden / Washbasin with shower / Barrier-free / Toilet 2 places / Bathroom 1 tsubo or more / 2-story / Double-glazing / Warm water washing toilet seat / Underfloor Storage / The window in the bathroom / TV monitor interphone / Leafy residential area / Ventilation good / All room 6 tatami mats or more / Water filter / City gas / All rooms are two-sided lighting / Development subdivision in フラット35Sに対応 /駐車2台可 /ゴルフ場が近い /スーパーが近い /システムキッチン /浴室乾燥機 /全居室収納 /閑静な住宅地 /LDK15畳以上 /周辺交通量少なめ /和室 /庭 /シャワー付洗面台 /バリアフリー /トイレ2ヶ所 /浴室1坪以上 /2階建 /複層ガラス /温水洗浄便座 /床下収納 /浴室に窓 /TVモニタ付インターホン /緑豊かな住宅地 /通風良好 /全居室6畳以上 /浄水器 /都市ガス /全室2面採光 /開発分譲地内 | Price 価格 | | 21,800,000 yen ~ 24,800,000 yen 2180万円 ~ 2480万円 | Floor plan 間取り | | 4LDK 4LDK | Units sold 販売戸数 | | 4 units 4戸 | Total units 総戸数 | | 10 units 10戸 | Land area 土地面積 | | 148.38 sq m ~ 153.79 sq m (44.88 tsubo ~ 46.52 tsubo) (Registration) 148.38m2 ~ 153.79m2(44.88坪 ~ 46.52坪)(登記) | Building area 建物面積 | | 93.96 sq m ~ 95.77 sq m (28.42 tsubo ~ 28.97 tsubo) (measured) 93.96m2 ~ 95.77m2(28.42坪 ~ 28.97坪)(実測) | Completion date 完成時期(築年月) | | 2013 late December 2013年12月下旬 | Address 住所 | | Kobe City, Hyogo Prefecture, Kita-ku, Arinochoarino 兵庫県神戸市北区有野町有野 | Traffic 交通 | | Kobe Electric Railway Mita "Okaba" walk 6 minutes Kobe Electric Railway Mita "Taoji" walk 27 minutes 神戸電鉄三田線「岡場」歩6分 神戸電鉄三田線「田尾寺」歩27分
| Related links 関連リンク | | [Related Sites of this company] 【この会社の関連サイト】 | Contact お問い合せ先 | | (Ltd.) Cordial Home TEL: 0800-805-3843 [Toll free] mobile phone ・ Also available from PHS Caller ID is not notified Please contact the "saw SUUMO (Sumo)" If it does not lead, If the real estate company (株)コーディアルホームTEL:0800-805-3843【通話料無料】携帯電話・PHSからもご利用いただけます 発信者番号は通知されません 「SUUMO(スーモ)を見た」と問い合わせください つながらない方、不動産会社の方は
| Time residents 入居時期 | | Consultation 相談 | Land of the right form 土地の権利形態 | | Ownership 所有権 | Structure and method of construction 構造・工法 | | Wooden 2-story (framing method) 木造2階建(軸組工法) | Use district 用途地域 | | One low-rise 1種低層 | Land category 地目 | | Residential land 宅地 | Overview and notices その他概要・特記事項 | | Building confirmation number: Building Products Kobe No. 25121 建築確認番号:住建神戸第25121号 | Company profile 会社概要 | | <Mediation> Governor of Hyogo Prefecture (9) No. 300043 (Ltd.) Cordial Home Yubinbango669-1512 Hyogo Prefecture Sanda higher 1-10-23 <仲介>兵庫県知事(9)第300043号(株)コーディアルホーム〒669-1512 兵庫県三田市高次1-10-23 |
Same specifications photos (appearance)同仕様写真(外観)  Same specifications construction cases
同仕様施工例
Local photos, including front road前面道路含む現地写真  Local (11 May 2013) Shooting
現地(2013年11月)撮影
Same specifications photo (kitchen)同仕様写真(キッチン)  Same specifications. Artificial marble top with a system Kitchen. With water purifier integrated faucet.
同仕様。人工大理石トップ付きシステムキッチン。浄水器一体型水栓付き。
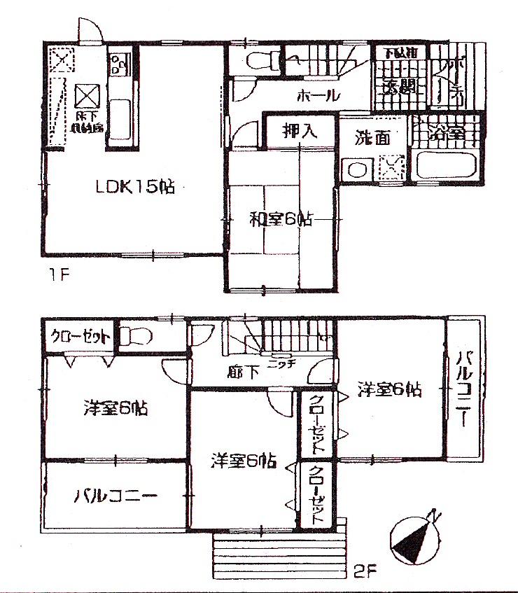
Floor plan間取り図  (No. 10 locations), Price 23,300,000 yen, 4LDK, Land area 151.8 sq m , Building area 93.96 sq m
(10号地)、価格2330万円、4LDK、土地面積151.8m2、建物面積93.96m2
Same specifications photo (bathroom)同仕様写真(浴室)  Same specifications. A heated dryer.
同仕様。暖房乾燥機付き。
Wash basin, toilet洗面台・洗面所  Bathroom Vanity.
洗髪洗面化粧台。
 Toilet
トイレ
Supermarketスーパー  737m to Daiei Fujiwara Taiten
ダイエー藤原台店まで737m
The entire compartment Figure全体区画図  Of the development subdivision all 10 sections of the okaba station 6 minutes walk, 6 compartment is a conclusion of a contract already.
岡場駅徒歩6分の開発分譲地全10区画のうち、6区画成約済みです。
Floor plan間取り図  (No. 1 point), Price 23.8 million yen, 4LDK, Land area 148.38 sq m , Building area 95.58 sq m
(1号地)、価格2380万円、4LDK、土地面積148.38m2、建物面積95.58m2
Location
|