New Homes » Kansai » Hyogo Prefecture » Nishi-ku, Kobe


Kobe City, Hyogo Prefecture, Nishi-ku,
Subway Seishin ・ Yamanote Line "west Jinnan" walk 12 minutes
Property name
PanaHome ・ City West Jinnan (ready-built)
Price
48,900,000 yen ~ 59,300,000 yen
Floor plan
4LDK ~ 5LDK
Units sold
20 units
Total units
308 units
Land area
170.24 sq m ~ 194.58 sq m
Building area
111.62 sq m ~ 135 sq m
Completion date
September 2013
Address
Kobe City, Hyogo Prefecture, Nishi-ku, Ibuki Taipei-cho, 4-1 at number 1
Traffic
Subway Seishin ・ Yamanote Line "west Jinnan" walk 12 minutes
Related links
[Related Sites of this company]
Contact
PanaHome Co., Ltd. Kobe branch office TEL: 078-997-4874 Please inquire as "saw SUUMO (Sumo)"
Event information
Open House Schedule / Now open
Most price range
53 million yen (4 units)
Building coverage, floor area ratio
40% / 80%
Time residents
Immediate available
Land of the right form
Ownership
Structure and method of construction
Light-gauge steel
Construction
PanaHome Co., Ltd.
Use district
One low-rise
Land category
Residential land
Overview and notices
Building confirmation number: H25 confirmation Ken'nishi Review soldiers No. 00263 (2013 May 21 date) Other, Kansai Electric Power Co., Inc. Osaka Gas Co., Ltd. Kobe water supply and sewerage systems
Company profile
[Advertiser] <Seller> Minister of Land, Infrastructure and Transport (13) No. 000982 (one company) Real Estate Association (Corporation) metropolitan area real estate Fair Trade Council member PanaHome Co., Ltd. Kobe branch Yubinbango650-0034, Chuo-ku Kobe, Hyogo Prefecture Kyomachi 69 Sannomiya Dai-ichi Life Building [Seller] PanaHome Co., Ltd. [Sale] PanaHome Corporation (seller)


Yet 1 House 1 House different look, Forming a beautiful cityscape with a sense of unity. Realize the living there is a large garden, which is also provided with a room in the interval between the neighboring house (already sale district-ku, Tokyo)
Yet 1 House 1 House different look, Forming a beautiful cityscape with a sense of unity. Realize the living there is a large garden, which is also provided with a room in the interval between the neighboring house (already sale district-ku, Tokyo)

Walking on the adjacent breath Green Road Train Station. Lush greenery of the Green Road has us decorate the Town (pre-sale district-ku, Tokyo)
Walking on the adjacent breath Green Road Train Station. Lush greenery of the Green Road has us decorate the Town (pre-sale district-ku, Tokyo)

Directed the spread wall of white-friendly pale color of the flooring to the eye, Carefree space of the former, such as go on to the outside of the window, Green, big garden. There is a wash room and bathroom to the kitchen side, Smooth likely also increase housework efficiency by the flow line
Directed the spread wall of white-friendly pale color of the flooring to the eye, Carefree space of the former, such as go on to the outside of the window, Green, big garden. There is a wash room and bathroom to the kitchen side, Smooth likely also increase housework efficiency by the flow line

Equipped with solar power, Model house on the wall, which was adopted "Kira Tech tile exterior wall.". Located in the corner lot of independence and sense of openness is enhanced, Further sense of openness has increased by a wide frontage and open the outer structure
Equipped with solar power, Model house on the wall, which was adopted "Kira Tech tile exterior wall.". Located in the corner lot of independence and sense of openness is enhanced, Further sense of openness has increased by a wide frontage and open the outer structure

Since the site is wide, Parking spaces to ensure the 2 car, Possible to realize a life where there is still a big garden. Gardening and home garden also is enjoyed to the full extent
Since the site is wide, Parking spaces to ensure the 2 car, Possible to realize a life where there is still a big garden. Gardening and home garden also is enjoyed to the full extent

The easy-to-use plan until the Japanese-style room as a large space, Also brings the room at the time also increased openness visitor. I am happy to enjoy the green of the garden, which spread to the outside of the window while cooking in the kitchen
The easy-to-use plan until the Japanese-style room as a large space, Also brings the room at the time also increased openness visitor. I am happy to enjoy the green of the garden, which spread to the outside of the window while cooking in the kitchen

Family gather Living, Daylighting ・ Residence of PanaHome that fulfilled the ventilation of the height and leisurely relax breadth. The kitchen is full open face-to-face and the Island, such as, Family or cooking with everyone, It has been proposed in the easy shape serving. Popular Nanoha to Mothers, Ya sure easy living stairs coming home of the family, Basin while cooking ・ Goodness of bathing to have watched over the state of the child easy to water around the flow line such as. of course, Also it has been evaluated that the housework efficiency is UP. Also, You can change the use in accordance with the children of growth Ya "look-ahead type of Western-style", Large walk-in closet, And securing a sufficient storage space such as a closet, Variegated also clean effectively use devise a residential space. Including the model house, All finished already dwelling unit is possible preview. Let's experience the real thing in the eyes actually live.
Family gather Living, Daylighting ・ Residence of PanaHome that fulfilled the ventilation of the height and leisurely relax breadth. The kitchen is full open face-to-face and the Island, such as, Family or cooking with everyone, It has been proposed in the easy shape serving. Popular Nanoha to Mothers, Ya sure easy living stairs coming home of the family, Basin while cooking ・ Goodness of bathing to have watched over the state of the child easy to water around the flow line such as. of course, Also it has been evaluated that the housework efficiency is UP. Also, You can change the use in accordance with the children of growth Ya "look-ahead type of Western-style", Large walk-in closet, And securing a sufficient storage space such as a closet, Variegated also clean effectively use devise a residential space. Including the model house, All finished already dwelling unit is possible preview. Let's experience the real thing in the eyes actually live.

Park in the town is spacious natural rich. Because there is a good outlook, Also reach easily children eyes of residents is also likely to play with confidence
Park in the town is spacious natural rich. Because there is a good outlook, Also reach easily children eyes of residents is also likely to play with confidence

Ibuki is a 5-minute walk to walk the residential area to the east elementary school. I can easily commute even at this distance if the lower grades
Ibuki is a 5-minute walk to walk the residential area to the east elementary school. I can easily commute even at this distance if the lower grades

Spacious spread Rotary west Jinnan Station. Commercial facilities are enriched in front of the station
Spacious spread Rotary west Jinnan Station. Commercial facilities are enriched in front of the station

View photos from the dwelling unit

View photos from the dwelling unit. View from local. Please come to see this skyline.
View from local. Please come to see this skyline.

Other local

Other local. Subdivision main image
Subdivision main image

Living

Living. Room (May 2013) Shooting
Room (May 2013) Shooting

Other introspection

Other introspection. 2 of 2 between the continued Kaiyoshitsu Indoor (July 2013) Shooting
2 of 2 between the continued Kaiyoshitsu Indoor (July 2013) Shooting

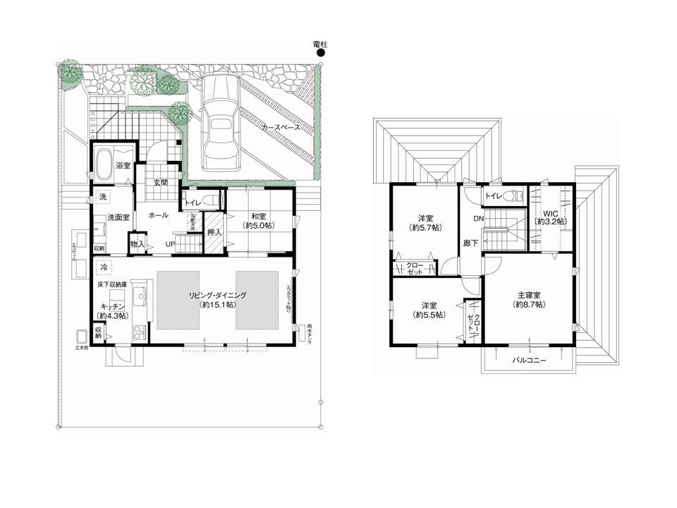
Floor plan

Floor plan. Access map image 1
Access map image 1

Living

Living. Room (May 2013) Shooting
Room (May 2013) Shooting

Other local

Other local. Paste the entire surface of the tile a profound sense of
Paste the entire surface of the tile a profound sense of

Kitchen

Kitchen. Panasonic kitchen and cupboard room (July 2013) Shooting
Panasonic kitchen and cupboard room (July 2013) Shooting

Bathroom

Bathroom. With bathroom heating site (July 2013) Shooting
With bathroom heating site (July 2013) Shooting

Living

Living. Room (May 2013) Shooting
Room (May 2013) Shooting

Living. Room (May 2013) Shooting
Room (May 2013) Shooting

Housing complex in the park (May 2012) shooting
Housing complex in the park (May 2012) shooting

Local guide map

Local guide map. Access map image 1
Access map image 1

Local appearance photo
Local appearance photo

Living
Living

Living
Living

The entire compartment Figure

The entire compartment Figure. It is a large-scale new town of all 308 sections of the Kobe City Construction.
It is a large-scale new town of all 308 sections of the Kobe City Construction.

Local appearance photo
Local appearance photo

Local appearance photo
Local appearance photo

Balcony
Balcony

Balcony
Balcony

View photos from the dwelling unit
View photos from the dwelling unit



Location