New Homes » Kansai » Hyogo Prefecture » Nishi-ku, Kobe
 
| | Kobe City, Hyogo Prefecture, Nishi-ku, 兵庫県神戸市西区 |
| Shintetsu Ao Line "Sakae" walk 11 minutes 神戸電鉄粟生線「栄」歩11分 |
| Land 60 square meters or more! ! House durability wooden houses that parallel parking Allowed spread dream in a wide garden that happy two-sided balcony spacious living holiday is fun ☆ (With 10-year warranty) 土地60坪以上!!並列駐車可広いお庭で夢広がります嬉しい2面バルコニーゆったりリビング休日が楽しみになるお家耐久性木造住宅☆(10年間保証付き) |
| Measures to conserve energy, Corresponding to the flat-35S, Pre-ground survey, Year Available, Parking two Allowed, 2 along the line more accessible, Land 50 square meters or more, Super close, System kitchen, Bathroom Dryer, Yang per good, All room storage, A quiet residential area, LDK15 tatami mats or more, Or more before road 6mese-style room, garden, Home garden, Washbasin with shower, Face-to-face kitchen, Barrier-free, Toilet 2 places, Bathroom 1 tsubo or more, 2-story, 2 or more sides balcony, South balcony, Double-glazing, Zenshitsuminami direction, Otobasu, Warm water washing toilet seat, Nantei, Underfloor Storage, The window in the bathroom, TV monitor interphone, Leafy residential area, Ventilation good, All room 6 tatami mats or more, Water filter, City gas, All rooms are two-sided lighting 省エネルギー対策、フラット35Sに対応、地盤調査済、年内入居可、駐車2台可、2沿線以上利用可、土地50坪以上、スーパーが近い、システムキッチン、浴室乾燥機、陽当り良好、全居室収納、閑静な住宅地、LDK15畳以上、前道6m以上、和室、庭、家庭菜園、シャワー付洗面台、対面式キッチン、バリアフリー、トイレ2ヶ所、浴室1坪以上、2階建、2面以上バルコニー、南面バルコニー、複層ガラス、全室南向き、オートバス、温水洗浄便座、南庭、床下収納、浴室に窓、TVモニタ付インターホン、緑豊かな住宅地、通風良好、全居室6畳以上、浄水器、都市ガス、全室2面採光 |
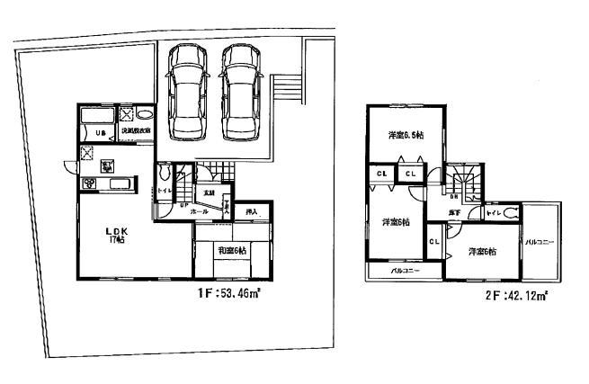
Features pickup 特徴ピックアップ | | Measures to conserve energy / Corresponding to the flat-35S / Pre-ground survey / Year Available / Parking two Allowed / 2 along the line more accessible / Land 50 square meters or more / Super close / System kitchen / Bathroom Dryer / Yang per good / All room storage / A quiet residential area / LDK15 tatami mats or more / Or more before road 6m / Japanese-style room / garden / Home garden / Washbasin with shower / Face-to-face kitchen / Barrier-free / Toilet 2 places / Bathroom 1 tsubo or more / 2-story / 2 or more sides balcony / South balcony / Double-glazing / Zenshitsuminami direction / Otobasu / Warm water washing toilet seat / Nantei / Underfloor Storage / The window in the bathroom / TV monitor interphone / Leafy residential area / Ventilation good / All room 6 tatami mats or more / Water filter / City gas / All rooms are two-sided lighting 省エネルギー対策 /フラット35Sに対応 /地盤調査済 /年内入居可 /駐車2台可 /2沿線以上利用可 /土地50坪以上 /スーパーが近い /システムキッチン /浴室乾燥機 /陽当り良好 /全居室収納 /閑静な住宅地 /LDK15畳以上 /前道6m以上 /和室 /庭 /家庭菜園 /シャワー付洗面台 /対面式キッチン /バリアフリー /トイレ2ヶ所 /浴室1坪以上 /2階建 /2面以上バルコニー /南面バルコニー /複層ガラス /全室南向き /オートバス /温水洗浄便座 /南庭 /床下収納 /浴室に窓 /TVモニタ付インターホン /緑豊かな住宅地 /通風良好 /全居室6畳以上 /浄水器 /都市ガス /全室2面採光 | Price 価格 | | 25,800,000 yen 2580万円 | Floor plan 間取り | | 4LDK 4LDK | Units sold 販売戸数 | | 1 units 1戸 | Total units 総戸数 | | 1 units 1戸 | Land area 土地面積 | | 203.32 sq m (61.50 tsubo) (Registration) 203.32m2(61.50坪)(登記) | Building area 建物面積 | | 95.58 sq m (28.91 tsubo) (measured) 95.58m2(28.91坪)(実測) | Driveway burden-road 私道負担・道路 | | Nothing, Northeast 6m width 無、北東6m幅 | Completion date 完成時期(築年月) | | December 2013 2013年12月 | Address 住所 | | Hyogo prefecture Kobe city west district Sakuragaokahigashi cho 兵庫県神戸市西区桜が丘東町1 | Traffic 交通 | | Shintetsu Ao Line "Sakae" walk 11 minutes Shintetsu Ao Line "Kobata" walk 23 minutes Shintetsu Ao Line "Oshibedani" walk 29 minutes 神戸電鉄粟生線「栄」歩11分 神戸電鉄粟生線「木幡」歩23分 神戸電鉄粟生線「押部谷」歩29分
| Related links 関連リンク | | [Related Sites of this company] 【この会社の関連サイト】 | Person in charge 担当者より | | [Regarding this property.] Property Select First please carry your foot on the local. At any time our staff will be happy to guide you to local. (Pick you up to your home) 【この物件について】物件選びはまず現地に足をお運び下さい。いつでも当社スタッフが現地までご案内させていただきます。(自宅までお迎えにあがります) | Contact お問い合せ先 | | TEL: 0800-603-3475 [Toll free] mobile phone ・ Also available from PHS Caller ID is not notified Please contact the "saw SUUMO (Sumo)" If it does not lead, If the real estate company TEL:0800-603-3475【通話料無料】携帯電話・PHSからもご利用いただけます 発信者番号は通知されません 「SUUMO(スーモ)を見た」と問い合わせください つながらない方、不動産会社の方は
| Building coverage, floor area ratio 建ぺい率・容積率 | | 40% ・ 80% 40%・80% | Time residents 入居時期 | | 2 months after the contract 契約後2ヶ月 | Land of the right form 土地の権利形態 | | Ownership 所有権 | Structure and method of construction 構造・工法 | | Wooden 2-story (framing method) 木造2階建(軸組工法) | Use district 用途地域 | | One low-rise 1種低層 | Overview and notices その他概要・特記事項 | | Facilities: Public Water Supply, This sewage, City gas, Building confirmation number: Building Products Kobe No. 25102, Parking: car space 設備:公営水道、本下水、都市ガス、建築確認番号:住建神戸第25102号、駐車場:カースペース | Company profile 会社概要 | | <Mediation> Governor of Hyogo Prefecture (2) No. 010887 (with) good house Yubinbango673-0041 Akashi, Hyogo Prefecture Nishiakashiminami cho 2-18-16 <仲介>兵庫県知事(2)第010887号(有)よしはうす〒673-0041 兵庫県明石市西明石南町2-18-16 |
Floor plan間取り図  25,800,000 yen, 4LDK, Land area 203.32 sq m , Building area 95.58 sq m
2580万円、4LDK、土地面積203.32m2、建物面積95.58m2
 Rendering (appearance)
完成予想図(外観)
Local photos, including front road前面道路含む現地写真  Local (10 May 2013) Shooting
現地(2013年10月)撮影
 Same specifications photos (living)
同仕様写真(リビング)
 Same specifications photo (kitchen)
同仕様写真(キッチン)
Primary school小学校  Sakuragaoka to elementary school 1018m
桜が丘小学校まで1018m
 Same specifications photos (Other introspection)
同仕様写真(その他内観)
Junior high school中学校  Sakuragaoka 388m until junior high school
桜が丘中学校まで388m
Location
|