New Homes » Kansai » Hyogo Prefecture » Nishi-ku, Kobe
 
| | Kobe City, Hyogo Prefecture, Nishi-ku, 兵庫県神戸市西区 |
| JR Sanyo Line "Akashi" bus a 9-minute bus stop walk 5 minutes JR山陽本線「明石」バス9分バス停歩5分 |
| January 5 (Sunday) local briefings 13:00 ~ 16 pm, Please come directly to the local. For further information, please contact Co., Ltd. Date new real estate sales → TEL078-939-2636 1月5日(日)現地説明会開催13時 ~ 16時、直接現地へお越し下さい。お問い合わせは株式会社日新不動産販売まで→TEL078-939-2636 |
| ■ Newly built subdivision 9 compartments per day is good. ■ Closet There is also plenty of storage! ■ Inquiry ・ To customers who I am allowed to local guidance [Library card 1000 yen] Present! ! ■ If inquiry until Ltd. Date new real estate sales → TEL078-939-2636 ======================= Kobe Chamber of Commerce and Industry member of the day new real estate sales [Mortgage also worry] Including the director of the original bank employee (about 30 years service), Public Interest Incorporated group corporation In three mortgage advisor of the Japan Association of Realtors certified one set one set of customers at internal meetings anywhere in the [Housing loan] But we have established a system to discuss whether the No. 1 best of. ======================= ■新築分譲9区画日当たり良好です。■納戸もあり収納たっぷり!■問い合わせ・現地ご案内させていただいたお客様に【図書カード1000円分】プレゼント!!■お問い合わせは株式会社日新不動産販売まで→TEL078-939-2636=======================神戸商工会議所会員の日新不動産販売なら【住宅ローンも心配無用】元銀行員(約30年勤務)の所長を含め、公益社団法人 全日本不動産協会認定の住宅ローンアドバイザー3名で1組1組のお客様を社内会議にてどこの【住宅ローン】が1番ベストなのか話し合うシステムを設けています。======================= |
Features pickup 特徴ピックアップ | | Measures to conserve energy / Corresponding to the flat-35S / Parking two Allowed / LDK18 tatami mats or more / Super close / Facing south / System kitchen / Bathroom Dryer / Yang per good / All room storage / A quiet residential area / Or more before road 6m / Japanese-style room / Washbasin with shower / Face-to-face kitchen / Wide balcony / Barrier-free / Toilet 2 places / Bathroom 1 tsubo or more / 2-story / South balcony / Double-glazing / Otobasu / Warm water washing toilet seat / Underfloor Storage / The window in the bathroom / TV monitor interphone / Ventilation good / All room 6 tatami mats or more / Water filter / City gas / Storeroom / All rooms are two-sided lighting / Maintained sidewalk 省エネルギー対策 /フラット35Sに対応 /駐車2台可 /LDK18畳以上 /スーパーが近い /南向き /システムキッチン /浴室乾燥機 /陽当り良好 /全居室収納 /閑静な住宅地 /前道6m以上 /和室 /シャワー付洗面台 /対面式キッチン /ワイドバルコニー /バリアフリー /トイレ2ヶ所 /浴室1坪以上 /2階建 /南面バルコニー /複層ガラス /オートバス /温水洗浄便座 /床下収納 /浴室に窓 /TVモニタ付インターホン /通風良好 /全居室6畳以上 /浄水器 /都市ガス /納戸 /全室2面採光 /整備された歩道 | Event information イベント情報 | | Local guidance meeting (please visitors to direct local) schedule / January 5 (Sunday) time / 13:00 ~ Will be held 16:00 local briefing session held on January 5 (Sunday) local tours! ! <From 13:00 to 16:00> Customers do not fit your time, Please in advance to saying! ! ! We look forward to seeing you in your family. -------------------------------------------------------------- 現地案内会(直接現地へご来場ください)日程/1月5日(日曜日)時間/13:00 ~ 16:00現地説明会開催 1月5日(日)現地見学会を開催いたします!! <13時から16時まで> お時間の合わないお客様は、事前におっしゃってください!!! ご家族でのご来場を心よりお待ち致しております。-------------------------------------------------------------- | Price 価格 | | 21,800,000 yen ~ 23.8 million yen 2180万円 ~ 2380万円 | Floor plan 間取り | | 4LDK ~ 4LDK + S (storeroom) 4LDK ~ 4LDK+S(納戸) | Units sold 販売戸数 | | 9 units 9戸 | Total units 総戸数 | | 9 units 9戸 | Land area 土地面積 | | 131.4 sq m ~ 139.71 sq m (39.74 tsubo ~ 42.26 tsubo) (Registration) 131.4m2 ~ 139.71m2(39.74坪 ~ 42.26坪)(登記) | Building area 建物面積 | | 97.2 sq m ~ 104.49 sq m (29.40 tsubo ~ 31.60 tsubo) (Registration) 97.2m2 ~ 104.49m2(29.40坪 ~ 31.60坪)(登記) | Completion date 完成時期(築年月) | | February 2014 late schedule 2014年2月下旬予定 | Address 住所 | | Kobe City, Hyogo Prefecture, Nishi-ku, Tamatsuchoimazu 592 兵庫県神戸市西区玉津町今津592 | Traffic 交通 | | JR Sanyo Line "Akashi" bus a 9-minute bus stop walk 5 minutes JR山陽本線「明石」バス9分バス停歩5分
| Related links 関連リンク | | [Related Sites of this company] 【この会社の関連サイト】 | Person in charge 担当者より | | [Regarding this property.] Please leave it to the new real estate sales the day of the Kobe Chamber of Commerce and Industry member. 【この物件について】神戸商工会議所会員の日新不動産販売にお任せください。 | Contact お問い合せ先 | | Ltd. Nissin real estate sales TEL: 0800-602-6796 [Toll free] mobile phone ・ Also available from PHS Caller ID is not notified Please contact the "saw SUUMO (Sumo)" If it does not lead, If the real estate company (株)日新不動産販売TEL:0800-602-6796【通話料無料】携帯電話・PHSからもご利用いただけます 発信者番号は通知されません 「SUUMO(スーモ)を見た」と問い合わせください つながらない方、不動産会社の方は
| Most price range 最多価格帯 | | 21 million yen ・ 22 million yen ・ 23 million yen (each 9 units) 2100万円台・2200万円台・2300万円台(各9戸) | Building coverage, floor area ratio 建ぺい率・容積率 | | Kenpei rate: 60%, Volume ratio: 200% 建ペい率:60%、容積率:200% | Time residents 入居時期 | | February 2014 late schedule 2014年2月下旬予定 | Land of the right form 土地の権利形態 | | Ownership 所有権 | Structure and method of construction 構造・工法 | | Wooden 2-story 木造2階建 | Use district 用途地域 | | Industry 工業 | Land category 地目 | | Residential land 宅地 | Overview and notices その他概要・特記事項 | | Building confirmation number: No. H25SHC117501 ~ No. H25SHC117509 建築確認番号:第H25SHC117501号 ~ 第H25SHC117509号 | Company profile 会社概要 | | <Mediation> Governor of Hyogo Prefecture (1) No. 401409 (Ltd.) Nissin real estate sales Yubinbango673-0042 Akashi, Hyogo Prefecture Higashifujie 1-16-1 <仲介>兵庫県知事(1)第401409号(株)日新不動産販売〒673-0042 兵庫県明石市東藤江1-16-1 |
Rendering (appearance)完成予想図(外観)  (1 Building) Rendering
(1号棟)完成予想図
 (Building 2) Rendering
(2号棟)完成予想図
Local appearance photo現地外観写真  Local (11 May 2013) Shooting
現地(2013年11月)撮影
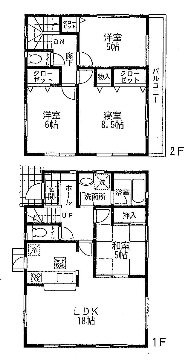
Floor plan間取り図  (1 Building), Price 21,800,000 yen, 4LDK+S, Land area 131.4 sq m , Building area 98.81 sq m
(1号棟)、価格2180万円、4LDK+S、土地面積131.4m2、建物面積98.81m2
Local appearance photo現地外観写真  Local (11 May 2013) Shooting
現地(2013年11月)撮影
 Same specifications photos (living)
同仕様写真(リビング)
 Same specifications photo (bathroom)
同仕様写真(浴室)
 Same specifications photo (kitchen)
同仕様写真(キッチン)
Local photos, including front road前面道路含む現地写真  Local (11 May 2013) Shooting
現地(2013年11月)撮影
Shopping centreショッピングセンター  Izumiya 1724m to Kobe Tamatsu shop
イズミヤ神戸玉津店まで1724m
 Rendering (introspection)
完成予想図(内観)
 The entire compartment Figure
全体区画図
Floor plan間取り図  (Building 2), Price 21,800,000 yen, 4LDK+S, Land area 131.43 sq m , Building area 100.44 sq m
(2号棟)、価格2180万円、4LDK+S、土地面積131.43m2、建物面積100.44m2
Rendering (appearance)完成予想図(外観)  (3 Building) Rendering
(3号棟)完成予想図
Local photos, including front road前面道路含む現地写真  Local (11 May 2013) Shooting
現地(2013年11月)撮影
Station駅  JR 2000m to Akashi Station
JR 明石駅まで2000m
 Rendering (introspection)
完成予想図(内観)
Floor plan間取り図  (3 Building), Price 22,800,000 yen, 4LDK, Land area 131.42 sq m , Building area 99.63 sq m
(3号棟)、価格2280万円、4LDK、土地面積131.42m2、建物面積99.63m2
Rendering (appearance)完成予想図(外観)  (4 Building) Rendering
(4号棟)完成予想図
 Rendering (introspection)
完成予想図(内観)
Floor plan間取り図  (4 Building), Price 22,800,000 yen, 4LDK+S, Land area 131.98 sq m , Building area 101.25 sq m
(4号棟)、価格2280万円、4LDK+S、土地面積131.98m2、建物面積101.25m2
Presentプレゼント ![Present. Inquiry from Sumo ・ To customers who I am allowed to local guidance, [1000 yen worth of books card] Get the! ! When the guide, Please tell the "saw the Sumo" to the person in charge.](/images/hyogo/kobeshinishi/ee0c770027.jpg) Inquiry from Sumo ・ To customers who I am allowed to local guidance, [1000 yen worth of books card] Get the! ! When the guide, Please tell the "saw the Sumo" to the person in charge.
スーモから問い合わせ・現地ご案内させていただいたお客様に、【1000円分の図書カード】をプレゼント!!案内の際、担当者に『スーモを見た』とお伝え下さい。
Location
|