|
|
Kobe City, Hyogo Prefecture, Nishi-ku,
兵庫県神戸市西区
|
|
Subway Seishin ・ Yamanote Line "Ikawadani" 10 minutes Nagao TsujiAyumi 3 minutes by bus
地下鉄西神・山手線「伊川谷」バス10分長尾辻歩3分
|
|
■ Charm residence with insurance ■ Ground assurance system applicable Property ■ Cupboard ■ Outdoors with outlet for electric vehicles
■まもりすまい保険付 ■地盤保証システム適用物件 ■カップボード ■電気自動車用野外コンセント付
|
Features pickup 特徴ピックアップ | | Corresponding to the flat-35S / System kitchen / Bathroom Dryer / LDK15 tatami mats or more / Bathroom 1 tsubo or more / TV monitor interphone / Good view / Dish washing dryer / Three-story or more フラット35Sに対応 /システムキッチン /浴室乾燥機 /LDK15畳以上 /浴室1坪以上 /TVモニタ付インターホン /眺望良好 /食器洗乾燥機 /3階建以上 |
Price 価格 | | 25,800,000 yen 2580万円 |
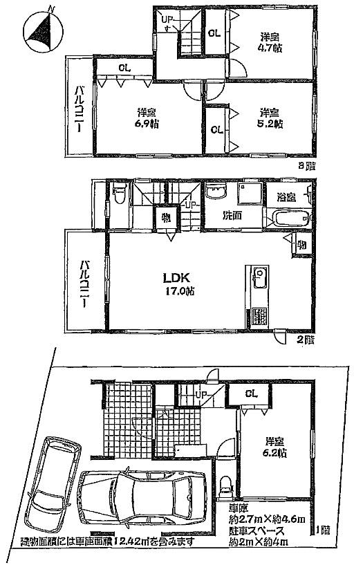
Floor plan 間取り | | 4LDK 4LDK |
Units sold 販売戸数 | | 1 units 1戸 |
Total units 総戸数 | | 1 units 1戸 |
Land area 土地面積 | | 78.67 sq m (23.79 tsubo) (Registration) 78.67m2(23.79坪)(登記) |
Building area 建物面積 | | 117.48 sq m (35.53 square meters) 117.48m2(35.53坪) |
Driveway burden-road 私道負担・道路 | | Nothing, West 5m width 無、西5m幅 |
Completion date 完成時期(築年月) | | December 2013 2013年12月 |
Address 住所 | | Hyogo prefecture Kobe city west district Ikawadani MachiArase 303-18 兵庫県神戸市西区伊川谷町有瀬303-18 |
Traffic 交通 | | Subway Seishin ・ Yamanote Line "Ikawadani" 10 minutes Nagao TsujiAyumi 3 minutes by bus 地下鉄西神・山手線「伊川谷」バス10分長尾辻歩3分
|
Person in charge 担当者より | | Person in charge of real-estate and building Morigai Kenji Age: 40 Daigyokai Experience: 25 years taking advantage of past experience to resolve the worries of everyone. Current of anxiety ・ Please tell us your dissatisfaction. Lifestyle of hope also please let us know. It is the start. 担当者宅建森垣憲治年齢:40代業界経験:25年これまでの経験を活かして皆様のお悩みを解決します。現在の不安・不満をお聞かせください。希望のライフスタイルもお聞かせください。それがスタートです。 |
Contact お問い合せ先 | | TEL: 0800-805-4089 [Toll free] mobile phone ・ Also available from PHS Caller ID is not notified Please contact the "saw SUUMO (Sumo)" If it does not lead, If the real estate company TEL:0800-805-4089【通話料無料】携帯電話・PHSからもご利用いただけます 発信者番号は通知されません 「SUUMO(スーモ)を見た」と問い合わせください つながらない方、不動産会社の方は
|
Building coverage, floor area ratio 建ぺい率・容積率 | | 60% ・ 200% 60%・200% |
Time residents 入居時期 | | Consultation 相談 |
Land of the right form 土地の権利形態 | | Ownership 所有権 |
Structure and method of construction 構造・工法 | | Wooden three-story (framing method) 木造3階建(軸組工法) |
Construction 施工 | | (Ltd.) Seishin Home (株)セイシンホーム |
Use district 用途地域 | | One middle and high 1種中高 |
Overview and notices その他概要・特記事項 | | Contact: Morigai Kenji, Facilities: Public Water Supply, This sewage, City gas, Building confirmation number: BVJ-X13-10-0674 No., Parking: Garage 担当者:森垣憲治、設備:公営水道、本下水、都市ガス、建築確認番号:BVJ-X13-10-0674号、駐車場:車庫 |
Company profile 会社概要 | | <Mediation> Governor of Hyogo Prefecture (1) No. 401435 Trust Real Estate Co., Ltd. Yubinbango673-0038 Akashi, Hyogo Prefecture Bessho-cho 1-8 <仲介>兵庫県知事(1)第401435号トラスト不動産(株)〒673-0038 兵庫県明石市別所町1-8 |