New Homes » Kansai » Hyogo Prefecture » Nishi-ku, Kobe
 
| | Kobe City, Hyogo Prefecture, Nishi-ku, 兵庫県神戸市西区 |
| Shintetsu Ao Line "Sakae" walk 11 minutes 神戸電鉄粟生線「栄」歩11分 |
| Or more before road 6m, Parking two Allowed, All room 6 tatami mats or more, Facing south, System kitchen, Bathroom Dryer, LDK15 tatami mats or moreese-style room, Washbasin with shower, Face-to-face kitchen, Toilet 2 places, 2-story 前道6m以上、駐車2台可、全居室6畳以上、南向き、システムキッチン、浴室乾燥機、LDK15畳以上、和室、シャワー付洗面台、対面式キッチン、トイレ2ヶ所、2階建 |
| ■ Next-generation energy-saving standards corresponding! ■ This site spacious 61 square meters! ■ It is a quiet residential area! ■ Parking is two Allowed! ■ Two-sided balcony! ■ There convenient back door to the kitchen! ■ Please feel free to contact us! ■次世代省エネ基準対応!■敷地広々61坪です!■閑静な住宅街です!■駐車2台可です!■2面バルコニーです!■キッチンに便利な勝手口有り!■お気軽にお問い合わせください! |
Features pickup 特徴ピックアップ | | Parking two Allowed / Facing south / System kitchen / Bathroom Dryer / LDK15 tatami mats or more / Or more before road 6m / Japanese-style room / Washbasin with shower / Face-to-face kitchen / Toilet 2 places / 2-story / Warm water washing toilet seat / Underfloor Storage / TV monitor interphone / All room 6 tatami mats or more 駐車2台可 /南向き /システムキッチン /浴室乾燥機 /LDK15畳以上 /前道6m以上 /和室 /シャワー付洗面台 /対面式キッチン /トイレ2ヶ所 /2階建 /温水洗浄便座 /床下収納 /TVモニタ付インターホン /全居室6畳以上 | Price 価格 | | 25,800,000 yen 2580万円 | Floor plan 間取り | | 4LDK 4LDK | Units sold 販売戸数 | | 1 units 1戸 | Total units 総戸数 | | 1 units 1戸 | Land area 土地面積 | | 203.32 sq m (61.50 tsubo) (Registration) 203.32m2(61.50坪)(登記) | Building area 建物面積 | | 95.58 sq m (28.91 tsubo) (Registration) 95.58m2(28.91坪)(登記) | Driveway burden-road 私道負担・道路 | | Nothing, Northeast 6m width 無、北東6m幅 | Completion date 完成時期(築年月) | | December 2013 2013年12月 | Address 住所 | | Hyogo prefecture Kobe city west district Sakuragaokahigashi cho 兵庫県神戸市西区桜が丘東町1 | Traffic 交通 | | Shintetsu Ao Line "Sakae" walk 11 minutes 神戸電鉄粟生線「栄」歩11分
| Related links 関連リンク | | [Related Sites of this company] 【この会社の関連サイト】 | Person in charge 担当者より | | [Regarding this property.] Please feel free to contact us! 【この物件について】お気軽にお問い合わせください! | Contact お問い合せ先 | | TEL: 0120-581150 [Toll free] Please contact the "saw SUUMO (Sumo)" TEL:0120-581150【通話料無料】「SUUMO(スーモ)を見た」と問い合わせください | Building coverage, floor area ratio 建ぺい率・容積率 | | 40% ・ 80% 40%・80% | Time residents 入居時期 | | Consultation 相談 | Land of the right form 土地の権利形態 | | Ownership 所有権 | Structure and method of construction 構造・工法 | | Wooden 2-story 木造2階建 | Use district 用途地域 | | One low-rise 1種低層 | Overview and notices その他概要・特記事項 | | Facilities: Public Water Supply, This sewage, City gas, Building confirmation number: Building Products Kobe No. 25102, Parking: car space 設備:公営水道、本下水、都市ガス、建築確認番号:住建神戸第25102号、駐車場:カースペース | Company profile 会社概要 | | <Mediation> Governor of Hyogo Prefecture (1) No. 011574 (Ltd.) Familia Home Yubinbango651-2273 Hyogo prefecture Kobe city west district Kojidai 5-9-4 Seishin Chuo Station Building second floor <仲介>兵庫県知事(1)第011574号(株)ファミリアホーム〒651-2273 兵庫県神戸市西区糀台5-9-4 西神中央駅ビル2階 |
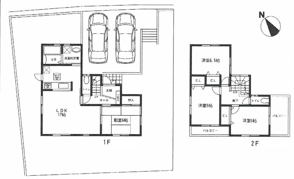
Floor plan間取り図  25,800,000 yen, 4LDK, Land area 203.32 sq m , Building area 95.58 sq m
2580万円、4LDK、土地面積203.32m2、建物面積95.58m2
Same specifications photos (appearance)同仕様写真(外観)  The company construction cases
同社施工例
Same specifications photos (Other introspection)同仕様写真(その他内観)  Same specifications construction cases
同仕様施工例
Same specifications photos (living)同仕様写真(リビング)  Same specifications construction cases
同仕様施工例
Same specifications photo (bathroom)同仕様写真(浴室)  Same specifications construction cases
同仕様施工例
Same specifications photo (kitchen)同仕様写真(キッチン)  Same specifications construction cases
同仕様施工例
Same specifications photos (Other introspection)同仕様写真(その他内観)  Same specifications construction cases
同仕様施工例
 Same specifications construction cases
同仕様施工例
 Same specifications construction cases
同仕様施工例
 Same specifications construction cases
同仕様施工例
 Same specifications construction cases
同仕様施工例
 Same specifications construction cases
同仕様施工例
Location
|