New Homes » Kansai » Hyogo Prefecture » Nishi-ku, Kobe
 
| | Kobe City, Hyogo Prefecture, Nishi-ku, 兵庫県神戸市西区 |
| Sanyo Electric Railway main line "Akashi Sanyo" bus 13 minutes Ayumi Akashi 3 minutes 山陽電鉄本線「山陽明石」バス13分明石歩3分 |
| Solar power system, Pre-ground survey, Year Available, Parking two Allowed, 2 along the line more accessible, Super close, System kitchen, Bathroom Dryer, Yang per good, All room storage, A quiet residential area, LDK15 太陽光発電システム、地盤調査済、年内入居可、駐車2台可、2沿線以上利用可、スーパーが近い、システムキッチン、浴室乾燥機、陽当り良好、全居室収納、閑静な住宅地、LDK15 |
| Solar power system, Pre-ground survey, Year Available, Parking two Allowed, 2 along the line more accessible, Super close, System kitchen, Bathroom Dryer, Yang per good, All room storage, A quiet residential area, LDK15 tatami mats or more, Or more before road 6mese-style room, Shaping land, garden, Washbasin with shower, Face-to-face kitchen, Barrier-free, Toilet 2 places, Bathroom 1 tsubo or more, 2-story, Double-glazing, Zenshitsuminami direction, Otobasu, Warm water washing toilet seat, Nantei, Underfloor Storage, The window in the bathroom, TV monitor interphone, Leafy residential area, Ventilation good, Water filter, City gas, All rooms are two-sided lighting, Flat terrain 太陽光発電システム、地盤調査済、年内入居可、駐車2台可、2沿線以上利用可、スーパーが近い、システムキッチン、浴室乾燥機、陽当り良好、全居室収納、閑静な住宅地、LDK15畳以上、前道6m以上、和室、整形地、庭、シャワー付洗面台、対面式キッチン、バリアフリー、トイレ2ヶ所、浴室1坪以上、2階建、複層ガラス、全室南向き、オートバス、温水洗浄便座、南庭、床下収納、浴室に窓、TVモニタ付インターホン、緑豊かな住宅地、通風良好、浄水器、都市ガス、全室2面採光、平坦地 |
Features pickup 特徴ピックアップ | | Solar power system / Pre-ground survey / Year Available / Parking two Allowed / 2 along the line more accessible / Super close / System kitchen / Bathroom Dryer / Yang per good / All room storage / A quiet residential area / LDK15 tatami mats or more / Or more before road 6m / Japanese-style room / Shaping land / garden / Washbasin with shower / Face-to-face kitchen / Barrier-free / Toilet 2 places / Bathroom 1 tsubo or more / 2-story / Double-glazing / Zenshitsuminami direction / Otobasu / Warm water washing toilet seat / Nantei / Underfloor Storage / The window in the bathroom / TV monitor interphone / Leafy residential area / Ventilation good / Water filter / City gas / All rooms are two-sided lighting / Flat terrain 太陽光発電システム /地盤調査済 /年内入居可 /駐車2台可 /2沿線以上利用可 /スーパーが近い /システムキッチン /浴室乾燥機 /陽当り良好 /全居室収納 /閑静な住宅地 /LDK15畳以上 /前道6m以上 /和室 /整形地 /庭 /シャワー付洗面台 /対面式キッチン /バリアフリー /トイレ2ヶ所 /浴室1坪以上 /2階建 /複層ガラス /全室南向き /オートバス /温水洗浄便座 /南庭 /床下収納 /浴室に窓 /TVモニタ付インターホン /緑豊かな住宅地 /通風良好 /浄水器 /都市ガス /全室2面採光 /平坦地 | Price 価格 | | 24,800,000 yen 2480万円 | Floor plan 間取り | | 4LDK 4LDK | Units sold 販売戸数 | | 1 units 1戸 | Total units 総戸数 | | 8 units 8戸 | Land area 土地面積 | | 126.24 sq m (registration) 126.24m2(登記) | Building area 建物面積 | | 99.63 sq m (measured) 99.63m2(実測) | Driveway burden-road 私道負担・道路 | | Nothing, East 6m width 無、東6m幅 | Completion date 完成時期(築年月) | | December 2013 2013年12月 | Address 住所 | | Kobe City, Hyogo Prefecture, Nishi-ku, Ikawadani MachiBeppu 兵庫県神戸市西区伊川谷町別府 | Traffic 交通 | | Sanyo Electric Railway main line "Akashi Sanyo" bus 13 minutes Ayumi Akashi 3 minutes Sanyo Electric Railway Main Line "Hitomarumae" walk 32 minutes Sanyo Electric Railway Main Line "Ozotani" walk 33 minutes 山陽電鉄本線「山陽明石」バス13分明石歩3分 山陽電鉄本線「人丸前」歩32分 山陽電鉄本線「大蔵谷」歩33分
| Related links 関連リンク | | [Related Sites of this company] 【この会社の関連サイト】 | Contact お問い合せ先 | | True English Building Products TEL: 078-942-2692 Please inquire as "saw SUUMO (Sumo)" 真英住建TEL:078-942-2692「SUUMO(スーモ)を見た」と問い合わせください | Building coverage, floor area ratio 建ぺい率・容積率 | | 60% ・ 200% 60%・200% | Time residents 入居時期 | | Consultation 相談 | Land of the right form 土地の権利形態 | | Ownership 所有権 | Structure and method of construction 構造・工法 | | Wooden 2-story (framing method) 木造2階建(軸組工法) | Use district 用途地域 | | Two dwellings 2種住居 | Overview and notices その他概要・特記事項 | | Facilities: Public Water Supply, This sewage, City gas, Building confirmation number: No. H25SHC109715, Parking: car space 設備:公営水道、本下水、都市ガス、建築確認番号:第H25SHC109715号、駐車場:カースペース | Company profile 会社概要 | | <Mediation> Governor of Hyogo Prefecture (10) Article 007642 No. true British Building Products Yubinbango675-0160 Nozoe west Hyogo Prefecture Kako-gun Harima-cho 3-18-7 <仲介>兵庫県知事(10)第007642号真英住建〒675-0160 兵庫県加古郡播磨町西野添3-18-7 |
 Local appearance photo
現地外観写真
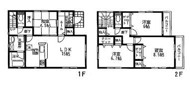
Floor plan間取り図  24,800,000 yen, 4LDK, Land area 126.24 sq m , Building area 99.63 sq m
2480万円、4LDK、土地面積126.24m2、建物面積99.63m2
 Kitchen
キッチン
 Living
リビング
 Bathroom
浴室
 Non-living room
リビング以外の居室
Location
|