New Homes » Kansai » Hyogo Prefecture » Kobe Suma-ku
 
| | Hyogo Prefecture, Kobe Suma-ku, 兵庫県神戸市須磨区 |
| Sanyo Electric Railway Main Line "Higashisuma" walk 5 minutes 山陽電鉄本線「東須磨」歩5分 |
| Ventilation per north-south road on both sides, Good per yang. With double-sided balcony. Indoor bright feelings is a good. There is a sense of open. Two places with loft. 南北両面道路につき通風、陽あたり良好。両面バルコニー付。室内明るく気持ちがよいです。開放感あります。2か所ロフト付。 |
| ■ Major park soon. Crowded with children. ■ Raifoto a 1-minute walk from the. Shopping is convenient. Daiei is also within walking distance. ■ 3 wayside Available. ■大手公園すぐ。子供たちでにぎわっています。■ライフォートまで徒歩1分。買い物便利です。ダイエーも徒歩圏内。■3沿線利用可。 |
Features pickup 特徴ピックアップ | | Design house performance with evaluation / Airtight high insulated houses / Pre-ground survey / Fiscal year Available / See the mountain / Super close / It is close to the city / Facing south / System kitchen / Bathroom Dryer / Yang per good / All room storage / A quiet residential area / LDK15 tatami mats or more / Or more before road 6m / Washbasin with shower / Face-to-face kitchen / Toilet 2 places / Bathroom 1 tsubo or more / Double-glazing / Otobasu / Warm water washing toilet seat / TV monitor interphone / Leafy residential area / Ventilation good / All living room flooring / Good view / Dish washing dryer / All room 6 tatami mats or more / Three-story or more / City gas / Maintained sidewalk 設計住宅性能評価付 /高気密高断熱住宅 /地盤調査済 /年度内入居可 /山が見える /スーパーが近い /市街地が近い /南向き /システムキッチン /浴室乾燥機 /陽当り良好 /全居室収納 /閑静な住宅地 /LDK15畳以上 /前道6m以上 /シャワー付洗面台 /対面式キッチン /トイレ2ヶ所 /浴室1坪以上 /複層ガラス /オートバス /温水洗浄便座 /TVモニタ付インターホン /緑豊かな住宅地 /通風良好 /全居室フローリング /眺望良好 /食器洗乾燥機 /全居室6畳以上 /3階建以上 /都市ガス /整備された歩道 | Event information イベント情報 | | (Please make a reservation beforehand) schedule / During the public time / 10:00 ~ 17:00 You can now guide. In the case of preview wish immediately, It can come to open the key. Please feel free to. (事前に必ず予約してください)日程/公開中時間/10:00 ~ 17:00案内可能になりました。内覧希望の場合即、鍵をあけに伺います。お気軽にどうぞ。 | Price 価格 | | 33,500,000 yen ~ 34,800,000 yen 3350万円 ~ 3480万円 | Floor plan 間取り | | 4LDK 4LDK | Units sold 販売戸数 | | 4 units 4戸 | Total units 総戸数 | | 4 units 4戸 | Land area 土地面積 | | 57.44 sq m ~ 64.87 sq m (measured) 57.44m2 ~ 64.87m2(実測) | Building area 建物面積 | | 110.56 sq m ~ 114.21 sq m (measured) 110.56m2 ~ 114.21m2(実測) | Driveway burden-road 私道負担・道路 | | Road width: 3.5m ~ 道路幅:3.5m ~ | Completion date 完成時期(築年月) | | Early September 2013 2013年9月上旬 | Address 住所 | | Hyogo Prefecture, Kobe Suma-ku, Otemachi 4-1 兵庫県神戸市須磨区大手町4-1 | Traffic 交通 | | Sanyo Electric Railway Main Line "Higashisuma" walk 5 minutes Sanyo Electric Railway Main Line "Itayado" walk 10 minutes Subway Seishin ・ Yamanote Line "Itayado" walk 12 minutes 山陽電鉄本線「東須磨」歩5分 山陽電鉄本線「板宿」歩10分 地下鉄西神・山手線「板宿」歩12分
| Related links 関連リンク | | [Related Sites of this company] 【この会社の関連サイト】 | Person in charge 担当者より | | [Regarding this property.] 4 subdivisions. It is a bright room at the north and south both sides road. Sea views from the third floor. 【この物件について】4区画分譲。南北両面道路にて室内明るいです。3階からは海が見えます。 | Contact お問い合せ先 | | TEL: 0800-603-3372 [Toll free] mobile phone ・ Also available from PHS Caller ID is not notified Please contact the "saw SUUMO (Sumo)" If it does not lead, If the real estate company TEL:0800-603-3372【通話料無料】携帯電話・PHSからもご利用いただけます 発信者番号は通知されません 「SUUMO(スーモ)を見た」と問い合わせください つながらない方、不動産会社の方は
| Building coverage, floor area ratio 建ぺい率・容積率 | | Kenpei rate: 60%, Volume ratio: 200% 建ペい率:60%、容積率:200% | Time residents 入居時期 | | Three months after the contract 契約後3ヶ月 | Land of the right form 土地の権利形態 | | Ownership 所有権 | Use district 用途地域 | | One middle and high, One low-rise 1種中高、1種低層 | Land category 地目 | | Residential land 宅地 | Overview and notices その他概要・特記事項 | | Building confirmation number: No. J13-20048 建築確認番号:J13-20048号 | Company profile 会社概要 | | <Mediation> Governor of Hyogo Prefecture (2) No. 010530 (with) Eleven Home Yubinbango654-0021 Kobe Suma-ku, Hirata-cho 1-1-14 <仲介>兵庫県知事(2)第010530号(有)イレブンホーム〒654-0021 兵庫県神戸市須磨区平田町1-1-14 |
Local appearance photo現地外観写真  Local (11 May 2013) Shooting
現地(2013年11月)撮影
Livingリビング  Indoor (11 May 2013) Shooting The inside of the D
室内(2013年11月)撮影 Dの内部
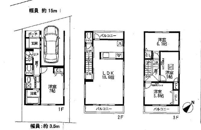
Otherその他  Floor plan
間取り図
Same specifications photos (appearance)同仕様写真(外観)  Nagata Ward Ueikeda new construction
長田区上池田新築
Bathroom浴室  Same specifications
同仕様
Same specifications photo (kitchen)同仕様写真(キッチン)  Same specifications
同仕様
Non-living roomリビング以外の居室  Indoor (11 May 2013) Shooting Under construction Cross is not yet crawling
室内(2013年11月)撮影 建築中 クロスはまだはっていません
Entrance玄関  Same specifications
同仕様
Toiletトイレ  Same specifications
同仕様
Local photos, including front road前面道路含む現地写真  Local (11 May 2013) Shooting South side road
現地(2013年11月)撮影 南側も道路
Supermarketスーパー  966m to Super Maruhachi Takatori shop
スーパーマルハチ鷹取店まで966m
View photos from the dwelling unit住戸からの眺望写真  View from the site (November 2013) Shooting
現地からの眺望(2013年11月)撮影
 The entire compartment Figure
全体区画図
Same specifications photos (appearance)同仕様写真(外観)  Nagata Ward Ueikeda new construction
長田区上池田新築
Kitchenキッチン  Indoor (November 2013) has entered shooting kitchen. During curing
室内(2013年11月)撮影キッチン入りました。養生中
Non-living roomリビング以外の居室  Indoor (11 May 2013) Shooting
室内(2013年11月)撮影
Entrance玄関  Local (11 May 2013) Shooting
現地(2013年11月)撮影
Toiletトイレ  Same specifications
同仕様
Local photos, including front road前面道路含む現地写真  Local (11 May 2013) Shooting North on public roads
現地(2013年11月)撮影 北側公道
Supermarketスーパー  927m to Daiei Itayado shop
ダイエー板宿店まで927m
Location
|