New Homes » Kansai » Hyogo Prefecture » Kobe Suma-ku
 
| | Hyogo Prefecture, Kobe Suma-ku, 兵庫県神戸市須磨区 |
| Sanyo Electric Railway Main Line "Higashisuma" walk 4 minutes 山陽電鉄本線「東須磨」歩4分 |
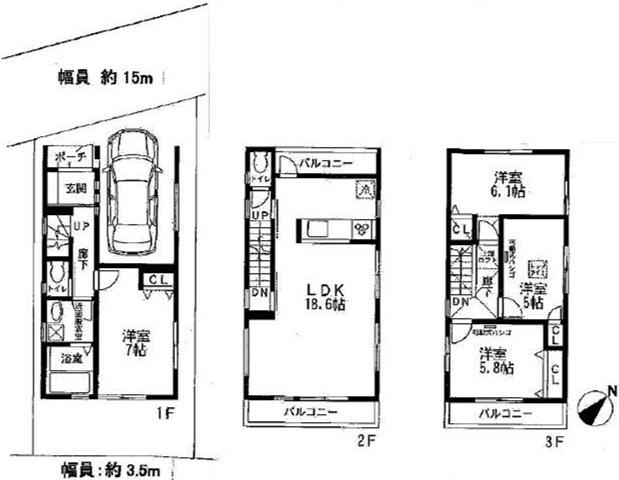
Features pickup 特徴ピックアップ | | Facing south / Bathroom Dryer / Yang per good / LDK15 tatami mats or more / Face-to-face kitchen / loft / Dish washing dryer 南向き /浴室乾燥機 /陽当り良好 /LDK15畳以上 /対面式キッチン /ロフト /食器洗乾燥機 | Price 価格 | | 34,800,000 yen 3480万円 | Floor plan 間取り | | 4LDK 4LDK | Units sold 販売戸数 | | 1 units 1戸 | Total units 総戸数 | | 1 units 1戸 | Land area 土地面積 | | 64.87 sq m (registration) 64.87m2(登記) | Building area 建物面積 | | 114.21 sq m (registration) 114.21m2(登記) | Driveway burden-road 私道負担・道路 | | 2.08 sq m , North 15m width, South 3.5m width 2.08m2、北15m幅、南3.5m幅 | Completion date 完成時期(築年月) | | December 2013 2013年12月 | Address 住所 | | Hyogo Prefecture, Kobe Suma-ku, Otemachi 4 兵庫県神戸市須磨区大手町4 | Traffic 交通 | | Sanyo Electric Railway Main Line "Higashisuma" walk 4 minutes 山陽電鉄本線「東須磨」歩4分
| Contact お問い合せ先 | | TEL: 0800-603-1263 [Toll free] mobile phone ・ Also available from PHS Caller ID is not notified Please contact the "saw SUUMO (Sumo)" If it does not lead, If the real estate company TEL:0800-603-1263【通話料無料】携帯電話・PHSからもご利用いただけます 発信者番号は通知されません 「SUUMO(スーモ)を見た」と問い合わせください つながらない方、不動産会社の方は
| Building coverage, floor area ratio 建ぺい率・容積率 | | 70% ・ 200% 70%・200% | Time residents 入居時期 | | Consultation 相談 | Land of the right form 土地の権利形態 | | Ownership 所有権 | Structure and method of construction 構造・工法 | | Wooden three-story 木造3階建 | Other limitations その他制限事項 | | Residential land development construction regulation area, Advanced use district, Quasi-fire zones 宅地造成工事規制区域、高度利用地区、準防火地域 | Overview and notices その他概要・特記事項 | | Facilities: Public Water Supply, This sewage, City gas, Building confirmation number: J-13-20046, Parking: Garage 設備:公営水道、本下水、都市ガス、建築確認番号:J-13-20046、駐車場:車庫 | Company profile 会社概要 | | <Mediation> Minister of Land, Infrastructure and Transport (11) No. 002287 (Corporation) Japan Living Service Co., Ltd. Suma office Yubinbango654-0055 Kobe Suma-ku, Sumauradori 4-7-11 <仲介>国土交通大臣(11)第002287号(株)日住サービス須磨営業所〒654-0055 兵庫県神戸市須磨区須磨浦通4-7-11 |
 Local appearance photo
現地外観写真
Floor plan間取り図  34,800,000 yen, 4LDK, Land area 64.87 sq m , Building area 114.21 sq m
3480万円、4LDK、土地面積64.87m2、建物面積114.21m2
 Local appearance photo
現地外観写真
Location
|