New Homes » Kansai » Hyogo Prefecture » Kobe Suma-ku
 
| | Hyogo Prefecture, Kobe Suma-ku, 兵庫県神戸市須磨区 |
| Subway Seishin ・ Yamanote Line "Itayado" walk 7 minutes 地下鉄西神・山手線「板宿」歩7分 |
| All rooms have double-glazing, Is on the first floor LDK uses a folding door sash. Also has been enhanced to use the cup board to please housewives housed in the kitchen. 全室ペアガラス、1階LDKには折れ戸サッシを使用しています。キッチンには主婦に喜ばれるカップボードを使用し収納も充実しています。 |
| ■ Itayado mall, convenience store, Various hospitals, Suma Ward, Enhance the facilities necessary for life, such as financial institutions ■ It is detached of happy facing south ■板宿商店街、コンビニ、各種病院、須磨区役所、金融機関など生活に必要な施設が充実■うれしい南向きの戸建です |
Features pickup 特徴ピックアップ | | Pre-ground survey / Year Available / 2 along the line more accessible / Super close / It is close to the city / Facing south / System kitchen / Bathroom Dryer / Yang per good / All room storage / Flat to the station / A quiet residential area / Shaping land / Washbasin with shower / Toilet 2 places / Bathroom 1 tsubo or more / South balcony / Double-glazing / Otobasu / Warm water washing toilet seat / The window in the bathroom / TV monitor interphone / Dish washing dryer / Three-story or more / City gas / Storeroom / Flat terrain 地盤調査済 /年内入居可 /2沿線以上利用可 /スーパーが近い /市街地が近い /南向き /システムキッチン /浴室乾燥機 /陽当り良好 /全居室収納 /駅まで平坦 /閑静な住宅地 /整形地 /シャワー付洗面台 /トイレ2ヶ所 /浴室1坪以上 /南面バルコニー /複層ガラス /オートバス /温水洗浄便座 /浴室に窓 /TVモニタ付インターホン /食器洗乾燥機 /3階建以上 /都市ガス /納戸 /平坦地 | Event information イベント情報 | | Local guide Board (Please be sure to ask in advance) schedule / During the public time / 10:00 ~ 17:00 現地案内会(事前に必ずお問い合わせください)日程/公開中時間/10:00 ~ 17:00 | Price 価格 | | 31,800,000 yen 3180万円 | Floor plan 間取り | | 3LDK + S (storeroom) 3LDK+S(納戸) | Units sold 販売戸数 | | 1 units 1戸 | Total units 総戸数 | | 1 units 1戸 | Land area 土地面積 | | 72.75 sq m (registration) 72.75m2(登記) | Building area 建物面積 | | 100.47 sq m (measured) 100.47m2(実測) | Driveway burden-road 私道負担・道路 | | Nothing 無 | Completion date 完成時期(築年月) | | November 2013 2013年11月 | Address 住所 | | Hyogo Prefecture, Kobe Suma-ku, Otemachi 2 兵庫県神戸市須磨区大手町2 | Traffic 交通 | | Subway Seishin ・ Yamanote Line "Itayado" walk 7 minutes Sanyo Electric Railway Main Line "Higashisuma" walk 4 minutes Sanyo Electric Railway Main Line "Itayado" walk 7 minutes 地下鉄西神・山手線「板宿」歩7分 山陽電鉄本線「東須磨」歩4分 山陽電鉄本線「板宿」歩7分
| Related links 関連リンク | | [Related Sites of this company] 【この会社の関連サイト】 | Person in charge 担当者より | | Rep Nakajima Hirofumi Age: 40 Daigyokai Experience: 20 years Now 19-year history of real estate. We work hard at a local contact. Independently it will be 15 years. Customer, I am grateful and thanks to the local everyone. Consultation of financial planning and real estate, Guests looking for properties, Please feel free to contact us. 担当者中島 博文年齢:40代業界経験:20年 不動産歴19年目になりました。地元密着で頑張っています。独立して15年目になります。お客様、地元の皆様のお陰と感謝しています。資金計画や不動産のご相談、物件をお探しのお客様、お気軽にご相談下さい。 | Contact お問い合せ先 | | TEL: 0800-603-3372 [Toll free] mobile phone ・ Also available from PHS Caller ID is not notified Please contact the "saw SUUMO (Sumo)" If it does not lead, If the real estate company TEL:0800-603-3372【通話料無料】携帯電話・PHSからもご利用いただけます 発信者番号は通知されません 「SUUMO(スーモ)を見た」と問い合わせください つながらない方、不動産会社の方は
| Building coverage, floor area ratio 建ぺい率・容積率 | | 80% ・ 150% 80%・150% | Time residents 入居時期 | | Three months after the contract 契約後3ヶ月 | Land of the right form 土地の権利形態 | | Ownership 所有権 | Structure and method of construction 構造・工法 | | Wooden three-story 木造3階建 | Use district 用途地域 | | One low-rise 1種低層 | Overview and notices その他概要・特記事項 | | Contact: Nakajima Hirofumi, Facilities: Public Water Supply, This sewage, City gas, Building confirmation number , Parking: car space 担当者:中島 博文、設備:公営水道、本下水、都市ガス、建築確認番号: 、駐車場:カースペース | Company profile 会社概要 | | <Mediation> Governor of Hyogo Prefecture (2) No. 010530 (with) Eleven Home Yubinbango654-0021 Kobe Suma-ku, Hirata-cho 1-1-14 <仲介>兵庫県知事(2)第010530号(有)イレブンホーム〒654-0021 兵庫県神戸市須磨区平田町1-1-14 |
Local appearance photo現地外観写真  Local (11 May 2013) Shooting
現地(2013年11月)撮影
Bathroom浴室  Local (11 May 2013) Shooting Light blue is wonderful
現地(2013年11月)撮影 水色が素敵です
Kitchenキッチン  It is unified pointed out in white. Back door is also likely to take advantage of in the trash storage.
白で統一され指摘です。勝手口もありゴミ保管にも活用しそうです。
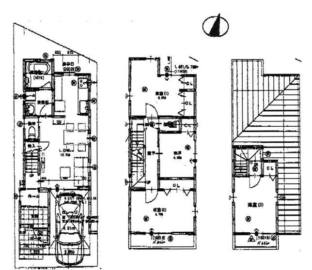
Floor plan間取り図  31,800,000 yen, 3LDK + S (storeroom), Land area 72.75 sq m , Building area 100.47 sq m
3180万円、3LDK+S(納戸)、土地面積72.75m2、建物面積100.47m2
Local appearance photo現地外観写真  Local (11 May 2013) Shooting
現地(2013年11月)撮影
Livingリビング  Indoor (11 May 2013) Shooting The room is bright because it is in the main a white
室内(2013年11月)撮影 白を主にしているため室内明るいです
Kitchenキッチン  Indoor (11 May 2013) Shooting
室内(2013年11月)撮影
Non-living roomリビング以外の居室  Indoor (11 May 2013) Shooting
室内(2013年11月)撮影
Entrance玄関  Local (11 May 2013) Shooting
現地(2013年11月)撮影
Wash basin, toilet洗面台・洗面所  View from the site (November 2013) Shooting
現地からの眺望(2013年11月)撮影
Toiletトイレ  Indoor (11 May 2013) Shooting It comes with a handle on the second floor cross
室内(2013年11月)撮影 2階クロスに柄がついてます
Local photos, including front road前面道路含む現地写真  Local (11 May 2013) Shooting
現地(2013年11月)撮影
Parking lot駐車場  Local (11 May 2013) Shooting
現地(2013年11月)撮影
Supermarketスーパー  699m to Super Maruhachi Takatori shop
スーパーマルハチ鷹取店まで699m
View photos from the dwelling unit住戸からの眺望写真  View from the site (November 2013) Shooting You can see a little sea from the third floor
現地からの眺望(2013年11月)撮影 3階から少し海が見えます
Otherその他  2 Kairoka
2階廊下
Non-living roomリビング以外の居室  Indoor (11 May 2013) Shooting There closet
室内(2013年11月)撮影 クローゼットあり
Wash basin, toilet洗面台・洗面所  Indoor (11 May 2013) Shooting Side side of the three-sided mirror housing
室内(2013年11月)撮影 3面鏡のサイド側は収納
Toiletトイレ  Indoor (11 May 2013) Shooting
室内(2013年11月)撮影
Convenience storeコンビニ  Seven-Eleven 398m to Kobe Suma Hirata-cho 5-chome
セブンイレブン神戸須磨平田町5丁目店まで398m
Otherその他  North side back door outside may have put space storeroom.
北側勝手口外は物置が置けるスペースがあります。
Location
|