2013October
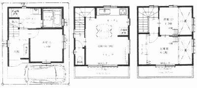
24.5 million yen, 3LDK, 68.5 sq m
New Homes » Kansai » Hyogo Prefecture » Kobe Suma-ku
 
| | Hyogo Prefecture, Kobe Suma-ku, 兵庫県神戸市須磨区 |
| Subway Seishin ・ Yamanote Line "Itayado" walk 6 minutes 地下鉄西神・山手線「板宿」歩6分 |
Features pickup 特徴ピックアップ | | Measures to conserve energy / Seismic fit / Immediate Available / 2 along the line more accessible / It is close to the city / System kitchen / A quiet residential area / Washbasin with shower / Otobasu / Warm water washing toilet seat / loft / The window in the bathroom / TV monitor interphone / Southwestward / Dish washing dryer / Three-story or more / City gas / Flat terrain / Readjustment land within 省エネルギー対策 /耐震適合 /即入居可 /2沿線以上利用可 /市街地が近い /システムキッチン /閑静な住宅地 /シャワー付洗面台 /オートバス /温水洗浄便座 /ロフト /浴室に窓 /TVモニタ付インターホン /南西向き /食器洗乾燥機 /3階建以上 /都市ガス /平坦地 /区画整理地内 | Price 価格 | | 24.5 million yen 2450万円 | Floor plan 間取り | | 3LDK 3LDK | Units sold 販売戸数 | | 1 units 1戸 | Total units 総戸数 | | 1 units 1戸 | Land area 土地面積 | | 39.89 sq m 39.89m2 | Building area 建物面積 | | 68.5 sq m 68.5m2 | Driveway burden-road 私道負担・道路 | | Nothing 無 | Completion date 完成時期(築年月) | | October 2013 2013年10月 | Address 住所 | | Hyogo Prefecture, Kobe Suma-ku, Teradacho 2 兵庫県神戸市須磨区寺田町2 | Traffic 交通 | | Subway Seishin ・ Yamanote Line "Itayado" walk 6 minutes Sanyo Electric Railway Main Line "Itayado" walk 7 minutes JR Sanyo Line "Shin-Nagata" walk 11 minutes 地下鉄西神・山手線「板宿」歩6分 山陽電鉄本線「板宿」歩7分 JR山陽本線「新長田」歩11分
| Related links 関連リンク | | [Related Sites of this company] 【この会社の関連サイト】 | Contact お問い合せ先 | | (Ltd.) TateKazu TEL: 0800-603-8485 [Toll free] mobile phone ・ Also available from PHS Caller ID is not notified Please contact the "saw SUUMO (Sumo)" If it does not lead, If the real estate company (株)建和TEL:0800-603-8485【通話料無料】携帯電話・PHSからもご利用いただけます 発信者番号は通知されません 「SUUMO(スーモ)を見た」と問い合わせください つながらない方、不動産会社の方は
| Building coverage, floor area ratio 建ぺい率・容積率 | | 60% ・ 200% 60%・200% | Time residents 入居時期 | | Immediate available 即入居可 | Land of the right form 土地の権利形態 | | Ownership 所有権 | Structure and method of construction 構造・工法 | | Wooden three-story 木造3階建 | Use district 用途地域 | | One dwelling 1種住居 | Other limitations その他制限事項 | | Quasi-fire zones 準防火地域 | Overview and notices その他概要・特記事項 | | Facilities: Public Water Supply, This sewage, City gas, Building confirmation number: BVJ-X13-10-0426 No., Parking: Garage 設備:公営水道、本下水、都市ガス、建築確認番号:BVJ-X13-10-0426号、駐車場:車庫 | Company profile 会社概要 | | <Mediation> Governor of Hyogo Prefecture (1) No. 011153 (Ltd.) TateKazu Yubinbango653-0842 Hyogo Nagata Ward, Kobe Mizukasadori 4-1-1-103 <仲介>兵庫県知事(1)第011153号(株)建和〒653-0842 兵庫県神戸市長田区水笠通4-1-1-103 |
Floor plan間取り図  24.5 million yen, 3LDK, Land area 39.89 sq m , Building area 68.5 sq m
2450万円、3LDK、土地面積39.89m2、建物面積68.5m2
Local appearance photo現地外観写真  Local (11 May 2013) Shooting
現地(2013年11月)撮影
Entrance玄関  Local (11 May 2013) Shooting
現地(2013年11月)撮影
Bathroom浴室  Indoor (11 May 2013) Shooting
室内(2013年11月)撮影
Kitchenキッチン  Indoor (11 May 2013) Shooting
室内(2013年11月)撮影
Toiletトイレ  Indoor (11 May 2013) Shooting
室内(2013年11月)撮影
Location
|