New Homes » Kansai » Hyogo Prefecture » Miki City
 
| | Hyogo Prefecture Miki 兵庫県三木市 |
| Shintetsu Ao Line "freshwater clam" walk 14 minutes 神戸電鉄粟生線「志染」歩14分 |
| Large-scale development in the park! 52 square meters of room! ! Solar power generation system installed ☆ Outdoor outlet standard equipment for EV ☆ Entrance door of the electrical locking smart control keys mounted ☆ Charm residence with insurance ☆ 大型開発団地内!ゆとりの52坪!!太陽光発電システム搭載☆EV用屋外コンセント標準装備☆電気施錠スマートコントロールキー搭載の玄関扉☆まもりすまい保険付☆ |
| Corresponding to the flat-35S, Solar power system, Pre-ground survey, Parking two Allowed, 2 along the line more accessible, Land 50 square meters or more, It is close to golf course, It is close to Tennis Court, Super close, System kitchen, Bathroom Dryer, Yang per good, All room storage, A quiet residential area, LDK15 tatami mats or more, Or more before road 6mese-style room, Shaping land, garden, Home garden, Washbasin with shower, Face-to-face kitchen, Barrier-free, Toilet 2 places, Bathroom 1 tsubo or more, 2-story, 2 or more sides balcony, South balcony, Double-glazing, Otobasu, Warm water washing toilet seat, Nantei, Underfloor Storage, The window in the bathroom, TV monitor interphone, Leafy residential area, Ventilation good, All room 6 tatami mats or more, Water filter, City gas, All rooms are two-sided lighting, Development subdivision in フラット35Sに対応、太陽光発電システム、地盤調査済、駐車2台可、2沿線以上利用可、土地50坪以上、ゴルフ場が近い、テニスコートが近い、スーパーが近い、システムキッチン、浴室乾燥機、陽当り良好、全居室収納、閑静な住宅地、LDK15畳以上、前道6m以上、和室、整形地、庭、家庭菜園、シャワー付洗面台、対面式キッチン、バリアフリー、トイレ2ヶ所、浴室1坪以上、2階建、2面以上バルコニー、南面バルコニー、複層ガラス、オートバス、温水洗浄便座、南庭、床下収納、浴室に窓、TVモニタ付インターホン、緑豊かな住宅地、通風良好、全居室6畳以上、浄水器、都市ガス、全室2面採光、開発分譲地内 |
Features pickup 特徴ピックアップ | | Corresponding to the flat-35S / Solar power system / Pre-ground survey / Parking two Allowed / 2 along the line more accessible / Land 50 square meters or more / It is close to golf course / It is close to Tennis Court / Super close / System kitchen / Bathroom Dryer / Yang per good / All room storage / A quiet residential area / LDK15 tatami mats or more / Or more before road 6m / Japanese-style room / Shaping land / garden / Home garden / Washbasin with shower / Face-to-face kitchen / Barrier-free / Toilet 2 places / Bathroom 1 tsubo or more / 2-story / 2 or more sides balcony / South balcony / Double-glazing / Otobasu / Warm water washing toilet seat / Nantei / Underfloor Storage / The window in the bathroom / TV monitor interphone / Leafy residential area / Ventilation good / All room 6 tatami mats or more / Water filter / City gas / All rooms are two-sided lighting / Development subdivision in フラット35Sに対応 /太陽光発電システム /地盤調査済 /駐車2台可 /2沿線以上利用可 /土地50坪以上 /ゴルフ場が近い /テニスコートが近い /スーパーが近い /システムキッチン /浴室乾燥機 /陽当り良好 /全居室収納 /閑静な住宅地 /LDK15畳以上 /前道6m以上 /和室 /整形地 /庭 /家庭菜園 /シャワー付洗面台 /対面式キッチン /バリアフリー /トイレ2ヶ所 /浴室1坪以上 /2階建 /2面以上バルコニー /南面バルコニー /複層ガラス /オートバス /温水洗浄便座 /南庭 /床下収納 /浴室に窓 /TVモニタ付インターホン /緑豊かな住宅地 /通風良好 /全居室6畳以上 /浄水器 /都市ガス /全室2面採光 /開発分譲地内 | Price 価格 | | 23.8 million yen 2380万円 | Floor plan 間取り | | 4LDK 4LDK | Units sold 販売戸数 | | 1 units 1戸 | Total units 総戸数 | | 2 units 2戸 | Land area 土地面積 | | 172.46 sq m (52.16 tsubo) (Registration) 172.46m2(52.16坪)(登記) | Building area 建物面積 | | 94.77 sq m (28.66 tsubo) (measured) 94.77m2(28.66坪)(実測) | Driveway burden-road 私道負担・道路 | | Nothing, North 6m width 無、北6m幅 | Completion date 完成時期(築年月) | | January 2014 2014年1月 | Address 住所 | | Hyogo Prefecture Miki Shijimichonakajiyugaoka 2 兵庫県三木市志染町中自由が丘2 | Traffic 交通 | | Shintetsu Ao Line "freshwater clam" walk 14 minutes Shintetsu Ao Line "Hironogorufujomae" walk 19 minutes Shintetsu Ao Line "Midorigaoka" walk 28 minutes 神戸電鉄粟生線「志染」歩14分 神戸電鉄粟生線「広野ゴルフ場前」歩19分 神戸電鉄粟生線「緑が丘」歩28分
| Related links 関連リンク | | [Related Sites of this company] 【この会社の関連サイト】 | Person in charge 担当者より | | Personnel Matsubara KenKiyoshi Age: 40 Daigyokai experience: splendid-turned from a three-year master BAR. Immature part will be covered by the own human force polished in brightness and Kyakushobai of inborn. Not a dream, We will consider the reality of my home purchase to help with full force. 担当者松原 憲清年齢:40代業界経験:3年BARのマスターからの華麗なる転身。未熟な部分は持前の明るさと客商売で磨き上げた独自の人間力でカバー致します。 夢ではなく、現実のマイホームご購入を全力でお手伝いさせて頂きます。 | Contact お問い合せ先 | | TEL: 0800-603-3475 [Toll free] mobile phone ・ Also available from PHS Caller ID is not notified Please contact the "saw SUUMO (Sumo)" If it does not lead, If the real estate company TEL:0800-603-3475【通話料無料】携帯電話・PHSからもご利用いただけます 発信者番号は通知されません 「SUUMO(スーモ)を見た」と問い合わせください つながらない方、不動産会社の方は
| Expenses 諸費用 | | Autonomous membership fee: 400 yen / Month, Residents' association Admission fee: 20,000 yen / Bulk 自治会費:400円/月、自治会 入会金:2万円/一括 | Building coverage, floor area ratio 建ぺい率・容積率 | | Fifty percent ・ Hundred percent 50%・100% | Time residents 入居時期 | | Three months after the contract 契約後3ヶ月 | Land of the right form 土地の権利形態 | | Ownership 所有権 | Structure and method of construction 構造・工法 | | Wooden 2-story (framing method) 木造2階建(軸組工法) | Use district 用途地域 | | One low-rise 1種低層 | Overview and notices その他概要・特記事項 | | The person in charge: Matsubara KenKiyoshi, Facilities: Public Water Supply, This sewage, City gas, Building confirmation number: Jukenkita Miki No. 25019, Parking: car space 担当者:松原 憲清、設備:公営水道、本下水、都市ガス、建築確認番号:住建北三木第25019号、駐車場:カースペース | Company profile 会社概要 | | <Mediation> Governor of Hyogo Prefecture (2) No. 010887 (with) good house Yubinbango673-0041 Akashi, Hyogo Prefecture Nishiakashiminami cho 2-18-16 <仲介>兵庫県知事(2)第010887号(有)よしはうす〒673-0041 兵庫県明石市西明石南町2-18-16 |
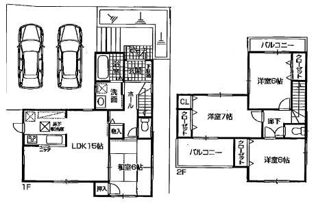
Floor plan間取り図  23.8 million yen, 4LDK, Land area 172.46 sq m , Building area 94.77 sq m
2380万円、4LDK、土地面積172.46m2、建物面積94.77m2
Local photos, including front road前面道路含む現地写真  Local (10 May 2013) Shooting
現地(2013年10月)撮影
 Rendering (appearance)
完成予想図(外観)
 Same specifications photo (bathroom)
同仕様写真(浴室)
 Same specifications photo (kitchen)
同仕様写真(キッチン)
Park公園  Jiyugaoka until Nakakoen 167m
自由が丘中公園まで167m
 Same specifications photos (Other introspection)
同仕様写真(その他内観)
Location
|