New Homes » Kansai » Hyogo Prefecture » Miki City
 
| | Hyogo Prefecture Miki 兵庫県三木市 |
| Shintetsu Ao Line "Ebisu" walk 14 minutes 神戸電鉄粟生線「恵比須」歩14分 |
Features pickup 特徴ピックアップ | | System kitchen / Bathroom Dryer / All room storage / LDK15 tatami mats or more / Face-to-face kitchen / Bathroom 1 tsubo or more / 2-story / The window in the bathroom / Dish washing dryer / Water filter システムキッチン /浴室乾燥機 /全居室収納 /LDK15畳以上 /対面式キッチン /浴室1坪以上 /2階建 /浴室に窓 /食器洗乾燥機 /浄水器 | Price 価格 | | 18,800,000 yen 1880万円 | Floor plan 間取り | | 4LDK 4LDK | Units sold 販売戸数 | | 2 units 2戸 | Total units 総戸数 | | 2 units 2戸 | Land area 土地面積 | | 145.58 sq m (registration) 145.58m2(登記) | Building area 建物面積 | | 98.01 sq m ~ 98.01 sq m (registration) 98.01m2 ~ 98.01m2(登記) | Completion date 完成時期(築年月) | | February 2014 schedule 2014年2月予定 | Address 住所 | | Hyogo Prefecture Miki Iwamiya 兵庫県三木市岩宮 | Traffic 交通 | | Shintetsu Ao Line "Ebisu" walk 14 minutes 神戸電鉄粟生線「恵比須」歩14分
| Person in charge 担当者より | | Rep Okamoto 担当者岡本 | Contact お問い合せ先 | | TEL: 0800-601-6313 [Toll free] mobile phone ・ Also available from PHS Caller ID is not notified Please contact the "saw SUUMO (Sumo)" If it does not lead, If the real estate company TEL:0800-601-6313【通話料無料】携帯電話・PHSからもご利用いただけます 発信者番号は通知されません 「SUUMO(スーモ)を見た」と問い合わせください つながらない方、不動産会社の方は
| Time residents 入居時期 | | Consultation 相談 | Land of the right form 土地の権利形態 | | Ownership 所有権 | Structure and method of construction 構造・工法 | | Wooden 2-story 木造2階建 | Use district 用途地域 | | One middle and high 1種中高 | Overview and notices その他概要・特記事項 | | Contact: Okamoto, Building confirmation number: No. Trust 1-2810 担当者:岡本、建築確認番号:第トラスト1-2810号 | Company profile 会社概要 | | <Mediation> Governor of Hyogo Prefecture (1) No. 350427 (Ltd.) Good line housing Yubinbango673-0404 Hyogo Prefecture Miki Omura 163 <仲介>兵庫県知事(1)第350427号(株)グッドラインハウジング〒673-0404 兵庫県三木市大村163 |
Local appearance photo現地外観写真  Local (11 May 2013) Shooting
現地(2013年11月)撮影
 Local (11 May 2013) Shooting
現地(2013年11月)撮影
 Local (11 May 2013) Shooting
現地(2013年11月)撮影
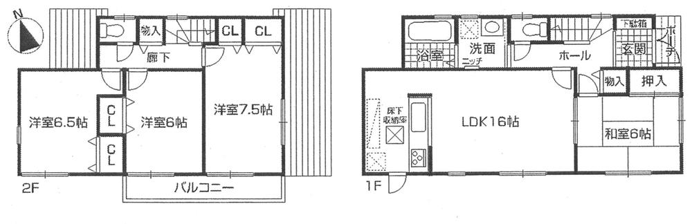
Floor plan間取り図  (No. 1 point), Price 18,800,000 yen, 4LDK, Land area 145.58 sq m , Building area 98.01 sq m
(1号地)、価格1880万円、4LDK、土地面積145.58m2、建物面積98.01m2
Local appearance photo現地外観写真  Local (11 May 2013) shooting local
現地(2013年11月)撮影現地
Floor plan間取り図  (No. 2 locations), Price 18,800,000 yen, 4LDK, Land area 145.58 sq m , Building area 98.01 sq m
(2号地)、価格1880万円、4LDK、土地面積145.58m2、建物面積98.01m2
Local appearance photo現地外観写真  Local (11 May 2013) Shooting
現地(2013年11月)撮影
Location
|