New Homes » Kansai » Hyogo Prefecture » Miki City
 
| | Hyogo Prefecture Miki 兵庫県三木市 |
| Shintetsu Ao Line "Ebisu" walk 3 minutes 神戸電鉄粟生線「恵比須」歩3分 |
Features pickup 特徴ピックアップ | | Parking two Allowed / It is close to golf course / Facing south / System kitchen / Bathroom Dryer / All room storage / Face-to-face kitchen / Bathroom 1 tsubo or more / 2-story / The window in the bathroom / Dish washing dryer / Water filter 駐車2台可 /ゴルフ場が近い /南向き /システムキッチン /浴室乾燥機 /全居室収納 /対面式キッチン /浴室1坪以上 /2階建 /浴室に窓 /食器洗乾燥機 /浄水器 | Price 価格 | | 19.3 million yen 1930万円 | Floor plan 間取り | | 4LDK 4LDK | Units sold 販売戸数 | | 1 units 1戸 | Total units 総戸数 | | 1 units 1戸 | Land area 土地面積 | | 119.05 sq m (registration) 119.05m2(登記) | Building area 建物面積 | | 91.52 sq m 91.52m2 | Driveway burden-road 私道負担・道路 | | Nothing, Southwest 4m width 無、南西4m幅 | Completion date 完成時期(築年月) | | March 2014 2014年3月 | Address 住所 | | Hyogo Prefecture Miki Otsuka 1 兵庫県三木市大塚1 | Traffic 交通 | | Shintetsu Ao Line "Ebisu" walk 3 minutes 神戸電鉄粟生線「恵比須」歩3分
| Person in charge 担当者より | | Rep Okamoto 担当者岡本 | Contact お問い合せ先 | | TEL: 0800-601-6313 [Toll free] mobile phone ・ Also available from PHS Caller ID is not notified Please contact the "saw SUUMO (Sumo)" If it does not lead, If the real estate company TEL:0800-601-6313【通話料無料】携帯電話・PHSからもご利用いただけます 発信者番号は通知されません 「SUUMO(スーモ)を見た」と問い合わせください つながらない方、不動産会社の方は
| Building coverage, floor area ratio 建ぺい率・容積率 | | Fifty percent ・ Hundred percent 50%・100% | Time residents 入居時期 | | Consultation 相談 | Land of the right form 土地の権利形態 | | Ownership 所有権 | Structure and method of construction 構造・工法 | | Wooden 2-story 木造2階建 | Use district 用途地域 | | One low-rise 1種低層 | Overview and notices その他概要・特記事項 | | Contact: Okamoto, Facilities: Public Water Supply, This sewage, City gas, Building confirmation number: Jukenkita Miki No. 25030, Parking: Garage 担当者:岡本、設備:公営水道、本下水、都市ガス、建築確認番号:住建北三木第25030号、駐車場:車庫 | Company profile 会社概要 | | <Mediation> Governor of Hyogo Prefecture (1) No. 350427 (Ltd.) Good line housing Yubinbango673-0404 Hyogo Prefecture Miki Omura 163 <仲介>兵庫県知事(1)第350427号(株)グッドラインハウジング〒673-0404 兵庫県三木市大村163 |
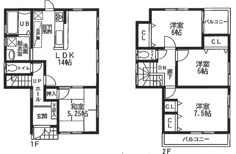
Floor plan間取り図  19.3 million yen, 4LDK, Land area 119.05 sq m , Building area 91.52 sq m
1930万円、4LDK、土地面積119.05m2、建物面積91.52m2
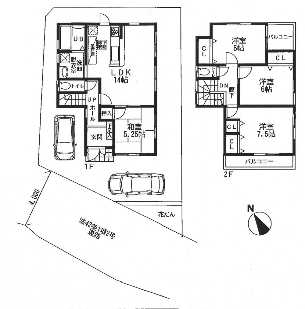
Compartment figure区画図  19.3 million yen, 4LDK, Land area 119.05 sq m , Building area 91.52 sq m
1930万円、4LDK、土地面積119.05m2、建物面積91.52m2
Same specifications photos (appearance)同仕様写真(外観)  The company example of construction (another property is)
同社施工例(別物件です)
 The company example of construction (another property is)
同社施工例(別物件です)
 The company example of construction (another property is)
同社施工例(別物件です)
 The company example of construction (another property is)
同社施工例(別物件です)
Location
|