New Homes » Kansai » Ibaraki Prefecture » Mito
 
| | Mito, Ibaraki Prefecture 茨城県水戸市 |
| JR Joban Line "Akatsuka" walk 8 minutes JR常磐線「赤塚」歩8分 |
| Pre-ground survey, Parking two Allowed, Energy-saving water heaters, Facing south, It is close to the city, Land 50 square meters or more, System kitchen, Bathroom Dryer, All room storage, Flat to the station, A quiet residential area, Storeroom 2 Pledge 地盤調査済、駐車2台可、省エネ給湯器、南向き、市街地が近い、土地50坪以上、システムキッチン、浴室乾燥機、全居室収納、駅まで平坦、閑静な住宅地、納戸2帖 |
| Akatsuka Station → 650m Ishikawa Elementary School → 1200m Ishikawa Junior High School → 1500m 赤塚駅→650m 石川小学校→1200m 石川中学校→1500m |
Features pickup 特徴ピックアップ | | Measures to conserve energy / Pre-ground survey / Parking two Allowed / Land 50 square meters or more / Energy-saving water heaters / It is close to the city / Facing south / System kitchen / Bathroom Dryer / All room storage / Flat to the station / A quiet residential area / LDK15 tatami mats or more / Around traffic fewer / Japanese-style room / Washbasin with shower / Face-to-face kitchen / Wide balcony / Toilet 2 places / Bathroom 1 tsubo or more / 2-story / South balcony / Double-glazing / High speed Internet correspondence / Warm water washing toilet seat / Nantei / Underfloor Storage / The window in the bathroom / TV monitor interphone / Water filter / Storeroom / All rooms are two-sided lighting / BS ・ CS ・ CATV / Flat terrain 省エネルギー対策 /地盤調査済 /駐車2台可 /土地50坪以上 /省エネ給湯器 /市街地が近い /南向き /システムキッチン /浴室乾燥機 /全居室収納 /駅まで平坦 /閑静な住宅地 /LDK15畳以上 /周辺交通量少なめ /和室 /シャワー付洗面台 /対面式キッチン /ワイドバルコニー /トイレ2ヶ所 /浴室1坪以上 /2階建 /南面バルコニー /複層ガラス /高速ネット対応 /温水洗浄便座 /南庭 /床下収納 /浴室に窓 /TVモニタ付インターホン /浄水器 /納戸 /全室2面採光 /BS・CS・CATV /平坦地 | Price 価格 | | 20.8 million yen 2080万円 | Floor plan 間取り | | 4LDK + S (storeroom) 4LDK+S(納戸) | Units sold 販売戸数 | | 1 units 1戸 | Total units 総戸数 | | 4 units 4戸 | Land area 土地面積 | | 165.3 sq m 165.3m2 | Building area 建物面積 | | 98.81 sq m 98.81m2 | Driveway burden-road 私道負担・道路 | | Nothing, North 4m width 無、北4m幅 | Completion date 完成時期(築年月) | | December 2013 2013年12月 | Address 住所 | | Mito, Ibaraki Prefecture Akatsuka 1 茨城県水戸市赤塚1 | Traffic 交通 | | JR Joban Line "Akatsuka" walk 8 minutes JR常磐線「赤塚」歩8分
| Related links 関連リンク | | [Related Sites of this company] 【この会社の関連サイト】 | Person in charge 担当者より | | The person in charge Kenji Yamaguchi Age: 40 Daigyokai beginner, I will do my best to like you find your desired property! ※ Night of Inquiry Ya, If you hurry, 090-1115-1911 Please call to. 担当者山口謙二年齢:40代業界初心者ですが、お客様の希望の物件が見つかる様に頑張ります!※夜間のお問い合わせや、お急ぎの方は 090-1115-1911 までお電話下さい。 | Contact お問い合せ先 | | TEL: 029-306-9478 Please inquire as "saw SUUMO (Sumo)" TEL:029-306-9478「SUUMO(スーモ)を見た」と問い合わせください | Building coverage, floor area ratio 建ぺい率・容積率 | | 60% ・ 200% 60%・200% | Time residents 入居時期 | | Consultation 相談 | Land of the right form 土地の権利形態 | | Ownership 所有権 | Structure and method of construction 構造・工法 | | Wooden 2-story (framing method) 木造2階建(軸組工法) | Use district 用途地域 | | Quasi-residence 準住居 | Overview and notices その他概要・特記事項 | | Contact: Kenji Yamaguchi, Facilities: Public Water Supply, This sewage, Individual LPG, Building confirmation number: No. 04529-1, Parking: car space 担当者:山口謙二、設備:公営水道、本下水、個別LPG、建築確認番号:04529-1号、駐車場:カースペース | Company profile 会社概要 | | <Mediation> Minister of Land, Infrastructure and Transport (1) No. 008352 (Ltd.) ready-built Information Center Mito shop Yubinbango310-0851 Mito, Ibaraki Prefecture Chinami-cho, 2475 2F <仲介>国土交通大臣(1)第008352号(株)建売情報センター水戸店〒310-0851 茨城県水戸市千波町2475 2F |
Rendering (appearance)完成予想図(外観) ![Rendering (appearance). [1 Building] Rendering](/images/ibaraki/mito/b1fe560088.jpg) [1 Building] Rendering
【1号棟】完成予想図
Local appearance photo現地外観写真 ![Local appearance photo. [1 Building] Local (September 2013) Shooting](/images/ibaraki/mito/f808d20081.jpg) [1 Building] Local (September 2013) Shooting
【1号棟】現地(2013年9月)撮影
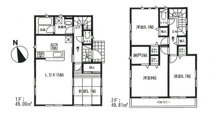
Floor plan間取り図 ![Floor plan. 20.8 million yen, 4LDK + S (storeroom), Land area 165.3 sq m , Building area 98.81 sq m [1 Building] Floor plan](/images/ibaraki/mito/f808d20086.jpg) 20.8 million yen, 4LDK + S (storeroom), Land area 165.3 sq m , Building area 98.81 sq m [1 Building] Floor plan
2080万円、4LDK+S(納戸)、土地面積165.3m2、建物面積98.81m2 【1号棟】間取り図
Local appearance photo現地外観写真  Local (September 2013) Shooting
現地(2013年9月)撮影
Same specifications photos (living)同仕様写真(リビング)  Living
リビング
 Same specifications photo (bathroom)
同仕様写真(浴室)
Same specifications photo (kitchen)同仕様写真(キッチン)  Same specifications
同仕様
Toiletトイレ  There are two places
2ヶ所あり
Local photos, including front road前面道路含む現地写真  Local (September 2013) Shooting
現地(2013年9月)撮影
Station駅  650m to Akatsuka Station
赤塚駅まで650m
Same specifications photos (Other introspection)同仕様写真(その他内観)  Japanese style room
和室
Compartment figure区画図  20.8 million yen, 4LDK + S (storeroom), Land area 165.3 sq m , Building area 98.81 sq m
2080万円、4LDK+S(納戸)、土地面積165.3m2、建物面積98.81m2
Drug storeドラッグストア  Tsuruha 800m to drag
ツルハドラックまで800m
Supermarketスーパー  Until the York-Benimaru 850m
ヨークベニマルまで850m
Location
|