New Homes » Kansai » Ibaraki Prefecture » Toride
 
| | Ibaraki Prefecture Toride 茨城県取手市 |
| JR Joban Line "handle" walk 15 minutes JR常磐線「取手」歩15分 |
| The history and art of the city handle. You can commute missing a safe Hakusan shopping street from JR Toride Station. Also, Location becomes the south road, Is a positive per Shanshan. 歴史と芸術の街取手。JR取手駅から安全な白山商店街を抜けて通勤できます。また、立地は南面道路になり、陽当りサンサンです。 |
| South road, Land 50 square meters or more, Yang per good, Our 20-year warranty 南道路、土地50坪以上、陽当り良好、当社20年保証 |
Features pickup 特徴ピックアップ | | Parking two Allowed / Land 50 square meters or more / Yang per good / Corner lot / Starting station 駐車2台可 /土地50坪以上 /陽当り良好 /角地 /始発駅 | Price 価格 | | 24,900,000 yen 2490万円 | Floor plan 間取り | | 4LDK 4LDK | Units sold 販売戸数 | | 1 units 1戸 | Land area 土地面積 | | 165.3 sq m (50.00 tsubo) (Registration) 165.3m2(50.00坪)(登記) | Building area 建物面積 | | 99.36 sq m (30.05 tsubo) (Registration) 99.36m2(30.05坪)(登記) | Driveway burden-road 私道負担・道路 | | Nothing 無 | Completion date 完成時期(築年月) | | 4 months after the contract 契約後4ヶ月 | Address 住所 | | Ibaraki Prefecture Toride Inodai 4 茨城県取手市井野台4 | Traffic 交通 | | JR Joban Line "handle" walk 15 minutes Jōsō Line "handle west" walk 5 minutes JR常磐線「取手」歩15分 関東鉄道常総線「西取手」歩5分
| Related links 関連リンク | | [Related Sites of this company] 【この会社の関連サイト】 | Person in charge 担当者より | | Person in charge of real-estate and building FP Aoki Hiroyuki Age: 40 Daigyokai experience: This is Aoki of 22-year senior managing director. Started along TX line, Detailed area of Ibaraki Prefecture, south region, environment, Educational institutions, Ground such as, Please let me know the realistic information to our company with the founding years of the 70 years. There is surely good encounter. 担当者宅建FP青木 弘行年齢:40代業界経験:22年専務の青木です。TX沿線を始め、茨城県南地域の詳細な地域性、環境、教育施設、地盤など、リアルな情報を70年の創業年数を持つ当社までご一報下さい。きっと良い出会いがあります。 | Contact お問い合せ先 | | TEL: 0800-603-1870 [Toll free] mobile phone ・ Also available from PHS Caller ID is not notified Please contact the "saw SUUMO (Sumo)" If it does not lead, If the real estate company TEL:0800-603-1870【通話料無料】携帯電話・PHSからもご利用いただけます 発信者番号は通知されません 「SUUMO(スーモ)を見た」と問い合わせください つながらない方、不動産会社の方は
| Building coverage, floor area ratio 建ぺい率・容積率 | | 60% ・ 200% 60%・200% | Time residents 入居時期 | | 4 months after the contract 契約後4ヶ月 | Land of the right form 土地の権利形態 | | Ownership 所有権 | Structure and method of construction 構造・工法 | | Wooden 2-story (framing method) 木造2階建(軸組工法) | Construction 施工 | | Nichiei Home Co., Ltd. 日栄ホーム(株) | Overview and notices その他概要・特記事項 | | Contact: Aoki Hiroyuki, Facilities: Public Water Supply, This sewage, Individual LPG, Building confirmation number: 22CA07-0003S, Parking: car space 担当者:青木 弘行、設備:公営水道、本下水、個別LPG、建築確認番号:22CA07-0003S、駐車場:カースペース | Company profile 会社概要 | | <Seller> Minister of Land, Infrastructure and Transport (4) No. 005661 (Corporation) metropolitan area real estate Fair Trade Council member Nichiei Shoji Co., Ltd. Yubinbango303-0031 Ibaraki Prefecture Joso City Mitsukaido Yamada 4663 <売主>国土交通大臣(4)第005661号(公社)首都圏不動産公正取引協議会会員 日栄商事(株)〒303-0031 茨城県常総市水海道山田町4663 |
 Rendering (appearance)
完成予想図(外観)
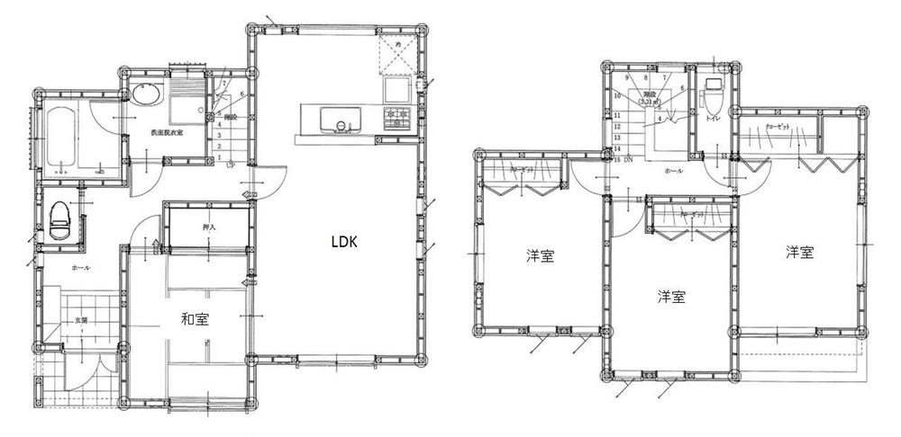
Floor plan間取り図  24,900,000 yen, 4LDK, Land area 165.3 sq m , Building area 99.36 sq m
2490万円、4LDK、土地面積165.3m2、建物面積99.36m2
 Kitchen
キッチン
 Living
リビング
 Bathroom
浴室
 Local photos, including front road
前面道路含む現地写真
Primary school小学校  Terahara until elementary school 244m
寺原小学校まで244m
Junior high school中学校  942m to handle the second junior high school
取手第二中学校まで942m
Supermarketスーパー  294m to Super Oh Mother
スーパーおっ母さんまで294m
Station駅  1282m to Toride Station
取手駅まで1282m
Supermarketスーパー  Until Masuda 1749m
マスダまで1749m
Drug storeドラッグストア  Until Kuramochi 1090m
クラモチまで1090m
Government office役所  1077m to handle city hall
取手市役所まで1077m
Kindergarten ・ Nursery幼稚園・保育園  466m to Hakusan nursery
白山保育園まで466m
Other Environmental Photoその他環境写真  Ribbon 1400m until the handle (SEIYU)
りぼん取手(SEIYU)まで1400m
Otherその他  Please leave also to after-sales maintenance after your move. If after purchase also visit the company, Looks knows face, You can feel free to contact us, Versatile. We wanted to continue to be in such company.
お引越し後のアフターメンテナンスまでもお任せ下さい。購入後も会社を訪れれば、知った顔が見え、気軽に相談ができ、融通が利く。私達はそんな会社であり続けたいと思っています。
 Rushed to the site and there is a contact from customers who handed over a house. While in the care of two of grasp and understanding of your feelings of building, We will respond on a case-by-case basis.
家を引き渡したお客様から連絡があると現地に急行。建物の把握とお客様の気持ちの理解という2つを大切にしながら、臨機応変に対応させて頂きます。
Location
|