New Homes » Kansai » Ibaraki Prefecture » Toride
 
| | Ibaraki Prefecture Toride 茨城県取手市 |
| Jōsō Line "Yumemino" walk 3 minutes 関東鉄道常総線「ゆめみ野」歩3分 |
| Located in the middle of the 3 minutes !! JR Toride Station and TX Moriya Station walk to Shintoride Yumemino Station, Good access to Tokyo. This place is a great view and the open feeling of the hill. 新取手ゆめみ野駅まで徒歩3分!!JR取手駅とTX守谷駅の中間に位置し、都内へのアクセス良好です。本地は高台で素晴らしい眺望と開放感です。 |
| Land 50 square meters or more, City gas, Vibration Control, Parking two Allowed, Our 20-year warranty 土地50坪以上、都市ガス、制震、駐車2台可、当社20年保証 |
Features pickup 特徴ピックアップ | | Vibration Control ・ Seismic isolation ・ Earthquake resistant / Parking two Allowed / Land 50 square meters or more / City gas 制震・免震・耐震 /駐車2台可 /土地50坪以上 /都市ガス | Price 価格 | | 18.9 million yen 1890万円 | Floor plan 間取り | | 4LDK 4LDK | Units sold 販売戸数 | | 1 units 1戸 | Land area 土地面積 | | 178.23 sq m (registration) 178.23m2(登記) | Building area 建物面積 | | 99.36 sq m (registration) 99.36m2(登記) | Driveway burden-road 私道負担・道路 | | Nothing 無 | Completion date 完成時期(築年月) | | 4 months after the contract 契約後4ヶ月 | Address 住所 | | Ibaraki Prefecture Toride Nonoi 茨城県取手市野々井 | Traffic 交通 | | Jōsō Line "Yumemino" walk 3 minutes 関東鉄道常総線「ゆめみ野」歩3分
| Related links 関連リンク | | [Related Sites of this company] 【この会社の関連サイト】 | Person in charge 担当者より | | Person in charge of real-estate and building FP Aoki Hiroyuki Age: 40 Daigyokai experience: This is Aoki of 22-year senior managing director. Started along TX line, Detailed area of Ibaraki Prefecture, south region, environment, Educational institutions, Ground such as, Please let me know the realistic information to our company with the founding years of the 70 years. There is surely good encounter. 担当者宅建FP青木 弘行年齢:40代業界経験:22年専務の青木です。TX沿線を始め、茨城県南地域の詳細な地域性、環境、教育施設、地盤など、リアルな情報を70年の創業年数を持つ当社までご一報下さい。きっと良い出会いがあります。 | Contact お問い合せ先 | | TEL: 0800-603-1870 [Toll free] mobile phone ・ Also available from PHS Caller ID is not notified Please contact the "saw SUUMO (Sumo)" If it does not lead, If the real estate company TEL:0800-603-1870【通話料無料】携帯電話・PHSからもご利用いただけます 発信者番号は通知されません 「SUUMO(スーモ)を見た」と問い合わせください つながらない方、不動産会社の方は
| Building coverage, floor area ratio 建ぺい率・容積率 | | 60% ・ 200% 60%・200% | Time residents 入居時期 | | 4 months after the contract 契約後4ヶ月 | Land of the right form 土地の権利形態 | | Ownership 所有権 | Structure and method of construction 構造・工法 | | Wooden 2-story 木造2階建 | Construction 施工 | | Nichiei Home Co., Ltd. 日栄ホーム(株) | Overview and notices その他概要・特記事項 | | Contact: Aoki Hiroyuki, Facilities: Public Water Supply, City gas, Building confirmation number: 25CA07-0046S, Parking: car space 担当者:青木 弘行、設備:公営水道、都市ガス、建築確認番号:25CA07-0046S、駐車場:カースペース | Company profile 会社概要 | | <Seller> Minister of Land, Infrastructure and Transport (4) No. 005661 (Corporation) metropolitan area real estate Fair Trade Council member Nichiei Shoji Co., Ltd. Yubinbango303-0031 Ibaraki Prefecture Joso City Mitsukaido Yamada 4663 <売主>国土交通大臣(4)第005661号(公社)首都圏不動産公正取引協議会会員 日栄商事(株)〒303-0031 茨城県常総市水海道山田町4663 |
 Rendering (appearance)
完成予想図(外観)
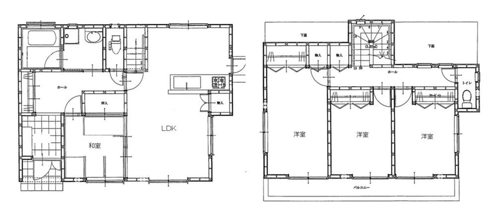
Floor plan間取り図  18.9 million yen, 4LDK, Land area 178.23 sq m , Building area 99.36 sq m
1890万円、4LDK、土地面積178.23m2、建物面積99.36m2
 Same specifications photos (living)
同仕様写真(リビング)
 Same specifications photo (bathroom)
同仕様写真(浴室)
 Same specifications photo (kitchen)
同仕様写真(キッチン)
 Local photos, including front road
前面道路含む現地写真
Station駅  Until Yumemino 200m
ゆめみ野まで200m
Primary school小学校  Nagayama to elementary school 650m
永山小学校まで650m
Junior high school中学校  Nagayama 470m until junior high school
永山中学校まで470m
Home centerホームセンター  1200m to Jason
ジェーソンまで1200m
Hospital病院  600m to Health Medical Center Medical Association Hospital
保健医療センター医師会病院まで600m
Drug storeドラッグストア  Until Seimusu 1200m
セイムスまで1200m
Otherその他  Precisely because its integrated system, Please leave also to after-sales maintenance after your move. If after purchase also visit the company, Looks knows face, You can feel free to contact us, Versatile. We wanted to continue to be in such company.
自社一貫体制だからこそ、お引越し後のアフターメンテナンスまでもお任せ下さい。購入後も会社を訪れれば、知った顔が見え、気軽に相談ができ、融通が利く。私達はそんな会社であり続けたいと思っています。
 Rushed to the site and there is a contact from customers who handed over a house. While in the care of two of grasp and understanding of your feelings of building, We will respond on a case-by-case basis.
家を引き渡したお客様から連絡があると現地に急行。建物の把握とお客様の気持ちの理解という2つを大切にしながら、臨機応変に対応させて頂きます。
Location
|