New Homes » Kansai » Ibaraki Prefecture » Tsuchiura
 
| | Tsuchiura, Ibaraki Prefecture 茨城県土浦市 |
| JR Joban Line "Tsuchiura" walk 12 minutes JR常磐線「土浦」歩12分 |
| Parking two Allowed, It is close to the city, Facing south, System kitchen, Bathroom Dryer, Yang per good, Flat to the stationese-style room, Starting station, Shaping land, Washbasin with shower, Face-to-face kitchen, Toilet 2 places, Bathroom 1 Tsubo以 駐車2台可、市街地が近い、南向き、システムキッチン、浴室乾燥機、陽当り良好、駅まで平坦、和室、始発駅、整形地、シャワー付洗面台、対面式キッチン、トイレ2ヶ所、浴室1坪以 |
| Parking two Allowed, It is close to the city, Facing south, System kitchen, Bathroom Dryer, Yang per good, Flat to the stationese-style room, Starting station, Shaping land, Washbasin with shower, Face-to-face kitchen, Toilet 2 places, Bathroom 1 tsubo or more, 2-story, South balcony, Double-glazing, Zenshitsuminami direction, Otobasu, TV monitor interphone, Flat terrain 駐車2台可、市街地が近い、南向き、システムキッチン、浴室乾燥機、陽当り良好、駅まで平坦、和室、始発駅、整形地、シャワー付洗面台、対面式キッチン、トイレ2ヶ所、浴室1坪以上、2階建、南面バルコニー、複層ガラス、全室南向き、オートバス、TVモニタ付インターホン、平坦地 |
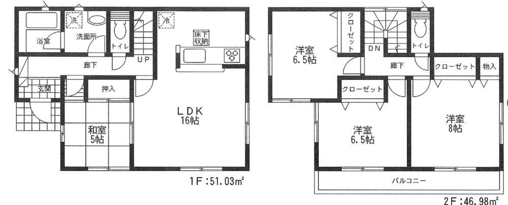
Features pickup 特徴ピックアップ | | Parking two Allowed / It is close to the city / Facing south / System kitchen / Bathroom Dryer / Yang per good / Flat to the station / Japanese-style room / Starting station / Shaping land / Washbasin with shower / Face-to-face kitchen / Toilet 2 places / Bathroom 1 tsubo or more / 2-story / South balcony / Double-glazing / Zenshitsuminami direction / Otobasu / TV monitor interphone / Flat terrain 駐車2台可 /市街地が近い /南向き /システムキッチン /浴室乾燥機 /陽当り良好 /駅まで平坦 /和室 /始発駅 /整形地 /シャワー付洗面台 /対面式キッチン /トイレ2ヶ所 /浴室1坪以上 /2階建 /南面バルコニー /複層ガラス /全室南向き /オートバス /TVモニタ付インターホン /平坦地 | Price 価格 | | 23.8 million yen 2380万円 | Floor plan 間取り | | 4LDK 4LDK | Units sold 販売戸数 | | 1 units 1戸 | Land area 土地面積 | | 162.8 sq m 162.8m2 | Building area 建物面積 | | 98.01 sq m (measured) 98.01m2(実測) | Driveway burden-road 私道負担・道路 | | Nothing, South 4.5m width 無、南4.5m幅 | Completion date 完成時期(築年月) | | January 2014 2014年1月 | Address 住所 | | Tsuchiura, Ibaraki Prefecture Sakuramachi 4 茨城県土浦市桜町4 | Traffic 交通 | | JR Joban Line "Tsuchiura" walk 12 minutes JR常磐線「土浦」歩12分
| Person in charge 担当者より | | Person in charge of real-estate and building Morita From the help of the wealth his own man My Home Purchase, Land you are not using ・ Up to the sale and the effective use of building, I will my best to help you as you are able to satisfy our customers as a real estate expert. We are looking forward to hearing from you. 担当者宅建森田 富己男マイホーム購入のお手伝いから、使用していない土地・建物の売却や有効利用に至るまで、不動産の専門家としてお客様に満足して頂けるよう精一杯お手伝いをさせて頂きます。ご連絡お待ちしております。 | Contact お問い合せ先 | | TEL: 0800-603-1533 [Toll free] mobile phone ・ Also available from PHS Caller ID is not notified Please contact the "saw SUUMO (Sumo)" If it does not lead, If the real estate company TEL:0800-603-1533【通話料無料】携帯電話・PHSからもご利用いただけます 発信者番号は通知されません 「SUUMO(スーモ)を見た」と問い合わせください つながらない方、不動産会社の方は
| Building coverage, floor area ratio 建ぺい率・容積率 | | 80% ・ 271 percent 80%・271% | Time residents 入居時期 | | January 2014 2014年1月 | Land of the right form 土地の権利形態 | | Ownership 所有権 | Structure and method of construction 構造・工法 | | Wooden 2-story 木造2階建 | Use district 用途地域 | | Residential 近隣商業 | Overview and notices その他概要・特記事項 | | Contact: Morita Wealth his own man, Facilities: Public Water Supply, This sewage, Individual LPG, Building confirmation number: No. H25SHC114653, Parking: car space 担当者:森田 富己男、設備:公営水道、本下水、個別LPG、建築確認番号:第H25SHC114653号、駐車場:カースペース | Company profile 会社概要 | | <Mediation> Ibaraki Governor (10) first 002,559 GoIssei Shoji Co., Ltd. Tsuchiura branch Yubinbango300-0053 Tsuchiura, Ibaraki Prefecture Manabeshin cho 20-34 <仲介>茨城県知事(10)第002559号一誠商事(株)土浦支店〒300-0053 茨城県土浦市真鍋新町20-34 |
Floor plan間取り図  23.8 million yen, 4LDK, Land area 162.8 sq m , Building area 98.01 sq m
2380万円、4LDK、土地面積162.8m2、建物面積98.01m2
 Local appearance photo
現地外観写真
 Local photos, including front road
前面道路含む現地写真
Shopping centreショッピングセンター  Perch until Tsuchiura 1011m
ペルチ土浦まで1011m
Supermarketスーパー  1173m to the Co-op store Tsuchiura
コープつちうら店まで1173m
Convenience storeコンビニ  375m to the Coco store Omachihigashi shop
ココストア大町東店まで375m
Home centerホームセンター  Royal Home Center 1094m until Tsuchiura shop
ロイヤルホームセンター土浦店まで1094m
Junior high school中学校  968m until Tsuchiura Municipal Tsuchiura first junior high school
土浦市立土浦第一中学校まで968m
Primary school小学校  823m until Tsuchiura Municipal Tsuchiura Elementary School
土浦市立土浦小学校まで823m
Kindergarten ・ Nursery幼稚園・保育園  568m until Tsuchiura Our Lady kindergarten
土浦聖母幼稚園まで568m
Hospital病院  National Hospital Organization Kasumigaura 1313m to Medical Center
独立行政法人国立病院機構霞ヶ浦医療センターまで1313m
Government office役所  1239m until Tsuchiura City Hall
土浦市役所まで1239m
Location
|