New Homes » Kansai » Ibaraki Prefecture » Tsukuba City
 
| | Tsukuba, Ibaraki Prefecture 茨城県つくば市 |
| Tsukuba Express "green" car 2.2km つくばエクスプレス「みどりの」車2.2km |
| 2.3km from TX Midorino Station. In rich natural environment, Ibaraki Prefecture Sakura name Jing Fukuoka Sekisakura park is near. Walk is a 3-minute. TXみどりの駅より2.3km。豊かな自然環境で、近くには茨城県桜名景福岡堰桜公園。徒歩3分です。 |
| Siemens south road, Yang per good, Land 60 square meters or more, Our 20-year warranty 南側道路面す、陽当り良好、土地60坪以上、当社20年保証 |
Features pickup 特徴ピックアップ | | Parking two Allowed / Land 50 square meters or more / System kitchen / Yang per good / Bathroom 1 tsubo or more / Warm water washing toilet seat / Underfloor Storage / Walk-in closet 駐車2台可 /土地50坪以上 /システムキッチン /陽当り良好 /浴室1坪以上 /温水洗浄便座 /床下収納 /ウォークインクロゼット | Price 価格 | | 21.5 million yen 2150万円 | Floor plan 間取り | | 4LDK 4LDK | Units sold 販売戸数 | | 1 units 1戸 | Land area 土地面積 | | 200.2 sq m (60.56 tsubo) (Registration) 200.2m2(60.56坪)(登記) | Building area 建物面積 | | 92.74 sq m (28.05 tsubo) (measured) 92.74m2(28.05坪)(実測) | Driveway burden-road 私道負担・道路 | | Nothing, Southwest 5.4m width 無、南西5.4m幅 | Completion date 完成時期(築年月) | | 4 months after the contract 契約後4ヶ月 | Address 住所 | | Tsukuba, Ibaraki Prefecture Mase 茨城県つくば市真瀬 | Traffic 交通 | | Tsukuba Express "green" car 2.2km Tsukuba Express "Tsukuba" car 7.8km つくばエクスプレス「みどりの」車2.2km つくばエクスプレス「つくば」車7.8km
| Related links 関連リンク | | [Related Sites of this company] 【この会社の関連サイト】 | Person in charge 担当者より | | Person in charge of real-estate and building FP Aoki Hiroyuki Age: 40 Daigyokai experience: This is Aoki of 22-year senior managing director. Including along TX line, Detailed area of Ibaraki Prefecture, south region, environment, Educational institutions, Ground such as, Please let me know the realistic information to our company with the founding years of the 70 years. There is surely good encounter. 担当者宅建FP青木 弘行年齢:40代業界経験:22年専務の青木です。TX沿線をはじめ、茨城県南地域の詳細な地域性、環境、教育施設、地盤など、リアルな情報を70年の創業年数を持つ当社までご一報ください。きっと良い出会いがあります。 | Contact お問い合せ先 | | TEL: 0800-603-1873 [Toll free] mobile phone ・ Also available from PHS Caller ID is not notified Please contact the "saw SUUMO (Sumo)" If it does not lead, If the real estate company TEL:0800-603-1873【通話料無料】携帯電話・PHSからもご利用いただけます 発信者番号は通知されません 「SUUMO(スーモ)を見た」と問い合わせください つながらない方、不動産会社の方は
| Building coverage, floor area ratio 建ぺい率・容積率 | | 60% ・ 200% 60%・200% | Time residents 入居時期 | | 4 months after the contract 契約後4ヶ月 | Land of the right form 土地の権利形態 | | Ownership 所有権 | Structure and method of construction 構造・工法 | | Wooden 2-story 木造2階建 | Construction 施工 | | Nichiei Home Co., Ltd. 日栄ホーム(株) | Use district 用途地域 | | One low-rise 1種低層 | Overview and notices その他概要・特記事項 | | Contact: Aoki Hiroyuki, Facilities: Well, Centralized septic tank, Individual LPG, Building confirmation number: 21CA08-0424S, Parking: car space 担当者:青木 弘行、設備:井戸、集中浄化槽、個別LPG、建築確認番号:21CA08-0424S、駐車場:カースペース | Company profile 会社概要 | | <Seller> Minister of Land, Infrastructure and Transport (4) No. 005661 (Corporation) metropolitan area real estate Fair Trade Council member Nichiei Shoji Co., Ltd. Ryugasaki branch Yubinbango301-0043 Ibaraki Prefecture Ryugasaki City, pine needle 5-10-1 <売主>国土交通大臣(4)第005661号(公社)首都圏不動産公正取引協議会会員 日栄商事(株)龍ヶ崎支店〒301-0043 茨城県龍ケ崎市松葉5-10-1 |
 Rendering (appearance)
完成予想図(外観)
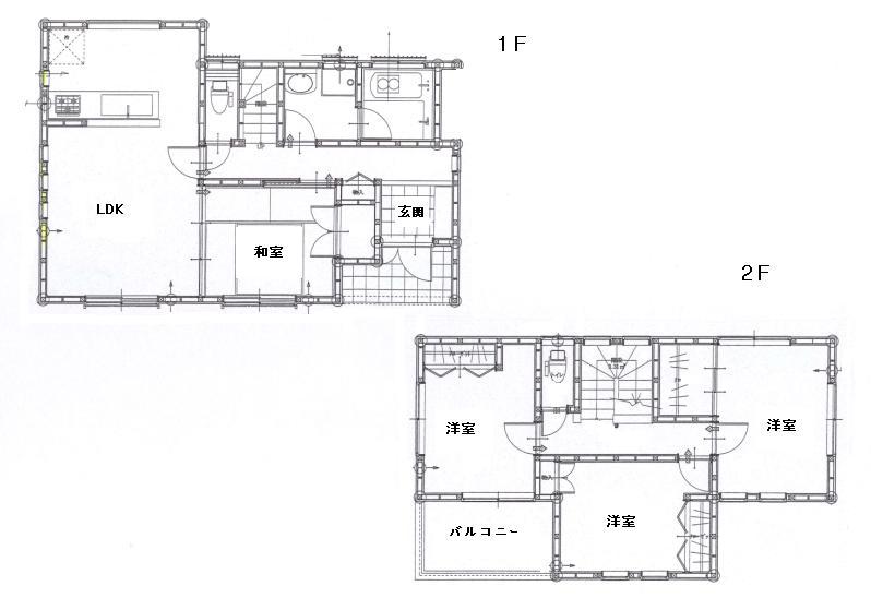
Floor plan間取り図  21.5 million yen, 4LDK, Land area 200.2 sq m , Building area 92.74 sq m
2150万円、4LDK、土地面積200.2m2、建物面積92.74m2
Same specifications photos (living)同仕様写真(リビング)  Same specifications
同仕様
Same specifications photo (bathroom)同仕様写真(浴室)  Same specifications
同仕様
Same specifications photo (kitchen)同仕様写真(キッチン)  Same specifications
同仕様
 Local photos, including front road
前面道路含む現地写真
Supermarketスーパー  Kasumi 2431m until the green in front of the station shop
カスミみどりの駅前店まで2431m
Convenience storeコンビニ  1096m until the Seven-Eleven Tsukuba Mase shop
セブンイレブンつくば真瀬店まで1096m
Drug storeドラッグストア  Uerushia TsukubaMidori 2575m to the shop
ウエルシアつくばみどりの店まで2575m
Post office郵便局  Mase 1367m until the post office
真瀬郵便局まで1367m
Bank銀行  2308m to Tsukuba Bank green branch
筑波銀行みどりの支店まで2308m
Park公園  638m to Fukuoka weir Sakura Park
福岡堰さくら公園まで638m
Hospital病院  Iizumi until the dental clinic 1135m
飯泉歯科医院まで1135m
Otherその他  Precisely because its integrated system, Please leave also to after-sales maintenance of after delivery. If after purchase also visit the company, Looks knows face, You can feel free to contact us, Versatile. We wanted to continue to be in such company.
自社一貫体制だからこそ、お引き渡し後のアフターメンテナンスまでもお任せ下さい。購入後も会社を訪れれば、知った顔が見え、気軽に相談ができ、融通が利く。私達はそんな会社であり続けたいと思っています。
 Rushed to the site and there is a contact from customers who handed over a house. While in the care of two of grasp and understanding of your feelings of building, We will respond on a case-by-case basis.
家を引き渡したお客様から連絡があると現地に急行。建物の把握とお客様の気持ちの理解という2つを大切にしながら、臨機応変に対応させて頂きます。
Location
|