New Homes » Kansai » Ibaraki Prefecture » Tsukuba City
 
| | Tsukuba, Ibaraki Prefecture 茨城県つくば市 |
| Tsukuba Express "Tsukuba" car 2.2km つくばエクスプレス「つくば」車2.2km |
| This is the area which has the rich countryside and the urban functions. All sections 300 sq m more than. The garden is also spacious! Parks and cafes near the walk course, Restaurant, Hospitals and super, It is equipped such as elementary and junior high schools 豊かな田園風景と都市機能を合わせ持ったエリアです。全区画300m2超。お庭も広々!近くのお散歩コースには公園やカフェ、レストラン、病院やスーパー、小中学校などが揃っています |
| Parking two Allowed, Land 50 square meters or more, Yang per good, Idyll, 2-story, Our 20-year warranty 駐車2台可、土地50坪以上、陽当り良好、田園風景、2階建、当社20年保証 |
Features pickup 特徴ピックアップ | | Parking two Allowed / Land 50 square meters or more / Yang per good / Idyll / 2-story 駐車2台可 /土地50坪以上 /陽当り良好 /田園風景 /2階建 | Price 価格 | | 32,800,000 yen 3280万円 | Floor plan 間取り | | 4LDK 4LDK | Units sold 販売戸数 | | 1 units 1戸 | Land area 土地面積 | | 300.01 sq m (90.75 tsubo) (Registration) 300.01m2(90.75坪)(登記) | Building area 建物面積 | | 99.36 sq m (30.05 tsubo) (Registration) 99.36m2(30.05坪)(登記) | Driveway burden-road 私道負担・道路 | | Nothing 無 | Completion date 完成時期(築年月) | | 4 months after the contract 契約後4ヶ月 | Address 住所 | | Tsukuba, Ibaraki Prefecture pine tree 茨城県つくば市松野木 | Traffic 交通 | | Tsukuba Express "Tsukuba" car 2.2km つくばエクスプレス「つくば」車2.2km
| Related links 関連リンク | | [Related Sites of this company] 【この会社の関連サイト】 | Person in charge 担当者より | | Person in charge of real-estate and building FP Aoki Hiroyuki Age: 40 Daigyokai experience: This is Aoki of 22-year senior managing director. Started along TX line, Detailed area of Ibaraki Prefecture, south region, environment, Educational institutions, Ground such as, Please let me know the realistic information to our company with the founding years of the 70 years. There is surely good encounter. 担当者宅建FP青木 弘行年齢:40代業界経験:22年専務の青木です。TX沿線を始め、茨城県南地域の詳細な地域性、環境、教育施設、地盤など、リアルな情報を70年の創業年数を持つ当社までご一報下さい。きっと良い出会いがあります。 | Contact お問い合せ先 | | TEL: 0800-603-1870 [Toll free] mobile phone ・ Also available from PHS Caller ID is not notified Please contact the "saw SUUMO (Sumo)" If it does not lead, If the real estate company TEL:0800-603-1870【通話料無料】携帯電話・PHSからもご利用いただけます 発信者番号は通知されません 「SUUMO(スーモ)を見た」と問い合わせください つながらない方、不動産会社の方は
| Building coverage, floor area ratio 建ぺい率・容積率 | | 60% ・ 200% 60%・200% | Time residents 入居時期 | | 4 months after the contract 契約後4ヶ月 | Land of the right form 土地の権利形態 | | Ownership 所有権 | Structure and method of construction 構造・工法 | | Wooden 2-story 木造2階建 | Construction 施工 | | Nichiei Home Co., Ltd. 日栄ホーム(株) | Overview and notices その他概要・特記事項 | | Contact: Aoki Hiroyuki, Facilities: Public Water Supply, Centralized septic tank, Individual LPG, Building confirmation number: 24CA08-0139S, Parking: car space 担当者:青木 弘行、設備:公営水道、集中浄化槽、個別LPG、建築確認番号:24CA08-0139S、駐車場:カースペース | Company profile 会社概要 | | <Seller> Minister of Land, Infrastructure and Transport (4) No. 005661 (Corporation) metropolitan area real estate Fair Trade Council member Nichiei Shoji Co., Ltd. Yubinbango303-0031 Ibaraki Prefecture Joso City Mitsukaido Yamada 4663 <売主>国土交通大臣(4)第005661号(公社)首都圏不動産公正取引協議会会員 日栄商事(株)〒303-0031 茨城県常総市水海道山田町4663 |
Rendering (appearance)完成予想図(外観)  Rendering
完成予想図
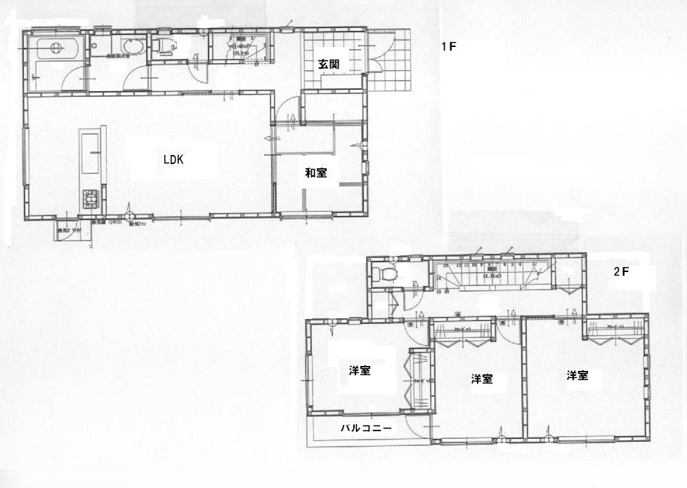
Floor plan間取り図  32,800,000 yen, 4LDK, Land area 300.01 sq m , Building area 99.36 sq m
3280万円、4LDK、土地面積300.01m2、建物面積99.36m2
Same specifications photos (living)同仕様写真(リビング)  Same specifications
同仕様
Same specifications photo (bathroom)同仕様写真(浴室)  Same specifications
同仕様
Same specifications photo (kitchen)同仕様写真(キッチン)  Same specifications
同仕様
 Local photos, including front road
前面道路含む現地写真
Station駅  2200m to Tsukuba Station
つくば駅まで2200m
Supermarketスーパー  609m to Super Marumo Ninomiya shop
スーパーまるも二の宮店まで609m
Junior high school中学校  2729m to Tsukuba Municipal Yatabe Higashi Junior High School
つくば市立谷田部東中学校まで2729m
Primary school小学校  539m to Tsukuba Municipal Ninomiya Elementary School
つくば市立二の宮小学校まで539m
Kindergarten ・ Nursery幼稚園・保育園  Ninomiya 268m to nursery school
二の宮保育園まで268m
Park公園  689m until Teshirogi park
手代木公園まで689m
 716m until Horagamine park
洞峰公園まで716m
Home centerホームセンター  To Yamada Denki 2382m
ヤマダ電機まで2382m
Shopping centreショッピングセンター  LALA Garden Tsukubamade 1554m
LALAガーデンつくばまで1554m
Otherその他  Precisely because its integrated system, Please leave also to after-sales maintenance after your move. If after purchase also visit the company, Looks knows face, You can feel free to contact us, Versatile. We wanted to continue to be in such company.
自社一貫体制だからこそ、お引越し後のアフターメンテナンスまでもお任せ下さい。購入後も会社を訪れれば、知った顔が見え、気軽に相談ができ、融通が利く。私達はそんな会社であり続けたいと思っています。
 Rushed to the site and there is a contact from customers who handed over a house. While in the care of two of grasp and understanding of your feelings of building, We will respond on a case-by-case basis.
家を引き渡したお客様から連絡があると現地に急行。建物の把握とお客様の気持ちの理解という2つを大切にしながら、臨機応変に対応させて頂きます。
Location
|