New Homes » Kansai » Ibaraki Prefecture » Tsukuba City
 
| | Tsukuba, Ibaraki Prefecture 茨城県つくば市 |
| Tsukuba Express "research school" car 1.8km つくばエクスプレス「研究学園」車1.8km |
| It is unrelated to the residential area and the hustle and bustle around the position on a hill surrounded by forest. Iasu Tsukuba, Also nearby Starbucks, We along with the color to life. Because of the double-sided road, It is open. 森に囲まれた高台に位置し周りの喧騒とは無縁の住宅地です。イーアスつくば、スターバックスも近く、生活に彩りを添えています。両面道路の為、開放的です。 |
| Yang per good, Parking two Allowed, 2-story, Located on a hill, Our 20-year warranty 陽当り良好、駐車2台可、2階建、高台に立地、当社20年保証 |
Features pickup 特徴ピックアップ | | Parking two Allowed / Yang per good / 2-story / Located on a hill 駐車2台可 /陽当り良好 /2階建 /高台に立地 | Price 価格 | | 22.5 million yen 2250万円 | Floor plan 間取り | | 4LDK 4LDK | Units sold 販売戸数 | | 1 units 1戸 | Land area 土地面積 | | 155.76 sq m (47.11 tsubo) (Registration) 155.76m2(47.11坪)(登記) | Building area 建物面積 | | 99.36 sq m (30.05 tsubo) (Registration) 99.36m2(30.05坪)(登記) | Driveway burden-road 私道負担・道路 | | Nothing, Southeast 6m width, Northwest 4m width 無、南東6m幅、北西4m幅 | Completion date 完成時期(築年月) | | 4 months after the contract 契約後4ヶ月 | Address 住所 | | Tsukuba, Ibaraki Prefecture Yamanaka 茨城県つくば市山中 | Traffic 交通 | | Tsukuba Express "research school" car 1.8km つくばエクスプレス「研究学園」車1.8km
| Related links 関連リンク | | [Related Sites of this company] 【この会社の関連サイト】 | Person in charge 担当者より | | Person in charge of real-estate and building FP Aoki Hiroyuki Age: 40 Daigyokai experience: This is Aoki of 22-year senior managing director. Started along TX line, Detailed area of Ibaraki Prefecture, south region, environment, Educational institutions, Lot number, etc., Please let me know the realistic information to our company with the founding years of the 70 years. There is surely good encounter. 担当者宅建FP青木 弘行年齢:40代業界経験:22年専務の青木です。TX沿線を始め、茨城県南地域の詳細な地域性、環境、教育施設、地番など、リアルな情報を70年の創業年数を持つ当社までご一報下さい。きっと良い出会いがあります。 | Contact お問い合せ先 | | TEL: 0800-603-1872 [Toll free] mobile phone ・ Also available from PHS Caller ID is not notified Please contact the "saw SUUMO (Sumo)" If it does not lead, If the real estate company TEL:0800-603-1872【通話料無料】携帯電話・PHSからもご利用いただけます 発信者番号は通知されません 「SUUMO(スーモ)を見た」と問い合わせください つながらない方、不動産会社の方は
| Building coverage, floor area ratio 建ぺい率・容積率 | | 60% ・ 200% 60%・200% | Time residents 入居時期 | | 4 months after the contract 契約後4ヶ月 | Land of the right form 土地の権利形態 | | Ownership 所有権 | Structure and method of construction 構造・工法 | | Wooden 2-story 木造2階建 | Construction 施工 | | Nichiei Home Co., Ltd. 日栄ホーム(株) | Overview and notices その他概要・特記事項 | | Contact: Aoki Hiroyuki, Facilities: Public Water Supply, This sewage, Centralized LPG, Building confirmation number: 24CA08-0207S, Parking: car space 担当者:青木 弘行、設備:公営水道、本下水、集中LPG、建築確認番号:24CA08-0207S、駐車場:カースペース | Company profile 会社概要 | | <Seller> Minister of Land, Infrastructure and Transport (4) No. 005661 (Corporation) metropolitan area real estate Fair Trade Council member Nichiei Shoji Co., Ltd. Tsukuba branch Yubinbango305-0031 Tsukuba, Ibaraki Prefecture Azuma 1-15-1-106 <売主>国土交通大臣(4)第005661号(公社)首都圏不動産公正取引協議会会員 日栄商事(株)つくば支店〒305-0031 茨城県つくば市吾妻1-15-1-106 |
 Rendering (appearance)
完成予想図(外観)
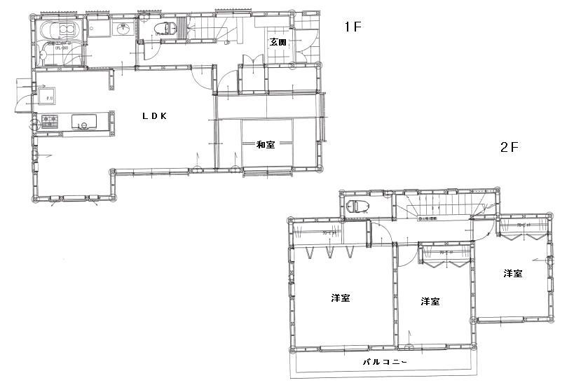
Floor plan間取り図  22.5 million yen, 4LDK, Land area 155.76 sq m , Building area 99.36 sq m
2250万円、4LDK、土地面積155.76m2、建物面積99.36m2
 Same specifications photos (living)
同仕様写真(リビング)
 Same specifications photo (bathroom)
同仕様写真(浴室)
 Same specifications photo (kitchen)
同仕様写真(キッチン)
 Local photos, including front road
前面道路含む現地写真
Station駅  1800m until TX research Gakuen Station
TX研究学園駅まで1800m
Shopping centreショッピングセンター  Iasu Tsukubamade 2000m
イーアスつくばまで2000m
Home centerホームセンター  Mountain new Gran stage Tsukubamade 1100m
山新グランステージつくばまで1100m
Shopping centreショッピングセンター  Until K's Denki 2200m
ケーズデンキまで2200m
 To LALA Garden 2200m
LALAガーデンまで2200m
Home centerホームセンター  850m to Nitori Tsukuba shop
ニトリつくば店まで850m
Supermarketスーパー  Until Yamauchi Matsushiro shop 2100m
ヤマウチ松代店まで2100m
Primary school小学校  840m to Tsukuba Municipal Yanagibashi Elementary School
つくば市立柳橋小学校まで840m
Junior high school中学校  2300m to Tsukuba Municipal Yatabe junior high school
つくば市立谷田部中学校まで2300m
Otherその他  Precisely because its integrated system, Please leave also to after-sales maintenance after your move. If after purchase also visit the company, Looks knows face, You can feel free to contact us, Versatile. We wanted to continue to be in such company.
自社一貫体制だからこそ、お引越し後のアフターメンテナンスまでもお任せ下さい。購入後も会社を訪れれば、知った顔が見え、気軽に相談ができ、融通が利く。私達はそんな会社であり続けたいと思っています。
 Rushed to the site and there is a contact from customers who handed over a house. While in the care of two of grasp and understanding of your feelings of building, We will respond on a case-by-case basis.
家を引き渡したお客様から連絡があると現地に急行。建物の把握とお客様の気持ちの理解という2つを大切にしながら、臨機応変に対応させて頂きます。
Location
|