New Homes » Kansai » Ibaraki Prefecture » Tsukuba City
 
| | Tsukuba, Ibaraki Prefecture 茨城県つくば市 |
| Tsukuba Express "Tsukuba" car 5.4km つくばエクスプレス「つくば」車5.4km |
| Spacious land 130 square meters more than. Tsukuba approved nursery school "Flower Child Nursery" 6-minute walk! Hidamari park walk 2 minutes. Kasumi, Homac Corporation, K's Denki all within walking distance. Is a living environment facing the child-rearing. 広々土地130坪超。つくば市認可保育園「フラワーチャイルド保育園」徒歩6分!ひだまり公園徒歩2分。カスミ、ホーマック、ケーズデンキ全て徒歩圏内。子育てに向いた住環境です。 |
| Land more than 100 square meters, Readjustment land within, Parking two Allowed, City gas, Our 20-year warranty 土地100坪以上、区画整理地内、駐車2台可、都市ガス、当社20年保証 |
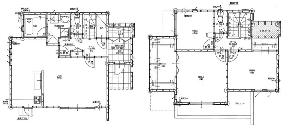
Features pickup 特徴ピックアップ | | Parking two Allowed / Land more than 100 square meters / City gas / Readjustment land within 駐車2台可 /土地100坪以上 /都市ガス /区画整理地内 | Price 価格 | | 26,800,000 yen 2680万円 | Floor plan 間取り | | 4LDK 4LDK | Units sold 販売戸数 | | 1 units 1戸 | Land area 土地面積 | | 432.3 sq m (registration) 432.3m2(登記) | Building area 建物面積 | | 99.36 sq m (measured) 99.36m2(実測) | Driveway burden-road 私道負担・道路 | | Nothing 無 | Completion date 完成時期(築年月) | | 4 months after the contract 契約後4ヶ月 | Address 住所 | | Tsukuba, Ibaraki Prefecture flower garden 1 茨城県つくば市花畑1 | Traffic 交通 | | Tsukuba Express "Tsukuba" car 5.4km つくばエクスプレス「つくば」車5.4km
| Related links 関連リンク | | [Related Sites of this company] 【この会社の関連サイト】 | Person in charge 担当者より | | Person in charge of real-estate and building FP Aoki Hiroyuki Age: 40 Daigyokai experience: This is Aoki of 22-year senior managing director. Started along TX line, Detailed area of Ibaraki Prefecture, south region, environment, Educational institutions, Ground such as, Please let me know the realistic information to our company with the founding years of the 70 years. There is surely good encounter. 担当者宅建FP青木 弘行年齢:40代業界経験:22年専務の青木です。TX沿線を始め、茨城県南地域の詳細な地域性、環境、教育施設、地盤など、リアルな情報を70年の創業年数を持つ当社までご一報下さい。きっと良い出会いがあります。 | Contact お問い合せ先 | | TEL: 0800-603-1870 [Toll free] mobile phone ・ Also available from PHS Caller ID is not notified Please contact the "saw SUUMO (Sumo)" If it does not lead, If the real estate company TEL:0800-603-1870【通話料無料】携帯電話・PHSからもご利用いただけます 発信者番号は通知されません 「SUUMO(スーモ)を見た」と問い合わせください つながらない方、不動産会社の方は
| Building coverage, floor area ratio 建ぺい率・容積率 | | 60% ・ 200% 60%・200% | Time residents 入居時期 | | 4 months after the contract 契約後4ヶ月 | Land of the right form 土地の権利形態 | | Ownership 所有権 | Structure and method of construction 構造・工法 | | Wooden 2-story 木造2階建 | Construction 施工 | | Nichiei Home Co., Ltd. 日栄ホーム(株) | Overview and notices その他概要・特記事項 | | Contact: Aoki Hiroyuki, Facilities: Public Water Supply, This sewage, City gas, Building confirmation number: 24CA08-0515S, Parking: car space 担当者:青木 弘行、設備:公営水道、本下水、都市ガス、建築確認番号:24CA08-0515S、駐車場:カースペース | Company profile 会社概要 | | <Seller> Minister of Land, Infrastructure and Transport (4) No. 005661 (Corporation) metropolitan area real estate Fair Trade Council member Nichiei Shoji Co., Ltd. Yubinbango303-0031 Ibaraki Prefecture Joso City Mitsukaido Yamada 4663 <売主>国土交通大臣(4)第005661号(公社)首都圏不動産公正取引協議会会員 日栄商事(株)〒303-0031 茨城県常総市水海道山田町4663 |
 Rendering (appearance)
完成予想図(外観)
Floor plan間取り図  26,800,000 yen, 4LDK, Land area 432.3 sq m , Building area 99.36 sq m
2680万円、4LDK、土地面積432.3m2、建物面積99.36m2
 Same specifications photos (living)
同仕様写真(リビング)
 Same specifications photo (bathroom)
同仕様写真(浴室)
 Same specifications photo (kitchen)
同仕様写真(キッチン)
 Local photos, including front road
前面道路含む現地写真
Station駅  5400m to Tsukuba Station
つくば駅まで5400m
 Other local
その他現地
Primary school小学校  Ozone until elementary school 1600m
大曽根小学校まで1600m
Supermarketスーパー  1300m to Super Kasumi
スーパーカスミまで1300m
Park公園  200m to sunny spot park
ひだまり公園まで200m
Home centerホームセンター  Until Homac Corporation 1288m
ホーマックまで1288m
Other Environmental Photoその他環境写真  1337m until Wonder goo
ワンダーグーまで1337m
Otherその他  Precisely because its integrated system, Please leave also to after-sales maintenance after your move. If after purchase also visit the company, Looks knows face, You can feel free to contact us, Versatile. We wanted to continue to be in such company.
自社一貫体制だからこそ、お引越し後のアフターメンテナンスまでもお任せ下さい。購入後も会社を訪れれば、知った顔が見え、気軽に相談ができ、融通が利く。私達はそんな会社であり続けたいと思っています。
 Rushed to the site and there is a contact from customers who handed over a house. While in the care of two of grasp and understanding of your feelings of building, We will respond on a case-by-case basis.
家を引き渡したお客様から連絡があると現地に急行。建物の把握とお客様の気持ちの理解という2つを大切にしながら、臨機応変に対応させて頂きます。
Location
|