New Homes » Kansai » Ibaraki Prefecture » Tsukubamirai
 
| | Ibaraki Prefecture Tsukubamirai 茨城県つくばみらい市 |
| Tsukuba Express "Miraidaira" walk 10 minutes つくばエクスプレス「みらい平」歩10分 |
| Orderly city average in the readjustment land. 10 minutes promenade along the line until Miraidaira. Close to Kasumi, Super start drugstore such as commercial facilities are also many of Torisen, It is convenient to shopping everyday. 区画整理地内の整然とした街並。線路沿いの遊歩道をみらい平まで10分。近隣にはカスミ、とりせんのスーパーをはじめドラッグストア等商業施設も多く、日常のお買物に便利です。 |
| Land 50 square meters or more, Or more before road 6m, Readjustment land within, City gas, Parking two Allowed, LDK15 tatami mats or more, Our 20-year warranty 土地50坪以上、前道6m以上、区画整理地内、都市ガス、駐車2台可、LDK15畳以上、当社20年保証 |
Features pickup 特徴ピックアップ | | Parking two Allowed / Land 50 square meters or more / LDK15 tatami mats or more / Or more before road 6m / City gas / Readjustment land within 駐車2台可 /土地50坪以上 /LDK15畳以上 /前道6m以上 /都市ガス /区画整理地内 | Price 価格 | | 23.8 million yen 2380万円 | Floor plan 間取り | | 4LDK 4LDK | Units sold 販売戸数 | | 1 units 1戸 | Land area 土地面積 | | 167.34 sq m (registration) 167.34m2(登記) | Building area 建物面積 | | 99.36 sq m (registration) 99.36m2(登記) | Driveway burden-road 私道負担・道路 | | Nothing 無 | Completion date 完成時期(築年月) | | 4 months after the contract 契約後4ヶ月 | Address 住所 | | Ibaraki Prefecture Tsukubamirai Shiho months hill 4 茨城県つくばみらい市紫峰ヶ丘4 | Traffic 交通 | | Tsukuba Express "Miraidaira" walk 10 minutes つくばエクスプレス「みらい平」歩10分
| Related links 関連リンク | | [Related Sites of this company] 【この会社の関連サイト】 | Person in charge 担当者より | | Rep Aoki Hiroyuki 担当者青木 弘行 | Contact お問い合せ先 | | TEL: 0800-603-1870 [Toll free] mobile phone ・ Also available from PHS Caller ID is not notified Please contact the "saw SUUMO (Sumo)" If it does not lead, If the real estate company TEL:0800-603-1870【通話料無料】携帯電話・PHSからもご利用いただけます 発信者番号は通知されません 「SUUMO(スーモ)を見た」と問い合わせください つながらない方、不動産会社の方は
| Building coverage, floor area ratio 建ぺい率・容積率 | | 60% ・ 200% 60%・200% | Time residents 入居時期 | | 4 months after the contract 契約後4ヶ月 | Land of the right form 土地の権利形態 | | Ownership 所有権 | Structure and method of construction 構造・工法 | | Wooden 2-story 木造2階建 | Construction 施工 | | Nichiei Home Co., Ltd. 日栄ホーム(株) | Overview and notices その他概要・特記事項 | | Contact: Aoki Hiroyuki, Facilities: Public Water Supply, This sewage, City gas, Building confirmation number: 25CA53-0662S, Parking: car space 担当者:青木 弘行、設備:公営水道、本下水、都市ガス、建築確認番号:25CA53-0662S、駐車場:カースペース | Company profile 会社概要 | | <Seller> Minister of Land, Infrastructure and Transport (4) No. 005661 (Corporation) metropolitan area real estate Fair Trade Council member Nichiei Shoji Co., Ltd. Yubinbango303-0031 Ibaraki Prefecture Joso City Mitsukaido Yamada 4663 <売主>国土交通大臣(4)第005661号(公社)首都圏不動産公正取引協議会会員 日栄商事(株)〒303-0031 茨城県常総市水海道山田町4663 |
 Rendering (appearance)
完成予想図(外観)
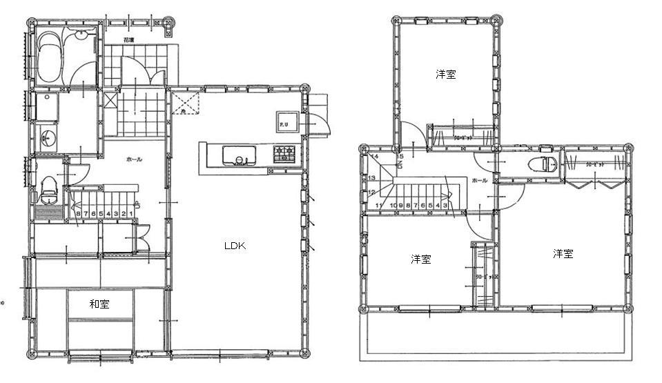
Floor plan間取り図  23.8 million yen, 4LDK, Land area 167.34 sq m , Building area 99.36 sq m
2380万円、4LDK、土地面積167.34m2、建物面積99.36m2
 Same specifications photos (living)
同仕様写真(リビング)
 Same specifications photo (kitchen)
同仕様写真(キッチン)
 Local photos, including front road
前面道路含む現地写真
Station駅  Miraidaira 800m to the Train Station
みらい平駅まで800m

Supermarketスーパー  Until Kasumi 720m
カスミまで720m
 800m until Torisen
とりせんまで800m
Kindergarten ・ Nursery幼稚園・保育園  Futaba land nursery ・ 640m to kindergarten
ふたばランド保育園・幼稚園まで640m
Otherその他  Precisely because its integrated system, Please leave also to after-sales maintenance after your move. If after purchase also visit the company, Looks knows face, You can feel free to contact us, Versatile. We wanted to continue to be in such company.
自社一貫体制だからこそ、お引越し後のアフターメンテナンスまでもお任せ下さい。購入後も会社を訪れれば、知った顔が見え、気軽に相談ができ、融通が利く。私達はそんな会社であり続けたいと思っています。
 Rushed to the site and there is a contact from customers who handed over a house. While in the care of two of grasp and understanding of your feelings of building, We will respond on a case-by-case basis.
家を引き渡したお客様から連絡があると現地に急行。建物の把握とお客様の気持ちの理解という2つを大切にしながら、臨機応変に対応させて頂きます。
Location
|