|
|
Ishikawa Prefecture Kahoku
石川県かほく市
|
|
Kahoku welfare tour bus "Kizu Sakaemachi" walk 1 minute
かほく市福祉巡回バス「木津栄町」歩1分
|
|
New construction sale of semi-custom specifications of the start of construction after the conclusion of the contract. Mato changed, but are not allowed, You can choose an exterior wall or floor and the like in the color of your choice.
契約締結後に工事着工のセミオーダー仕様の新築分譲。間取変更は不可ですが、外壁や床等をお好きな色にてお選びいただけます。
|
|
joint_kidu3 elementary school, Super is nearby. New developed land within that became the rest 1 compartment.
joint_kidu3 小学校、スーパーが近くにあります。 残り1区画となった新規造成地内。
|
Features pickup 特徴ピックアップ | | Airtight high insulated houses / Parking three or more possible / Super close / System kitchen / Yang per good / All room storage / A quiet residential area / LDK15 tatami mats or more / Around traffic fewer / Shaping land / Garden more than 10 square meters / Washbasin with shower / Security enhancement / Barrier-free / Toilet 2 places / 2-story / Warm water washing toilet seat / Underfloor Storage / IH cooking heater / Dish washing dryer / Walk-in closet / All-electric / All rooms are two-sided lighting / A large gap between the neighboring house / roof balcony 高気密高断熱住宅 /駐車3台以上可 /スーパーが近い /システムキッチン /陽当り良好 /全居室収納 /閑静な住宅地 /LDK15畳以上 /周辺交通量少なめ /整形地 /庭10坪以上 /シャワー付洗面台 /セキュリティ充実 /バリアフリー /トイレ2ヶ所 /2階建 /温水洗浄便座 /床下収納 /IHクッキングヒーター /食器洗乾燥機 /ウォークインクロゼット /オール電化 /全室2面採光 /隣家との間隔が大きい /ルーフバルコニー |
Price 価格 | | 16.8 million yen 1680万円 |
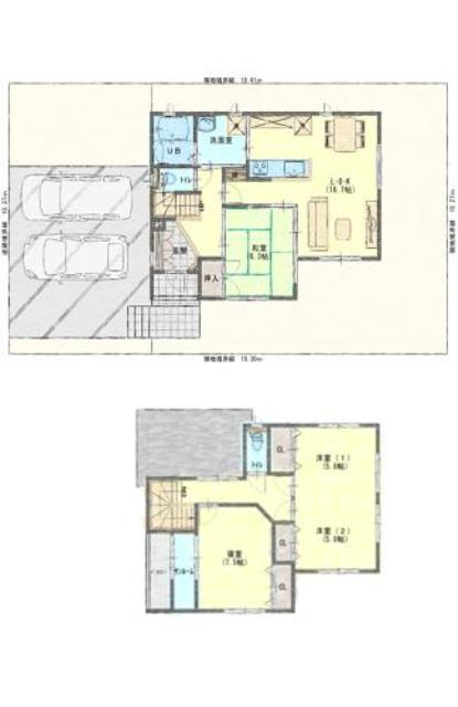
Floor plan 間取り | | 4LDK 4LDK |
Units sold 販売戸数 | | 1 units 1戸 |
Land area 土地面積 | | 188.56 sq m (registration) 188.56m2(登記) |
Building area 建物面積 | | 109.5 sq m (measured) 109.5m2(実測) |
Driveway burden-road 私道負担・道路 | | Nothing, West 7m width (contact the road width 10.2m) 無、西7m幅(接道幅10.2m) |
Completion date 完成時期(築年月) | | May 2014 2014年5月 |
Address 住所 | | Ishikawa Prefecture Kahoku Kizu 石川県かほく市木津 |
Traffic 交通 | | Kahoku welfare tour bus "Kizu Sakaemachi" walk 1 minute かほく市福祉巡回バス「木津栄町」歩1分 |
Related links 関連リンク | | [Related Sites of this company] 【この会社の関連サイト】 |
Person in charge 担当者より | | Personnel Tomoki Yamazaki man 担当者山崎友喜男 |
Contact お問い合せ先 | | TEL: 0120-250021 [Toll free] Please contact the "saw SUUMO (Sumo)" TEL:0120-250021【通話料無料】「SUUMO(スーモ)を見た」と問い合わせください |
Building coverage, floor area ratio 建ぺい率・容積率 | | 60% ・ 200% 60%・200% |
Time residents 入居時期 | | Consultation 相談 |
Land of the right form 土地の権利形態 | | Ownership 所有権 |
Structure and method of construction 構造・工法 | | Wooden 2-story 木造2階建 |
Construction 施工 | | Co., Ltd. joint 21 株式会社ジョイント21 |
Use district 用途地域 | | Unspecified 無指定 |
Overview and notices その他概要・特記事項 | | Contact Person: Tomoki Yamasaki man, Building confirmation number: No. IKJC12-1442 担当者:山崎友喜男、建築確認番号:第IKJC12-1442号 |
Company profile 会社概要 | | <Seller> Ishikawa Governor (3) No. 003535 (the company), Ishikawa Prefecture Building Lots and Buildings Transaction Business Association Hokuriku Real Estate Fair Trade Council member Co., Ltd. joint 21Yubinbango921-8161 Kanazawa, Ishikawa Prefecture Arimatsu 1-1-1 <売主>石川県知事(3)第003535号(社)石川県宅地建物取引業協会会員 北陸不動産公正取引協議会加盟(株)ジョイント21〒921-8161 石川県金沢市有松1-1-1 |