New Homes » Koshinetsu » Ishikawa Prefecture » Kanazawa
 
| | Kanazawa, Ishikawa Prefecture 石川県金沢市 |
| Hokutetsu bus "Avenue Wariguchi" walk 6 minutes 北鉄バス「大道割口」歩6分 |
Features pickup 特徴ピックアップ | | Parking three or more possible / LDK15 tatami mats or more / Japanese-style room / 2-story / IH cooking heater / All-electric 駐車3台以上可 /LDK15畳以上 /和室 /2階建 /IHクッキングヒーター /オール電化 | Event information イベント情報 | | (Please be sure to ask in advance) (事前に必ずお問い合わせください) | Price 価格 | | 18,930,000 yen 1893万円 | Floor plan 間取り | | 4LDK 4LDK | Units sold 販売戸数 | | 1 units 1戸 | Total units 総戸数 | | 1 units 1戸 | Land area 土地面積 | | 133.42 sq m (registration) 133.42m2(登記) | Building area 建物面積 | | 108.26 sq m (measured) 108.26m2(実測) | Driveway burden-road 私道負担・道路 | | Nothing, North 4.5m width (contact the road width 6.7m) 無、北4.5m幅(接道幅6.7m) | Completion date 完成時期(築年月) | | July 2013 2013年7月 | Address 住所 | | Kanazawa, Ishikawa Prefecture Omma-cho, Wa 石川県金沢市大桑町ワ | Traffic 交通 | | Hokutetsu bus "Avenue Wariguchi" walk 6 minutes 北鉄バス「大道割口」歩6分 | Contact お問い合せ先 | | TEL: 0800-603-6772 [Toll free] mobile phone ・ Also available from PHS Caller ID is not notified Please contact the "saw SUUMO (Sumo)" If it does not lead, If the real estate company TEL:0800-603-6772【通話料無料】携帯電話・PHSからもご利用いただけます 発信者番号は通知されません 「SUUMO(スーモ)を見た」と問い合わせください つながらない方、不動産会社の方は
| Building coverage, floor area ratio 建ぺい率・容積率 | | 60% ・ 200% 60%・200% | Time residents 入居時期 | | Immediate available 即入居可 | Land of the right form 土地の権利形態 | | Ownership 所有権 | Structure and method of construction 構造・工法 | | Wooden 2-story (framing method) 木造2階建(軸組工法) | Construction 施工 | | Canadian Home Co., Ltd. カナディアンホーム(株) | Use district 用途地域 | | One middle and high 1種中高 | Overview and notices その他概要・特記事項 | | Facilities: Public Water Supply, This sewage, All-electric, Building confirmation number: No. IKJC12-1654, Parking: car space 設備:公営水道、本下水、オール電化、建築確認番号:第IKJC12-1654号、駐車場:カースペース | Company profile 会社概要 | | <Seller> Ishikawa Governor (8) No. 002165 (the Company), Ishikawa Prefecture Building Lots and Buildings Transaction Business Association Hokuriku Real Estate Fair Trade Council member (Ltd.) Sugimoto housing Yubinbango921-8171 Kanazawa, Ishikawa Prefecture Togashi 1-2-10 <売主>石川県知事(8)第002165号(社)石川県宅地建物取引業協会会員 北陸不動産公正取引協議会加盟(株)杉本住宅〒921-8171 石川県金沢市富樫1-2-10 |
Local appearance photo現地外観写真  Local (September 2013) Shooting
現地(2013年9月)撮影
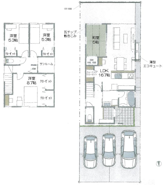
Floor plan間取り図  18,930,000 yen, 4LDK, Land area 133.42 sq m , Building area 108.26 sq m
1893万円、4LDK、土地面積133.42m2、建物面積108.26m2
Livingリビング  Room (August 2013) Shooting
室内(2013年8月)撮影
Kitchenキッチン  Room (August 2013) Shooting
室内(2013年8月)撮影
Other introspectionその他内観  Japanese style room Room (August 2013) Shooting
和室 室内(2013年8月)撮影
 Sunroom
サンルーム
Location
|