New Homes » Koshinetsu » Ishikawa Prefecture » Kanazawa
 
| | Kanazawa, Ishikawa Prefecture 石川県金沢市 |
| Hokutetsu bus "Tochigi Minami" walk 1 minute 北鉄バス「千木南」歩1分 |
| Siemens south road, Yang per good, A quiet residential area, Development subdivision in, Shaping land, Mu front building, Parking three or more possible, Immediate Available, Facing south, All room storage, LDK15 tatami mats or more, Or more before road 6mese-style room, Face-to-face kitchen 南側道路面す、陽当り良好、閑静な住宅地、開発分譲地内、整形地、前面棟無、駐車3台以上可、即入居可、南向き、全居室収納、LDK15畳以上、前道6m以上、和室、対面式キッチ |
Features pickup 特徴ピックアップ | | Parking three or more possible / Immediate Available / Facing south / Yang per good / All room storage / Siemens south road / A quiet residential area / LDK15 tatami mats or more / Or more before road 6m / Japanese-style room / Shaping land / Face-to-face kitchen / Toilet 2 places / 2-story / The window in the bathroom / Mu front building / Development subdivision in 駐車3台以上可 /即入居可 /南向き /陽当り良好 /全居室収納 /南側道路面す /閑静な住宅地 /LDK15畳以上 /前道6m以上 /和室 /整形地 /対面式キッチン /トイレ2ヶ所 /2階建 /浴室に窓 /前面棟無 /開発分譲地内 | Price 価格 | | 23,300,000 yen 2330万円 | Floor plan 間取り | | 5LDK 5LDK | Units sold 販売戸数 | | 1 units 1戸 | Total units 総戸数 | | 1 units 1戸 | Land area 土地面積 | | 135 sq m (registration) 135m2(登記) | Building area 建物面積 | | 115.5 sq m (registration) 115.5m2(登記) | Driveway burden-road 私道負担・道路 | | Nothing, South 6m width (contact the road width 10.4m) 無、南6m幅(接道幅10.4m) | Completion date 完成時期(築年月) | | May 2013 2013年5月 | Address 住所 | | Kanazawa, Ishikawa Prefecture Tochigi Machiru 石川県金沢市千木町ル | Traffic 交通 | | Hokutetsu bus "Tochigi Minami" walk 1 minute 北鉄バス「千木南」歩1分 | Person in charge 担当者より | | Rep Okamoto 担当者岡本 | Contact お問い合せ先 | | TEL: 0800-603-6751 [Toll free] mobile phone ・ Also available from PHS Caller ID is not notified Please contact the "saw SUUMO (Sumo)" If it does not lead, If the real estate company TEL:0800-603-6751【通話料無料】携帯電話・PHSからもご利用いただけます 発信者番号は通知されません 「SUUMO(スーモ)を見た」と問い合わせください つながらない方、不動産会社の方は
| Building coverage, floor area ratio 建ぺい率・容積率 | | 60% ・ 200% 60%・200% | Time residents 入居時期 | | Immediate available 即入居可 | Land of the right form 土地の権利形態 | | Ownership 所有権 | Structure and method of construction 構造・工法 | | Wooden 2-story 木造2階建 | Use district 用途地域 | | Industry 工業 | Overview and notices その他概要・特記事項 | | Contact: Okamoto, Facilities: Public Water Supply, This sewage, Individual LPG, Parking: car space 担当者:岡本、設備:公営水道、本下水、個別LPG、駐車場:カースペース | Company profile 会社概要 | | <Mediation> Ishikawa Governor (10) No. 001706 (the company), Ishikawa Prefecture Building Lots and Buildings Transaction Business Association Hokuriku Real Estate Fair Trade Council member (Ltd.) first estate Yubinbango921-8035 Kanazawa, Ishikawa Prefecture Izumigaoka 2-12-46 <仲介>石川県知事(10)第001706号(社)石川県宅地建物取引業協会会員 北陸不動産公正取引協議会加盟(株)第一地所〒921-8035 石川県金沢市泉が丘2-12-46 |
Local appearance photo現地外観写真  Facing south
南向き
 Parking four Allowed
駐車4台可
 Living
リビング
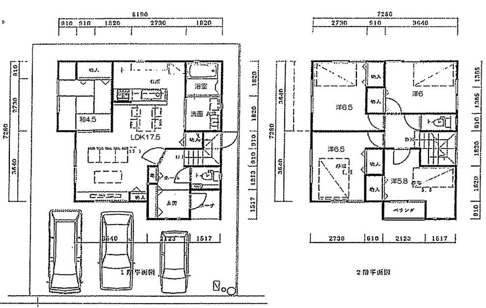
Floor plan間取り図  23,300,000 yen, 5LDK, Land area 135 sq m , Building area 115.5 sq m
2330万円、5LDK、土地面積135m2、建物面積115.5m2
 Kitchen
キッチン
Otherその他  Front road is spacious 6m
前面道路は広々6m
Location
|