2014February
21,850,000 yen, 4LDK, 113.16 sq m
New Homes » Koshinetsu » Ishikawa Prefecture » Kanazawa
 
| | Kanazawa, Ishikawa Prefecture 石川県金沢市 |
| Hokutetsu bus "Yokomakura" walk 5 minutes 北鉄バス「横枕」歩5分 |
Features pickup 特徴ピックアップ | | Parking three or more possible / Energy-saving water heaters / LDK15 tatami mats or more / Corner lot / Japanese-style room / Washbasin with shower / Face-to-face kitchen / Toilet 2 places / 2-story / Warm water washing toilet seat / IH cooking heater / Dish washing dryer / Walk-in closet / All room 6 tatami mats or more / All-electric 駐車3台以上可 /省エネ給湯器 /LDK15畳以上 /角地 /和室 /シャワー付洗面台 /対面式キッチン /トイレ2ヶ所 /2階建 /温水洗浄便座 /IHクッキングヒーター /食器洗乾燥機 /ウォークインクロゼット /全居室6畳以上 /オール電化 | Event information イベント情報 | | (Please be sure to ask in advance) (事前に必ずお問い合わせください) | Price 価格 | | 21,850,000 yen 2185万円 | Floor plan 間取り | | 4LDK 4LDK | Units sold 販売戸数 | | 1 units 1戸 | Total units 総戸数 | | 1 units 1戸 | Land area 土地面積 | | 153.94 sq m (registration) 153.94m2(登記) | Building area 建物面積 | | 113.16 sq m (measured) 113.16m2(実測) | Driveway burden-road 私道負担・道路 | | Nothing, North 6m width, Southeast 5.3m width 無、北6m幅、南東5.3m幅 | Completion date 完成時期(築年月) | | February 2014 2014年2月 | Address 住所 | | Kanazawa, Ishikawa Prefecture Yokomakura cho Lee 石川県金沢市横枕町イ | Traffic 交通 | | Hokutetsu bus "Yokomakura" walk 5 minutes 北鉄バス「横枕」歩5分 | Contact お問い合せ先 | | TEL: 0800-603-6772 [Toll free] mobile phone ・ Also available from PHS Caller ID is not notified Please contact the "saw SUUMO (Sumo)" If it does not lead, If the real estate company TEL:0800-603-6772【通話料無料】携帯電話・PHSからもご利用いただけます 発信者番号は通知されません 「SUUMO(スーモ)を見た」と問い合わせください つながらない方、不動産会社の方は
| Time residents 入居時期 | | February 2014 schedule 2014年2月予定 | Land of the right form 土地の権利形態 | | Ownership 所有権 | Structure and method of construction 構造・工法 | | Wooden 2-story 木造2階建 | Use district 用途地域 | | One dwelling 1種住居 | Overview and notices その他概要・特記事項 | | Facilities: Public Water Supply, This sewage, All-electric, Building confirmation number: 1234567, Parking: car space 設備:公営水道、本下水、オール電化、建築確認番号:1234567、駐車場:カースペース | Company profile 会社概要 | | <Seller> Ishikawa Governor (8) No. 002165 (the Company), Ishikawa Prefecture Building Lots and Buildings Transaction Business Association Hokuriku Real Estate Fair Trade Council member (Ltd.) Sugimoto housing Yubinbango921-8171 Kanazawa, Ishikawa Prefecture Togashi 1-2-10 <売主>石川県知事(8)第002165号(社)石川県宅地建物取引業協会会員 北陸不動産公正取引協議会加盟(株)杉本住宅〒921-8171 石川県金沢市富樫1-2-10 |
Rendering (appearance)完成予想図(外観)  (A Building) Rendering
(A号棟)完成予想図
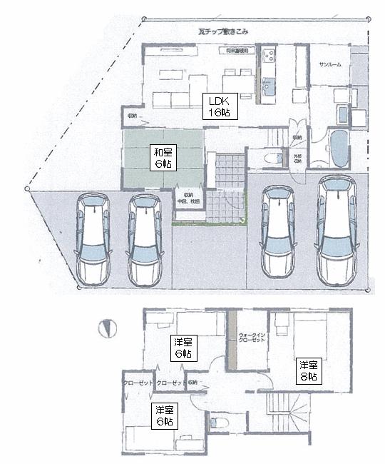
Floor plan間取り図  21,850,000 yen, 4LDK, Land area 153.94 sq m , Building area 113.16 sq m
2185万円、4LDK、土地面積153.94m2、建物面積113.16m2
Local appearance photo現地外観写真  Local (12 May 2013) Shooting
現地(2013年12月)撮影
Location
|