New Homes » Koshinetsu » Ishikawa Prefecture » Kanazawa
 
| | Kanazawa, Ishikawa Prefecture 石川県金沢市 |
| Bus "Izumo bus stop" walk 3 minutes バス「出雲バス停」歩3分 |
| Facility contribution 630,000 yen have been included in the sale price. Popular door panel land development in the area! New door panel elementary school near, Also substantial shopping facility. Parking is also 3 units can be in the southeast corner lot! Door panel second district plan. 施設負担金63万円は売買価格に含めています。人気の戸板土地造成区域内!新戸板小学校も近く、買物施設も充実しています。東南角地で駐車も3台可能!戸板第二地区計画。 |
| 3303 nice town Kanazawa house development incentive target zone 3303 いい街金沢住まいづくり奨励金対象区域 |
Features pickup 特徴ピックアップ | | Parking three or more possible / Immediate Available / System kitchen / LDK15 tatami mats or more / Or more before road 6m / Corner lot / Toilet 2 places / 2-story / IH cooking heater / All-electric / Flat terrain 駐車3台以上可 /即入居可 /システムキッチン /LDK15畳以上 /前道6m以上 /角地 /トイレ2ヶ所 /2階建 /IHクッキングヒーター /オール電化 /平坦地 | Price 価格 | | 32,800,000 yen 3280万円 | Floor plan 間取り | | 4LDK 4LDK | Units sold 販売戸数 | | 1 units 1戸 | Land area 土地面積 | | 152 sq m (measured) 152m2(実測) | Building area 建物面積 | | 122.26 sq m (registration) 122.26m2(登記) | Driveway burden-road 私道負担・道路 | | Nothing, Southeast 15m width (contact the road width 15.2m), Southwest 6m width (contact the road width 5.8m) 無、南東15m幅(接道幅15.2m)、南西6m幅(接道幅5.8m) | Completion date 完成時期(築年月) | | July 2013 2013年7月 | Address 住所 | | Kanazawa, Ishikawa Prefecture Yakushido Town, Ha 石川県金沢市薬師堂町ハ | Traffic 交通 | | Bus "Izumo bus stop" walk 3 minutes バス「出雲バス停」歩3分 | Related links 関連リンク | | [Related Sites of this company] 【この会社の関連サイト】 | Contact お問い合せ先 | | TEL: 0120-429955 [Toll free] Please contact the "saw SUUMO (Sumo)" TEL:0120-429955【通話料無料】「SUUMO(スーモ)を見た」と問い合わせください | Building coverage, floor area ratio 建ぺい率・容積率 | | 60% ・ 200% 60%・200% | Time residents 入居時期 | | Immediate available 即入居可 | Land of the right form 土地の権利形態 | | Ownership 所有権 | Structure and method of construction 構造・工法 | | Wooden 2-story 木造2階建 | Use district 用途地域 | | Two mid-high 2種中高 | Overview and notices その他概要・特記事項 | | Facilities: Public Water Supply, This sewage, All-electric, Parking: car space 設備:公営水道、本下水、オール電化、駐車場:カースペース | Company profile 会社概要 | | <Mediation> Minister of Land, Infrastructure and Transport (1) No. 008120 (the company), Ishikawa Prefecture Building Lots and Buildings Transaction Business Association Hokuriku Real Estate Fair Trade Council member Co., Ltd. Sakura Home Nonoichi shop Yubinbango921-8805 Ishikawa Prefecture nonoichi Inari 2-52 <仲介>国土交通大臣(1)第008120号(社)石川県宅地建物取引業協会会員 北陸不動産公正取引協議会加盟(株)さくらホーム野々市店〒921-8805 石川県野々市市稲荷2-52 |
Local appearance photo現地外観写真  Door panel elementary school, Nagata junior high school
戸板小学校、長田中学校
Otherその他  Brightly illuminate the courtyard space the entrance
玄関を明るく照らす中庭スペース
 Entrance shoes cloak
玄関シューズクローク
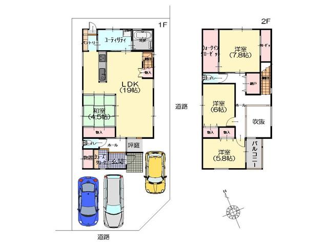
Floor plan間取り図  32,800,000 yen, 4LDK, Land area 152 sq m , Building area 122.26 sq m 1 floor pantry ・ It is a utility is happy.
3280万円、4LDK、土地面積152m2、建物面積122.26m2 1階パントリー・ユーティリティが嬉しいですね。
Otherその他  Spacious 19 Pledge living
広々19帖リビング
 Face-to-face kitchen
対面キッチン
 4.5 Pledge Japanese-style room
4.5帖和室
 Solarium shared basin dressing room
サンルーム兼用洗面脱衣所
 Tankless toilet
タンクレスのトイレ
 Bathroom
浴室
Location
|