New Homes » Koshinetsu » Ishikawa Prefecture » Komatsu
 
| | Komatsu City, Ishikawa Prefecture 石川県小松市 |
| Komatsu bus "medium Hachisato" walk 14 minutes 小松バス「中八里」歩14分 |
| Cool in summer, As winter is able to spend warm, Tiled roof that becomes the option of the Company custom home, Airtight insulation material, High-grade resin sash specifications 1 building. 夏は涼しく、冬は暖かく過ごしていただけるよう、当社注文住宅ではオプションとなる瓦屋根、高気密断熱材、樹脂サッシ仕様のハイグレードな1棟。 |
| joint_yasatodai35_9 good access from the Kaga industrial road. Wood utilization point object properties. (300,000 P) joint_yasatodai35_9 加賀産業道路からのアクセス良好。 木材利用ポイント対象物件。(30万P) |
Features pickup 特徴ピックアップ | | Airtight high insulated houses / Parking three or more possible / LDK18 tatami mats or more / Energy-saving water heaters / System kitchen / Yang per good / All room storage / A quiet residential area / Around traffic fewer / Shaping land / Garden more than 10 square meters / Washbasin with shower / Security enhancement / Toilet 2 places / Bathroom 1 tsubo or more / 2-story / Double-glazing / Warm water washing toilet seat / Nantei / Underfloor Storage / IH cooking heater / Dish washing dryer / Walk-in closet / All room 6 tatami mats or more / All-electric / Located on a hill / A large gap between the neighboring house 高気密高断熱住宅 /駐車3台以上可 /LDK18畳以上 /省エネ給湯器 /システムキッチン /陽当り良好 /全居室収納 /閑静な住宅地 /周辺交通量少なめ /整形地 /庭10坪以上 /シャワー付洗面台 /セキュリティ充実 /トイレ2ヶ所 /浴室1坪以上 /2階建 /複層ガラス /温水洗浄便座 /南庭 /床下収納 /IHクッキングヒーター /食器洗乾燥機 /ウォークインクロゼット /全居室6畳以上 /オール電化 /高台に立地 /隣家との間隔が大きい | Price 価格 | | 19,800,000 yen 1980万円 | Floor plan 間取り | | 4LDK 4LDK | Units sold 販売戸数 | | 1 units 1戸 | Land area 土地面積 | | 207.99 sq m (registration) 207.99m2(登記) | Building area 建物面積 | | 119.23 sq m (measured) 119.23m2(実測) | Driveway burden-road 私道負担・道路 | | Nothing, West 6m width (contact the road width 14.4m) 無、西6m幅(接道幅14.4m) | Completion date 完成時期(築年月) | | November 2013 2013年11月 | Address 住所 | | Komatsu City, Ishikawa Prefecture Yasatodai 石川県小松市八里台 | Traffic 交通 | | Komatsu bus "medium Hachisato" walk 14 minutes 小松バス「中八里」歩14分 | Related links 関連リンク | | [Related Sites of this company] 【この会社の関連サイト】 | Person in charge 担当者より | | Rep Kobayashi Masakazu 担当者小林 正和 | Contact お問い合せ先 | | TEL: 0120-250021 [Toll free] Please contact the "saw SUUMO (Sumo)" TEL:0120-250021【通話料無料】「SUUMO(スーモ)を見た」と問い合わせください | Building coverage, floor area ratio 建ぺい率・容積率 | | Fifty percent ・ 80% 50%・80% | Time residents 入居時期 | | Immediate available 即入居可 | Land of the right form 土地の権利形態 | | Ownership 所有権 | Structure and method of construction 構造・工法 | | Wooden 2-story 木造2階建 | Construction 施工 | | Co., Ltd. joint 21 株式会社ジョイント21 | Use district 用途地域 | | Urbanization control area 市街化調整区域 | Overview and notices その他概要・特記事項 | | Contact: Kobayashi Masakazu, Building Permits reason: land sale by the development permit, etc., Building confirmation number: No. IKJC13-3150 担当者:小林 正和、建築許可理由:開発許可等による分譲地、建築確認番号:第IKJC13-3150号 | Company profile 会社概要 | | <Seller> Ishikawa Governor (3) No. 003535 (the company), Ishikawa Prefecture Building Lots and Buildings Transaction Business Association Hokuriku Real Estate Fair Trade Council member Co., Ltd. joint 21Yubinbango921-8161 Kanazawa, Ishikawa Prefecture Arimatsu 1-1-1 <売主>石川県知事(3)第003535号(社)石川県宅地建物取引業協会会員 北陸不動産公正取引協議会加盟(株)ジョイント21〒921-8161 石川県金沢市有松1-1-1 |
Local appearance photo現地外観写真  Appearance with a volume to a wide frontage.
広い間口にボリュームのある外観。
Entrance玄関  Entrance cloak of storage capacity pat.
収納力バッチリの玄関クローク。
View photos from the dwelling unit住戸からの眺望写真  View from the wide entrance hall.
広い玄関ホールからの眺望。
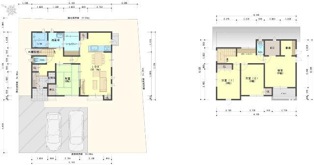
Floor plan間取り図  19,800,000 yen, 4LDK, Land area 207.99 sq m , Floor plan that was considered a comfortable house and building area 119.23 sq m housework flow line.
1980万円、4LDK、土地面積207.99m2、建物面積119.23m2 家事動線と快適なお住まいを考えた間取り。
Livingリビング  Living of open-minded 18.2 Pledge.
開放的な18.2帖のリビング。
Bathroom浴室  TOTO made 1 pyeong type of comfortable floor from the moment you enter.
入った瞬間から心地よい床のTOTO製1坪タイプ。
Kitchenキッチン  TOTO made, Kitchen of artificial marble with a dishwasher.
TOTO製、食洗器付の人工大理石仕様のキッチン。
Non-living roomリビング以外の居室  6 Pledge of Japanese-style room of which you can take advantage of as living and Tsuzukiai.
リビングと続き間としてご活用いただける6帖の和室。
Wash basin, toilet洗面台・洗面所  Three-sided mirror, Shampoo Dresser corresponding vanity.
3面鏡、シャンプードレッサー対応の洗面化粧台。
Non-living roomリビング以外の居室  Sun Room of size 1 square meters of houses in the washroom next to.
洗面所横に併設した広さ1坪のサンルーム。
Location
|