New Homes » Kanto » Kanagawa Prefecture » Chigasaki
 
| | Chigasaki, Kanagawa Prefecture 神奈川県茅ヶ崎市 |
| JR Tokaido Line "Chigasaki" 10 minutes pine forest walk 3 minutes by bus JR東海道本線「茅ヶ崎」バス10分松林歩3分 |
| Facing south, System kitchen, Bathroom Dryer, Yang per good, Flat to the stationese-style room, Washbasin with shower, Toilet 2 places, Bathroom 1 tsubo or more, 2-story, South balcony, Zenshitsuminami direction, Warm water washing toilet seat, Under the floor 南向き、システムキッチン、浴室乾燥機、陽当り良好、駅まで平坦、和室、シャワー付洗面台、トイレ2ヶ所、浴室1坪以上、2階建、南面バルコニー、全室南向き、温水洗浄便座、床下 |
| Bright interior of the newly built one detached the south road and all rooms are facing to the south 南道路&全室が南に向いた明るい室内の新築一戸建 |
Features pickup 特徴ピックアップ | | Corresponding to the flat-35S / Pre-ground survey / Year Available / Immediate Available / 2 along the line more accessible / Super close / Facing south / System kitchen / Bathroom Dryer / Yang per good / All room storage / Flat to the station / Siemens south road / A quiet residential area / Around traffic fewer / Japanese-style room / Shaping land / Washbasin with shower / Barrier-free / Toilet 2 places / Bathroom 1 tsubo or more / 2-story / South balcony / Double-glazing / Zenshitsuminami direction / Warm water washing toilet seat / Underfloor Storage / The window in the bathroom / Leafy residential area / Ventilation good / Dish washing dryer / Water filter / A large gap between the neighboring house / Flat terrain フラット35Sに対応 /地盤調査済 /年内入居可 /即入居可 /2沿線以上利用可 /スーパーが近い /南向き /システムキッチン /浴室乾燥機 /陽当り良好 /全居室収納 /駅まで平坦 /南側道路面す /閑静な住宅地 /周辺交通量少なめ /和室 /整形地 /シャワー付洗面台 /バリアフリー /トイレ2ヶ所 /浴室1坪以上 /2階建 /南面バルコニー /複層ガラス /全室南向き /温水洗浄便座 /床下収納 /浴室に窓 /緑豊かな住宅地 /通風良好 /食器洗乾燥機 /浄水器 /隣家との間隔が大きい /平坦地 | Price 価格 | | 34,800,000 yen 3480万円 | Floor plan 間取り | | 4LDK 4LDK | Units sold 販売戸数 | | 1 units 1戸 | Land area 土地面積 | | 106.94 sq m (measured) 106.94m2(実測) | Building area 建物面積 | | 93.57 sq m (measured) 93.57m2(実測) | Driveway burden-road 私道負担・道路 | | Nothing, South 4m width (contact the road width 10.7m) 無、南4m幅(接道幅10.7m) | Completion date 完成時期(築年月) | | November 2013 2013年11月 | Address 住所 | | Chigasaki, Kanagawa Prefecture pine forest 2 神奈川県茅ヶ崎市松林2 | Traffic 交通 | | JR Tokaido Line "Chigasaki" 10 minutes pine forest walk 3 minutes by bus JR Sagami Line "Kitachigasaki" walk 24 minutes JR Tokaido Line "Tsujido" walk 29 minutes JR東海道本線「茅ヶ崎」バス10分松林歩3分 JR相模線「北茅ヶ崎」歩24分 JR東海道本線「辻堂」歩29分
| Related links 関連リンク | | [Related Sites of this company] 【この会社の関連サイト】 | Person in charge 担当者より | | Person in charge of real-estate and building Hideki Osaka Age: 50 Daigyokai experience: I will do my best cherish cordial encounter with 12-year every one of our customers. Please feel free to contact us. 担当者宅建大坂英樹年齢:50代業界経験:12年一人一人のお客様との出会いを大切に誠心誠意頑張ります。お気軽にご相談下さい。 | Contact お問い合せ先 | | TEL: 0800-603-0346 [Toll free] mobile phone ・ Also available from PHS Caller ID is not notified Please contact the "saw SUUMO (Sumo)" If it does not lead, If the real estate company TEL:0800-603-0346【通話料無料】携帯電話・PHSからもご利用いただけます 発信者番号は通知されません 「SUUMO(スーモ)を見た」と問い合わせください つながらない方、不動産会社の方は
| Building coverage, floor area ratio 建ぺい率・容積率 | | 60% ・ 200% 60%・200% | Time residents 入居時期 | | Immediate available 即入居可 | Land of the right form 土地の権利形態 | | Ownership 所有権 | Structure and method of construction 構造・工法 | | Wooden 2-story (framing method) 木造2階建(軸組工法) | Use district 用途地域 | | One middle and high 1種中高 | Other limitations その他制限事項 | | Regulations have by the Landscape Act, Quasi-fire zones 景観法による規制有、準防火地域 | Overview and notices その他概要・特記事項 | | Contact: Hideki Osaka, Facilities: Public Water Supply, This sewage, Individual LPG, Building confirmation number: first H25SBC- Make 0084H No. 担当者:大坂英樹、設備:公営水道、本下水、個別LPG、建築確認番号:第H25SBC-確0084H号 | Company profile 会社概要 | | <Mediation> Governor of Kanagawa Prefecture (10) Article 010313 No. Inaoka housing (Ltd.) Yubinbango253-0002 Chigasaki, Kanagawa Prefecture Takada 4-4-5 <仲介>神奈川県知事(10)第010313号稲岡ハウジング(株)〒253-0002 神奈川県茅ヶ崎市高田4-4-5 |
Local appearance photo現地外観写真  Local (11 May 2013) Shooting
現地(2013年11月)撮影
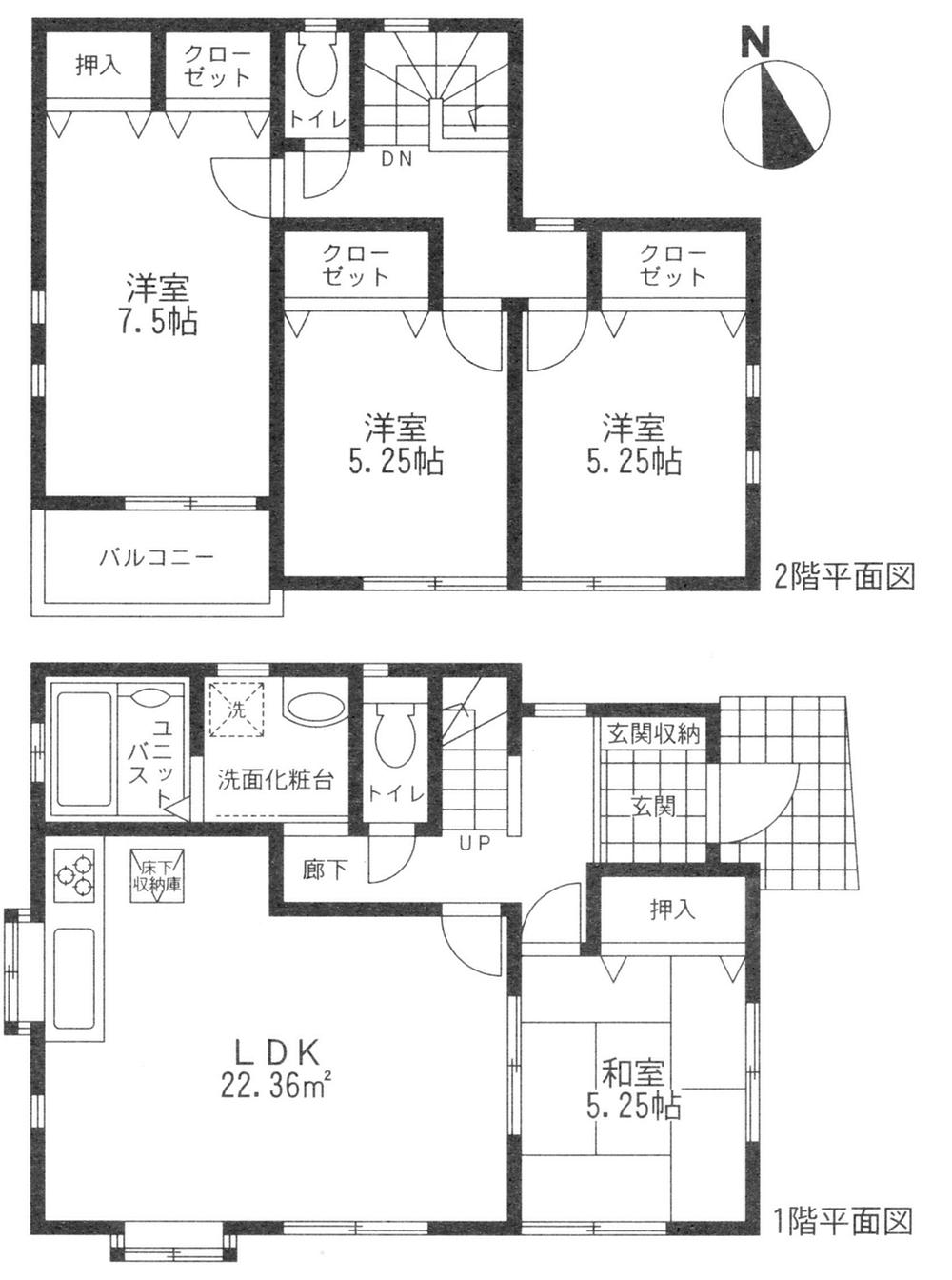
Floor plan間取り図  34,800,000 yen, 4LDK, Land area 106.94 sq m , Building area 93.57 sq m
3480万円、4LDK、土地面積106.94m2、建物面積93.57m2
Kitchenキッチン  Local (11 May 2013) Shooting
現地(2013年11月)撮影
Local appearance photo現地外観写真  Indoor (11 May 2013) Shooting
室内(2013年11月)撮影
Livingリビング  Local (11 May 2013) Shooting
現地(2013年11月)撮影
Bathroom浴室  Local (11 May 2013) Shooting
現地(2013年11月)撮影
Non-living roomリビング以外の居室  Indoor (11 May 2013) Shooting
室内(2013年11月)撮影
Wash basin, toilet洗面台・洗面所  Indoor (11 May 2013) Shooting
室内(2013年11月)撮影
Local photos, including front road前面道路含む現地写真  Local (11 May 2013) Shooting
現地(2013年11月)撮影
Livingリビング  Indoor (11 May 2013) Shooting
室内(2013年11月)撮影
Non-living roomリビング以外の居室  Indoor (11 May 2013) Shooting
室内(2013年11月)撮影
Local photos, including front road前面道路含む現地写真  Local (11 May 2013) Shooting
現地(2013年11月)撮影
Non-living roomリビング以外の居室  Indoor (11 May 2013) Shooting
室内(2013年11月)撮影
 Indoor (11 May 2013) Shooting
室内(2013年11月)撮影
 Indoor (11 May 2013) Shooting
室内(2013年11月)撮影
 Indoor (11 May 2013) Shooting
室内(2013年11月)撮影
Location
|