New Homes » Kanto » Kanagawa Prefecture » Chigasaki
 
| | Chigasaki, Kanagawa Prefecture 神奈川県茅ヶ崎市 |
| JR Tokaido Line "Chigasaki" bus 6 minutes Sakura road walk 6 minutes JR東海道本線「茅ヶ崎」バス6分桜道歩6分 |
| With sunny corner lot in! 3LDK with a loft! 角地に付日当たり良好!ロフト付の3LDK! |
Features pickup 特徴ピックアップ | | System kitchen / Bathroom Dryer / Washbasin with shower / Barrier-free / Toilet 2 places / Bathroom 1 tsubo or more / 2-story / loft / Underfloor Storage / TV monitor interphone / City gas / Flat terrain システムキッチン /浴室乾燥機 /シャワー付洗面台 /バリアフリー /トイレ2ヶ所 /浴室1坪以上 /2階建 /ロフト /床下収納 /TVモニタ付インターホン /都市ガス /平坦地 | Price 価格 | | 29,800,000 yen 2980万円 | Floor plan 間取り | | 3LDK 3LDK | Units sold 販売戸数 | | 1 units 1戸 | Land area 土地面積 | | 76.67 sq m (registration) 76.67m2(登記) | Building area 建物面積 | | 74.72 sq m (registration) 74.72m2(登記) | Driveway burden-road 私道負担・道路 | | Nothing, Northwest 3.9m width, Northeast 3.5m width 無、北西3.9m幅、北東3.5m幅 | Completion date 完成時期(築年月) | | December 2013 2013年12月 | Address 住所 | | Chigasaki, Kanagawa Prefecture Hibarigaoka 神奈川県茅ヶ崎市ひばりが丘 | Traffic 交通 | | JR Tokaido Line "Chigasaki" bus 6 minutes Sakura road walk 6 minutes JR東海道本線「茅ヶ崎」バス6分桜道歩6分
| Person in charge 担当者より | | Person in charge of real-estate and building Sato One oath Age: 30 Daigyokai Experience: 10 years 担当者宅建佐藤 一誓年齢:30代業界経験:10年 | Contact お問い合せ先 | | TEL: 0800-601-4403 [Toll free] mobile phone ・ Also available from PHS Caller ID is not notified Please contact the "saw SUUMO (Sumo)" If it does not lead, If the real estate company TEL:0800-601-4403【通話料無料】携帯電話・PHSからもご利用いただけます 発信者番号は通知されません 「SUUMO(スーモ)を見た」と問い合わせください つながらない方、不動産会社の方は
| Building coverage, floor area ratio 建ぺい率・容積率 | | 60% ・ 200% 60%・200% | Time residents 入居時期 | | Consultation 相談 | Land of the right form 土地の権利形態 | | Ownership 所有権 | Structure and method of construction 構造・工法 | | Wooden 2-story 木造2階建 | Use district 用途地域 | | One dwelling 1種住居 | Overview and notices その他概要・特記事項 | | Contact: Sato Ichichikai, Facilities: Public Water Supply, This sewage, City gas, Building confirmation number: HPA-13-04854-1, Parking: car space 担当者:佐藤 一誓、設備:公営水道、本下水、都市ガス、建築確認番号:HPA-13-04854-1、駐車場:カースペース | Company profile 会社概要 | | <Mediation> Governor of Kanagawa Prefecture (10) No. 010799 Thin Home Co., Ltd. Fujisawa shop Yubinbango251-0052 Fujisawa Fujisawa, Kanagawa Prefecture 520 <仲介>神奈川県知事(10)第010799号ウスイホーム(株)藤沢店〒251-0052 神奈川県藤沢市藤沢520 |
Local appearance photo現地外観写真  Good day in the northwest corner lot!
北西角地で日当たり良好!
Otherその他  Appearance construction cases!
外観施工例!
Rendering (appearance)完成予想図(外観)  Interior enforcement example!
内装施行例!
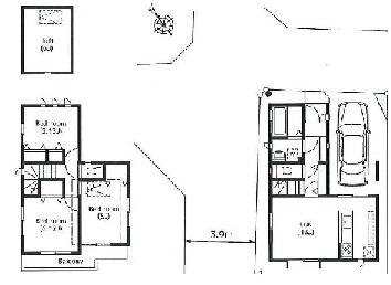
Floor plan間取り図  29,800,000 yen, 3LDK, Land area 76.67 sq m , Building area 74.72 sq m per day ・ Ventilation good!
2980万円、3LDK、土地面積76.67m2、建物面積74.72m2 日当たり・通風良好!
Rendering (appearance)完成予想図(外観)  Interior construction cases!
内装施工例!
Local photos, including front road前面道路含む現地写真  Local Photos
現地写真
Rendering (appearance)完成予想図(外観)  Interior construction cases!
内装施工例!
 Enforcement example!
施行例!
 Interior construction cases!
内装施工例!
 Interior construction cases!
内装施工例!
Station駅  Chigasaki Station
茅ヶ崎駅
Location
|