New Homes » Kanto » Kanagawa Prefecture » Chigasaki
 
| | Chigasaki, Kanagawa Prefecture 神奈川県茅ヶ崎市 |
| JR Tokaido Line "Chigasaki" bus 22 minutes Hagizono west bus stop walk 2 minutes JR東海道本線「茅ヶ崎」バス22分萩園西バス停歩2分 |
| Newly built one detached! Limited Building 1. Car space two Allowed! 4LDK! Contact is ahead of us 新築一戸建!限定1棟。カースペース2台可!4LDK!お問い合わせはお早目に |
| Newly built one detached! Limited Building 1. Car space two Allowed! 4LDK! Contact is ahead of us 新築一戸建!限定1棟。カースペース2台可!4LDK!お問い合わせはお早目に |
Features pickup 特徴ピックアップ | | Pre-ground survey / Year Available / Parking two Allowed / 2 along the line more accessible / System kitchen / Bathroom Dryer / Yang per good / All room storage / A quiet residential area / LDK15 tatami mats or more / Face-to-face kitchen / Toilet 2 places / Bathroom 1 tsubo or more / 2 or more sides balcony / South balcony / Double-glazing / The window in the bathroom / TV monitor interphone / Ventilation good / All living room flooring / Built garage / Water filter / Three-story or more / Flat terrain 地盤調査済 /年内入居可 /駐車2台可 /2沿線以上利用可 /システムキッチン /浴室乾燥機 /陽当り良好 /全居室収納 /閑静な住宅地 /LDK15畳以上 /対面式キッチン /トイレ2ヶ所 /浴室1坪以上 /2面以上バルコニー /南面バルコニー /複層ガラス /浴室に窓 /TVモニタ付インターホン /通風良好 /全居室フローリング /ビルトガレージ /浄水器 /3階建以上 /平坦地 | Price 価格 | | 26,800,000 yen 2680万円 | Floor plan 間取り | | 4LDK 4LDK | Units sold 販売戸数 | | 1 units 1戸 | Total units 総戸数 | | 1 units 1戸 | Land area 土地面積 | | 96.29 sq m (29.12 tsubo) (Registration) 96.29m2(29.12坪)(登記) | Building area 建物面積 | | 109.29 sq m (33.06 tsubo) (Registration), Among the first floor garage 2.89 sq m 109.29m2(33.06坪)(登記)、うち1階車庫2.89m2 | Driveway burden-road 私道負担・道路 | | Nothing 無 | Completion date 完成時期(築年月) | | December 2013 2013年12月 | Address 住所 | | Chigasaki, Kanagawa Prefecture Hagizono 神奈川県茅ヶ崎市萩園 | Traffic 交通 | | JR Tokaido Line "Chigasaki" bus 22 minutes Hagizono west bus stop walk 2 minutes JR Sagami Line "Chigasaki" bus 22 minutes Hagizono west bus stop walk 2 minutes JR東海道本線「茅ヶ崎」バス22分萩園西バス停歩2分 JR相模線「茅ヶ崎」バス22分萩園西バス停歩2分
| Person in charge 担当者より | | The person in charge Inoue Hee 予門 Age: 30 Daigyokai experience: I was born and raised in the 10 years Kugenumakaigan. Also I think that if you can tell honestly including Shonan good place and a bad place of. seriously, We are honestly to help customers. First, please feel free to contact. 担当者井上 喜予門年齢:30代業界経験:10年鵠沼海岸で生まれ育ちました。 湘南の良い所と悪い所も含め正直にお伝え出来ればと思っています。 真剣に、正直にお客様のお手伝いをさせて頂いております。 まずはお気軽にご連絡下さい。 | Contact お問い合せ先 | | TEL: 0800-603-0246 [Toll free] mobile phone ・ Also available from PHS Caller ID is not notified Please contact the "saw SUUMO (Sumo)" If it does not lead, If the real estate company TEL:0800-603-0246【通話料無料】携帯電話・PHSからもご利用いただけます 発信者番号は通知されません 「SUUMO(スーモ)を見た」と問い合わせください つながらない方、不動産会社の方は
| Building coverage, floor area ratio 建ぺい率・容積率 | | 60% ・ 200% 60%・200% | Time residents 入居時期 | | Consultation 相談 | Land of the right form 土地の権利形態 | | Ownership 所有権 | Structure and method of construction 構造・工法 | | Wooden three-story 木造3階建 | Use district 用途地域 | | Industry 工業 | Other limitations その他制限事項 | | Regulations have by the Landscape Act, Quasi-fire zones 景観法による規制有、準防火地域 | Overview and notices その他概要・特記事項 | | Contact: Inoue Hee 予門, Facilities: Public Water Supply, This sewage, Individual LPG, Building confirmation number: H25SBC- Make 00279M No., Parking: Garage 担当者:井上 喜予門、設備:公営水道、本下水、個別LPG、建築確認番号:H25SBC-確00279M号、駐車場:車庫 | Company profile 会社概要 | | <Mediation> Governor of Kanagawa Prefecture (10) No. 009580 (one company) Property distribution management Association (Corporation) metropolitan area real estate Fair Trade Council member Meiji Estate Co., housing Plaza store Yubinbango253-0044 Chigasaki, Kanagawa Prefecture Shinsakae-cho 8-7 <仲介>神奈川県知事(10)第009580号(一社)不動産流通経営協会会員 (公社)首都圏不動産公正取引協議会加盟明治地所(株)ハウジングプラザ店〒253-0044 神奈川県茅ヶ崎市新栄町8-7 |
Local appearance photo現地外観写真  Local (10 May 2013) Shooting
現地(2013年10月)撮影
 Local (10 May 2013) Shooting
現地(2013年10月)撮影
Local photos, including front road前面道路含む現地写真  Local (10 May 2013) Shooting
現地(2013年10月)撮影
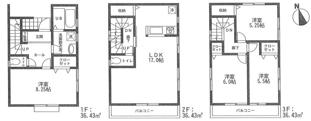
Floor plan間取り図  26,800,000 yen, 4LDK, Land area 96.29 sq m , Building area 109.29 sq m
2680万円、4LDK、土地面積96.29m2、建物面積109.29m2
Local appearance photo現地外観写真  Local (10 May 2013) Shooting
現地(2013年10月)撮影
Compartment figure区画図  26,800,000 yen, 4LDK, Land area 96.29 sq m , Building area 109.29 sq m
2680万円、4LDK、土地面積96.29m2、建物面積109.29m2
Local appearance photo現地外観写真  Local (10 May 2013) Shooting
現地(2013年10月)撮影
 Local (10 May 2013) Shooting
現地(2013年10月)撮影
Location
|