New Homes » Kanto » Kanagawa Prefecture » Chigasaki
 
| | Chigasaki, Kanagawa Prefecture 神奈川県茅ヶ崎市 |
| JR Tokaido Line "Chigasaki" bus 5 minutes Ayumi Nakamachi 2 minutes JR東海道本線「茅ヶ崎」バス5分仲町歩2分 |
| Newly built one detached! Limited Building 1! Nishihama Elementary School 480m! You can see the neighborhood of the model house! Contact is ahead of us 新築一戸建!限定1棟!西浜小学校480m!近隣のモデルハウスをご覧になれます!お問い合わせはお早目に |
| Newly built one detached! Limited Building 1! Nishihama Elementary School 480m! You can see the neighborhood of the model house! Contact is ahead of us 新築一戸建!限定1棟!西浜小学校480m!近隣のモデルハウスをご覧になれます!お問い合わせはお早目に |
Features pickup 特徴ピックアップ | | Pre-ground survey / 2 along the line more accessible / Facing south / System kitchen / Bathroom Dryer / Yang per good / All room storage / A quiet residential area / Starting station / Washbasin with shower / Wide balcony / Toilet 2 places / Bathroom 1 tsubo or more / 2-story / South balcony / Double-glazing / Underfloor Storage / The window in the bathroom / TV monitor interphone / Ventilation good / All living room flooring / Water filter / Flat terrain 地盤調査済 /2沿線以上利用可 /南向き /システムキッチン /浴室乾燥機 /陽当り良好 /全居室収納 /閑静な住宅地 /始発駅 /シャワー付洗面台 /ワイドバルコニー /トイレ2ヶ所 /浴室1坪以上 /2階建 /南面バルコニー /複層ガラス /床下収納 /浴室に窓 /TVモニタ付インターホン /通風良好 /全居室フローリング /浄水器 /平坦地 | Price 価格 | | 32,800,000 yen 3280万円 | Floor plan 間取り | | 3LDK 3LDK | Units sold 販売戸数 | | 1 units 1戸 | Total units 総戸数 | | 1 units 1戸 | Land area 土地面積 | | 97.97 sq m (29.63 tsubo) (Registration) 97.97m2(29.63坪)(登記) | Building area 建物面積 | | 74.92 sq m (22.66 tsubo) (Registration) 74.92m2(22.66坪)(登記) | Driveway burden-road 私道負担・道路 | | Nothing 無 | Completion date 完成時期(築年月) | | January 2014 2014年1月 | Address 住所 | | Chigasaki, Kanagawa Prefecture South Lake 5 神奈川県茅ヶ崎市南湖5 | Traffic 交通 | | JR Tokaido Line "Chigasaki" bus 5 minutes Ayumi Nakamachi 2 minutes JR Sagami Line "Chigasaki" bus 5 minutes Ayumi Nakamachi 2 minutes JR東海道本線「茅ヶ崎」バス5分仲町歩2分 JR相模線「茅ヶ崎」バス5分仲町歩2分
| Person in charge 担当者より | | The person in charge Inoue Hee 予門 Age: 30 Daigyokai experience: I was born and raised in the 10 years Kugenumakaigan. Also I think that if you can tell honestly including Shonan good place and a bad place of. seriously, We are honestly to help customers. First, please feel free to contact. 担当者井上 喜予門年齢:30代業界経験:10年鵠沼海岸で生まれ育ちました。 湘南の良い所と悪い所も含め正直にお伝え出来ればと思っています。 真剣に、正直にお客様のお手伝いをさせて頂いております。 まずはお気軽にご連絡下さい。 | Contact お問い合せ先 | | TEL: 0800-603-0246 [Toll free] mobile phone ・ Also available from PHS Caller ID is not notified Please contact the "saw SUUMO (Sumo)" If it does not lead, If the real estate company TEL:0800-603-0246【通話料無料】携帯電話・PHSからもご利用いただけます 発信者番号は通知されません 「SUUMO(スーモ)を見た」と問い合わせください つながらない方、不動産会社の方は
| Building coverage, floor area ratio 建ぺい率・容積率 | | 60% ・ 160% 60%・160% | Time residents 入居時期 | | January 2014 2014年1月 | Land of the right form 土地の権利形態 | | Ownership 所有権 | Structure and method of construction 構造・工法 | | Wooden 2-story 木造2階建 | Use district 用途地域 | | One middle and high 1種中高 | Other limitations その他制限事項 | | Regulations have by the Landscape Act, Quasi-fire zones 景観法による規制有、準防火地域 | Overview and notices その他概要・特記事項 | | Contact: Inoue Hee 予門, Facilities: Public Water Supply, This sewage, Individual LPG, Building confirmation number: No. H25SHC116797, Parking: car space 担当者:井上 喜予門、設備:公営水道、本下水、個別LPG、建築確認番号:H25SHC116797号、駐車場:カースペース | Company profile 会社概要 | | <Mediation> Governor of Kanagawa Prefecture (10) No. 009580 (one company) Property distribution management Association (Corporation) metropolitan area real estate Fair Trade Council member Meiji Estate Co., housing Plaza store Yubinbango253-0044 Chigasaki, Kanagawa Prefecture Shinsakae-cho 8-7 <仲介>神奈川県知事(10)第009580号(一社)不動産流通経営協会会員 (公社)首都圏不動産公正取引協議会加盟明治地所(株)ハウジングプラザ店〒253-0044 神奈川県茅ヶ崎市新栄町8-7 |
Local appearance photo現地外観写真  Local (11 May 2013) Shooting
現地(2013年11月)撮影
Local photos, including front road前面道路含む現地写真  Local (11 May 2013) Shooting
現地(2013年11月)撮影
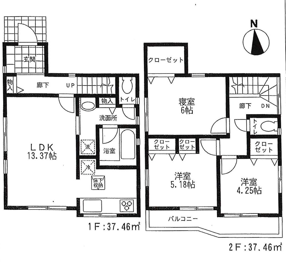
Floor plan間取り図  32,800,000 yen, 3LDK, Land area 97.97 sq m , Building area 74.92 sq m
3280万円、3LDK、土地面積97.97m2、建物面積74.92m2
Local appearance photo現地外観写真  Local (11 May 2013) Shooting
現地(2013年11月)撮影
Local photos, including front road前面道路含む現地写真  Local (11 May 2013) Shooting
現地(2013年11月)撮影
Compartment figure区画図  32,800,000 yen, 3LDK, Land area 97.97 sq m , Building area 74.92 sq m
3280万円、3LDK、土地面積97.97m2、建物面積74.92m2
Local appearance photo現地外観写真  Local (11 May 2013) Shooting
現地(2013年11月)撮影
Local photos, including front road前面道路含む現地写真  Local (11 May 2013) Shooting
現地(2013年11月)撮影
Location
|