New Homes » Kanto » Kanagawa Prefecture » Chigasaki
 
| | Chigasaki, Kanagawa Prefecture 神奈川県茅ヶ崎市 |
| JR Tokaido Line "Tsujido" walk 21 minutes JR東海道本線「辻堂」歩21分 |
| It will be the corner of a quiet residential area of Tsujido Station North area, which is most crowded with such Terrace Mall Shonan. It has become the building of peace of mind flat 35 available specification interest rates unchanged. テラスモール湘南などで賑わいのある辻堂駅北口エリアの閑静な住宅地の一角となります。金利が変わらない安心フラット35利用可能な仕様の建物となっております。 |
| = Because in building construction, Such as a building specification equipment will guide the construction example. = Local of your tour ・ Enforcement example, When tour hope, Please call a "tour hope" and I saw the "Sumo". It will answer a variety of questions to about the dwelling in the "financial plan system" of popular. Purchase funds plan ・ Variously suggestions, such as cash flow full planning of dwelling and life so many things, please consult. Please feel free to contact us First. ~ Chigasaki Station south exit 1-minute walk ~ Century 21 Heartland governor of Kanagawa Prefecture (3) 24554 No. Address: Chigasaki Tomoe 1-2-22 Free dial 0120-58-6621 = 建物建築中の為、建物仕様設備などは施工例をご案内いたします。 =現地のご見学・施行例、ご見学希望の際は、 『スーモ』を見まして『見学希望』とお電話ください。好評の”ファイナンシャルプランシステム”で住いに関する様々な疑問にお答えします。購入資金計画・住いと人生のキャッフフロープランニングなど色々とご提案致しますので色々とご相談ください。まずはお気軽にご連絡をください。 ~ 茅ヶ崎駅南口徒歩1分 ~ センチュリー21ハートランド神奈川県知事(3)24554号住所:茅ヶ崎市共恵1-2-22 フリーダイヤル 0120-58-6621 |
Features pickup 特徴ピックアップ | | 2 along the line more accessible / System kitchen / Flat to the station / LDK15 tatami mats or more / Face-to-face kitchen / 2-story / The window in the bathroom / All living room flooring / City gas / Flat terrain 2沿線以上利用可 /システムキッチン /駅まで平坦 /LDK15畳以上 /対面式キッチン /2階建 /浴室に窓 /全居室フローリング /都市ガス /平坦地 | Price 価格 | | 31,800,000 yen ・ 32,800,000 yen 3180万円・3280万円 | Floor plan 間取り | | 3LDK 3LDK | Units sold 販売戸数 | | 2 units 2戸 | Total units 総戸数 | | 2 units 2戸 | Land area 土地面積 | | 88.13 sq m (26.65 tsubo) (measured) 88.13m2(26.65坪)(実測) | Building area 建物面積 | | 84.46 sq m ・ 85.28 sq m (25.54 tsubo ・ 25.79 tsubo) (measured) 84.46m2・85.28m2(25.54坪・25.79坪)(実測) | Driveway burden-road 私道負担・道路 | | Road width: 4m, Asphaltic pavement 道路幅:4m、アスファルト舗装 | Completion date 完成時期(築年月) | | 2013 end of December 2013年12月末 | Address 住所 | | Chigasaki, Kanagawa Prefecture Owada 1-2 神奈川県茅ヶ崎市小和田1-2 | Traffic 交通 | | JR Tokaido Line "Tsujido" walk 21 minutes JR Tokaido Line "Chigasaki" walk 30 minutes JR Sagami Line "Kitachigasaki" walk 27 minutes JR東海道本線「辻堂」歩21分 JR東海道本線「茅ヶ崎」歩30分 JR相模線「北茅ヶ崎」歩27分
| Related links 関連リンク | | [Related Sites of this company] 【この会社の関連サイト】 | Person in charge 担当者より | | Person in charge of real-estate and building Hirono Shinichiro Age: 30 Daigyokai Experience: 6 years Chigasaki ・ More than 30 years as wander the Fujisawa (laughs) It is such a property that I wanted to be nice. Although devoted to behind the scenes right now. Property amount of information ・ Does not lose to trade staff in relation to knowledge (laughs) It is such I chose carefully selected properties. 担当者宅建廣野 慎一郎年齢:30代業界経験:6年茅ヶ崎・藤沢を転々として30年以上(笑) そんな私がいいなと思った物件です。 今は裏方に専念してますが。物件情報量・知識に関しては売買スタッフにも負けてません(笑)そんな私が選んだ厳選物件です。 | Contact お問い合せ先 | | TEL: 0800-603-3340 [Toll free] mobile phone ・ Also available from PHS Caller ID is not notified Please contact the "saw SUUMO (Sumo)" If it does not lead, If the real estate company TEL:0800-603-3340【通話料無料】携帯電話・PHSからもご利用いただけます 発信者番号は通知されません 「SUUMO(スーモ)を見た」と問い合わせください つながらない方、不動産会社の方は
| Building coverage, floor area ratio 建ぺい率・容積率 | | Kenpei rate: 60%, Volume ratio: The volume rate by 200% (front road width will be 160% of the limit. ) 建ペい率:60%、容積率:200%(前面道路幅員により容積率は160%の制限となります。) | Time residents 入居時期 | | Consultation 相談 | Land of the right form 土地の権利形態 | | Ownership 所有権 | Structure and method of construction 構造・工法 | | Wooden 2-story 木造2階建 | Use district 用途地域 | | One middle and high 1種中高 | Land category 地目 | | Residential land 宅地 | Other limitations その他制限事項 | | Height district, Quasi-fire zones 高度地区、準防火地域 | Overview and notices その他概要・特記事項 | | Contact: Hirono Shinichiro, Building confirmation number: A Building: first H255SBC- Make 01440Y issue other 担当者:廣野 慎一郎、建築確認番号:A号棟:第H255SBC-確01440Y号他 | Company profile 会社概要 | | <Mediation> Governor of Kanagawa Prefecture (3) No. 024554 (the company), Kanagawa Prefecture Building Lots and Buildings Transaction Business Association (Corporation) metropolitan area real estate Fair Trade Council member Century 21 (Ltd.) Heartland Yubinbango253-0056 Chigasaki, Kanagawa Prefecture Tomoe 1-2-22 <仲介>神奈川県知事(3)第024554号(社)神奈川県宅地建物取引業協会会員 (公社)首都圏不動産公正取引協議会加盟センチュリー21(株)ハートランド〒253-0056 神奈川県茅ヶ崎市共恵1-2-22 |
Local photos, including front road前面道路含む現地写真  Than local (11 May 2013) shooting A Building side
現地(2013年11月)撮影A号棟側より
Local appearance photo現地外観写真  Local (11 May 2013) Shooting B Building
現地(2013年11月)撮影 B号棟
Otherその他  Local arrangement plan
現地配置図
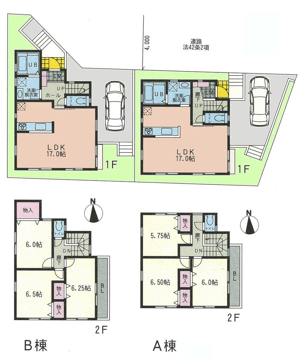
Floor plan間取り図  (A Building), Price 32,800,000 yen, 3LDK, Land area 88.13 sq m , Building area 84.46 sq m
(A号棟)、価格3280万円、3LDK、土地面積88.13m2、建物面積84.46m2
Local appearance photo現地外観写真  Local (11 May 2013) Shooting A Building
現地(2013年11月)撮影 A号棟
Local photos, including front road前面道路含む現地写真  Local (11 May 2013) Shooting
現地(2013年11月)撮影
Parking lot駐車場  B Building
B号棟
Shopping centreショッピングセンター  Purple sport another 2128m to style Terrace Mall Shonan shop
ムラサキスポーツanother styleテラスモール湘南店まで2128m
 Local guide map
現地案内図
Floor plan間取り図  (B Building), Price 31,800,000 yen, 3LDK, Land area 88.13 sq m , Building area 85.28 sq m
(B号棟)、価格3180万円、3LDK、土地面積88.13m2、建物面積85.28m2
Local appearance photo現地外観写真  Local (11 May 2013) Shooting
現地(2013年11月)撮影
Parking lot駐車場  A Building
A号棟
Supermarketスーパー  1120m to the supermarket once in a while and Hamatake shop
スーパーマーケットたまや浜竹店まで1120m
 1121m until Super es patio Owada store
スーパーエスパティオ小和田店まで1121m
Drug storeドラッグストア  Rekozzu Chigasaki Owada to the store 529m
れこっず茅ヶ崎小和田店まで529m
 Create es ・ Dee Chigasaki until the pine forest shop 650m
クリエイトエス・ディー茅ヶ崎松林店まで650m
Location
|